Bezrzecze

Domy na Sprzedaż
Oferta specjalna
Obniżka ceny
nr oferty 433611
powierzchnia 127 m2
ilość pokoi 5
piętro parter / 2
standard Stan deweloperski
Bezrzecze 5-6pok, garaż+ pom. ciepła +rekuperacja

Na sprzedaż nowoczesny dom w zabudowie bliźniaczej na Bezrzeczu.

Dom oddzielony od sąsiada podwójną ścianą nośną z dylatacją styropianu pomiędzy ( 18+3+18   )
Sprzedaż na podstawie umowy deweloperskiej i rachunku powierniczego.

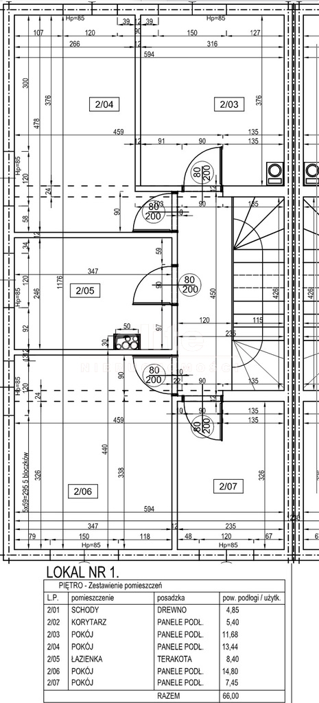
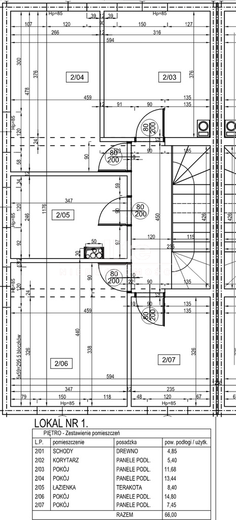
W budynku na piętrze brak skosów, układ bardzo funkcjonalny, pomieszczenia są ustawne.
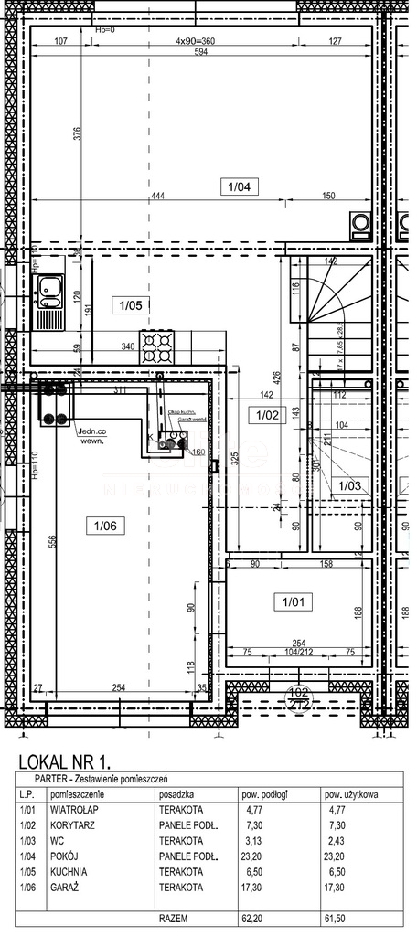
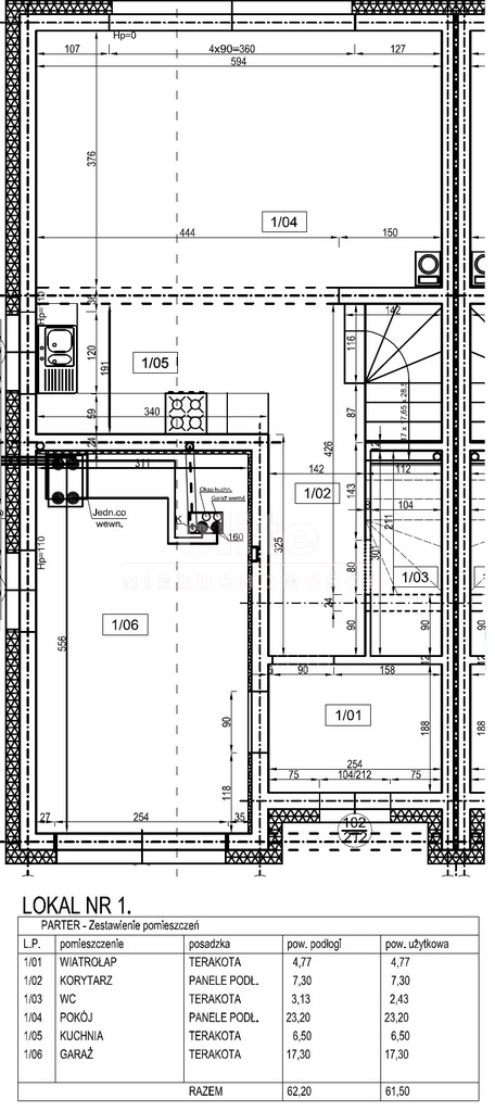
Parter: salon z aneksem kuchennym,   przedsionek, łazienka oraz garaż. Na piętrze: cztery pokoje,   łazienka, korytarz.
Dodatkowo na strychu będzie opcja wygospodarowania dodatkowego pokoju - około 30m2   powierzchni użytkowej z możliwością zamontowania wygodnych schodów na stałe (we własnym zakresie) - lub będzie to przestrzeń magazynowa.

Bliźniaki wykonane   w podwyższonym standardzie developerskim:

- ogrzewanie podłogowe w każdym pomieszczeniu
- pompa ciepła Atlantic
- system rekuperacji
- instalacje pod fotowoltaikę

- ściany nośne 24cm + 20 cm styropianu
- okna trzy szybowe, ciepły montaż ( kolor na zewnątrz antracyt w środku białe )
- system kominowy, możliwość podłączenia kominka
- tynki maszynowe, gipsowe
- schody na piętro wylewane, żelbetowe

- drzwi zewnętrzne antywłamaniowe firmy Wikęd
- brama garażowa segmentowa na pilota, ocieplona - Wiśniowski
- rozprowadzone instalacje: elektryczna oraz wodno-kanalizacyjna
- instalacja alarmowa, R-TV i internetowa.

- dachówka ceramiczna szkliwiona - Roben Monza plus
- strop ocieplony celuloza lub piana PUR
- schody strychowe, drewniane


zagospodarowanie zewnętrzne :
- podjazd i wejście do domu z polbruku i kostki ażurowej
- taras z kostki betonowej
- teren wyrównany
- ogródki między sąsiadami otoczone siatką - systemową.
- tynk zewnętrzny silikonowo-silikatowy

Elewacja budynku   jasna biała lub   złamana biel z elementami koloru szarego lub antracytowego.
Kupujący zwolniony z opłaty PCC, 2 % do Urzędu Skarbowego.

Zapraszam na prezentację

KUPUJEMY NIERUCHOMOŚCI ZA GOTÓWKĘ w Szczecinie oraz nad morzem, również zadłużone: mieszkania, domy, działki - płacimy natychmiast

 Powyższe ogłoszenie ma wyłącznie charakter informacyjny. Nie stanowi ono oferty w myśl art. 66 i n. ustawy z dnia 23.04.1964r. Kodeks cywilny (Dz.U. 1964r. Nr 16, poz. 93, ze zm.).

Cena
1 050 000 zł
Cena za m2
8 248 zł
Miejscowość
Bezrzecze
Rodzaj budynku
Bliźniak
Stan prawny
Własność
Rok budowy
2025
Powierzchnia
127 m2
Powierzchnia działki
290 m2
Kształt działki
Prostokąt
Standard
Stan deweloperski
Liczba pokoi
5
Ogrzewanie
Pompa ciepła
Ciepła woda
Pompa ciepła
Typ kuchni
Aneks
Dodatkowe
Garaż, Ogród
Wyświetleń
347
Sprawdź ratę kredytu
1 050 000 PLN
8 248 PLN / m2

Piotr Byzdra

tel. +48 500 358 321

piotr@elite.nieruchomosci.pl

Wyrażam zgodę na przetwarzanie danych
1 050 000 Stan deweloperski
Chcesz otrzymywać podobne oferty?

Skorzystaj z automatycznych powiadomień e-mail o nowych ogłoszeniach

© 2026 Elite Nieruchomości Szczecin - Mieszkania i domy na sprzedaż - Szczecin, Warszewo, Mierzyn, Bezrzecze, Gumieńce