Na sprzedaż nowoczesny
dom w zabudowie bliźniaczej
na Bezrzeczu. Dom
oddzielony od sąsiada
podwójną ścianą nośną z dylatacją styropianu pomiędzy
( 18+3+18 ) Sprzedaż na podstawie
umowy deweloperskiej i rachunku powierniczego.
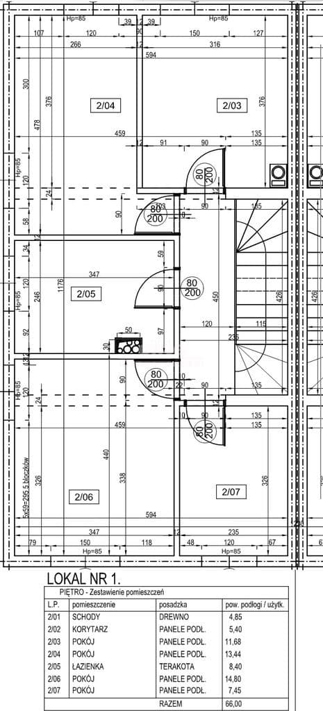
W budynku na piętrze
brak skosów, układ bardzo funkcjonalny, pomieszczenia są ustawne.
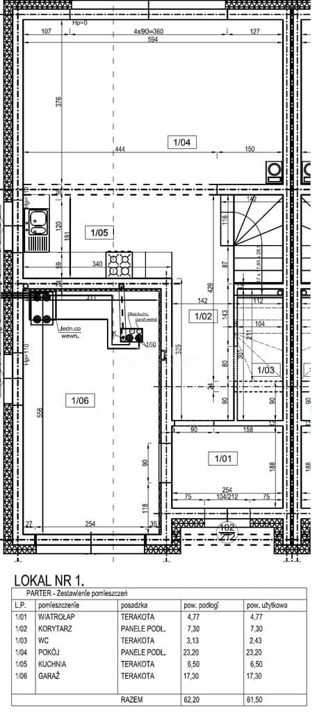
Układ funkcjonalny : Parter :
- salon o pow. 23m2 + 6,5m2
- łazienka o pow. 3m2
- korytarz o pow. 7,3m2
- wiatrołap o pow. 4,77m2
- garaż o pow. 17,3 m2
Piętro:
- pokój o pow. 11,68m2
- pokój o pow. 13,44 m2
- pokój o pow. 14,8m2
- gabinet o pow. 7,45m2
- łazienka o pow. 8,4m2
- korytarz
Dodatkowo
na strychu będzie
opcja wygospodarowania
dodatkowego pokoju - około 30m2 powierzchni użytkowej z możliwością zamontowania wygodnych schodów na stałe (we własnym zakresie) - lub będzie to przestrzeń magazynowa.
Bliźniaki wykonane w podwyższonym standardzie developerskim:- ogrzewanie podłogowe w każdym pomieszczeniu-pompa ciepła Atlantic
- system rekuperacji
- instalacje pod fotowoltaikę
- ściany nośne 24cm + 20 cm styropianu
- okna trzy szybowe, ciepły montaż ( kolor na zewnątrz antracyt w środku białe )
- system kominowy, możliwość podłączenia kominka
- tynki maszynowe, gipsowe
- schody na piętro wylewane, żelbetowe
- drzwi zewnętrzne antywłamaniowe firmy Wikęd
- brama garażowa segmentowa na pilota, ocieplona - Wiśniowski
- rozprowadzone instalacje: elektryczna oraz wodno-kanalizacyjna
- instalacja alarmowa, R-TV i internetowa.
- dachówka ceramiczna szkliwiona - Roben Monza plus
- strop ocieplony celuloza lub piana PUR
- schody strychowe, drewniane
zagospodarowanie zewnętrzne :- podjazd i wejście do domu z polbruku i kostki ażurowej
- taras z kostki betonowej
- teren wyrównany
- ogródki między sąsiadami otoczone siatką - systemową.
- tynk zewnętrzny silikonowo-silikatowy
Elewacja budynku
jasna biała lub złamana biel
z elementami koloru
szarego lub antracytowego.
Kupujący zwolniony z opłaty PCC, 2 % do Urzędu Skarbowego.
Zapraszam na prezentację
KUPUJEMY NIERUCHOMOŚCI ZA GOTÓWKĘ w Szczecinie oraz nad morzem, również zadłużone: mieszkania, domy, działki - płacimy natychmiast
Powyższe ogłoszenie ma wyłącznie charakter informacyjny. Nie stanowi ono oferty w myśl art. 66 i n. ustawy z dnia 23.04.1964r. Kodeks cywilny (Dz.U. 1964r. Nr 16, poz. 93, ze zm.).