OFERTA SPRZEDAŻY: NOWOCZESNY DOM W ZABUDOWIE BLIŹNIACZEJ – INWESTYCJA 2026
Prezentujemy ofertę sprzedaży lokali mieszkalnych w nowo powstającej inwestycji budynków w zabudowie bliźniaczej. Nieruchomość charakteryzuje się nowoczesną architekturą, wysokim standardem wykończenia oraz zastosowaniem energooszczędnych rozwiązań technologicznych.
PARAMETRY NIERUCHOMOŚCI
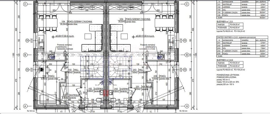
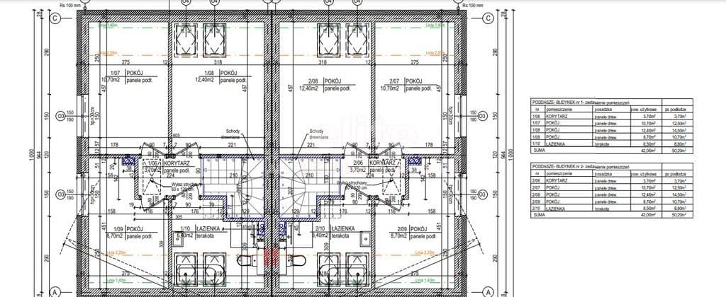
Powierzchnia całkowita lokalu wynosi 104 m2. Przemyślany układ pomieszczeń zapewnia wyraźny podział na strefę dzienną oraz prywatną:
* Parter: reprezentacyjny hol, funkcjonalny pokój typu gabinet, toaleta (WC) oraz przestronny salon z aneksem kuchennym.
* Piętro: trzy ustawne sypialnie oraz komfortowa łazienka wyposażona w toaletę.
STANDARD WYKONANIA I TECHNOLOGIA
Budynek wznoszony w technologii tradycyjnej z dbałością o detale izolacyjne i estetyczne:
* Konstrukcja: ściany zewnętrzne z bloczków betonu komórkowego o grubości 24 cm, ściany działowe 12 cm.
* Wykończenie wewnętrzne: tynki wapienno-gipsowe.
* Elewacja: ocieplenie styropianem o grubości 15 cm, wykończone wysokiej klasy tynkiem silikonowym marki Caparol.
* Dach: płaska dachówka w kolorze antracytowym.
* Stolarka i detale: okna PCV w kolorze antracytowym, parapety zewnętrzne z blachy ocynkowanej.
INSTALACJE I OGRZEWANIE
Budynek został zaprojektowany jako obiekt energooszczędny. Całość instalacji centralnego ogrzewania oraz ciepłej wody użytkowej oparta jest na systemie ogrzewania podłogowego, zasilanego nowoczesną pompą ciepła. Rozwiązanie to gwarantuje wysoki komfort cieplny przy optymalizacji kosztów eksploatacji.
ZAGOSPODAROWANIE TERENU
* Podjazd oraz podejście do domu wykonane z trwałego polbruku.
* Teren ogrodu ogrodzony estetycznymi panelami systemowymi.
TERMIN REALIZACJI
Planowane ukończenie inwestycji oraz oddanie budynku do użytkowania przewidziane jest na II kwartał 2026 roku.
INFORMACJE DODATKOWE
Osoby zainteresowane szczegółami technicznymi lub umówieniem prezentacji nieruchomości proszone są o kontakt z maklerem prowadzącym ofertę.