Nowy dom w cenie mieszkania z ogrodem i miejscami postojowymi w Dobrej!
Na sprzedaż
nowy budynek mieszkalny jednorodzinny dwulokalowy (bliźniak) położony w Dobrej pośród kameralnej zabudowy jednorodzinnej,
nowoczesna architektura, bardzo
funkcjonalny układ pomieszczeń.
Na
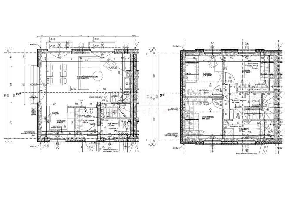
powierzchnię użytkową: 84,8 m² składają się"
Parter – 45,18 m²:
- wiatrołap – 4,2 m²
- salon z jadalnią – 29,41 m²
- kuchnia - 6,58 m²
- toaleta – 1,42 m²
- pomieszczenie techniczne – 3,57 m²
Piętro – 39,62 m²:
- korytarz + schody – 8,3 m²
- pokój – 9,17 m²
- pokój – 8,84 m²
- pokój – 8,84 m²
- łazienka – 4,47 m²
Standard i technologia:
- płyta fundamentowa monolityczna
- ściany z betonu komórkowego Solbet
- strop żelbetowy
- dach dwuspadowy,
- dachówka,
- elewacja: tynk silikonowy
- stolarka okienna i drzwiowa w kolorze antracyt
- ogrzewanie w oparciu o piec gazowy kondensacyjny
- nawierzchnie utwardzone (podjazd, miejsca postojowe).
Dom
idealny dla rodziny szukającej nowego, komfortowego domu w zabudowie bliźniaczej – z
ogrodem i miejscami postojowymi, w
spokojnym otoczeniu, a jednocześnie z dobrym dojazdem do miasta.
Zapraszam na prezentację!