Na sprzedaż bliźniak o pow. 101 m2 w Dołujach na działce o powierzchni ok. 220 m2 .
Dom sprzedawany jako lokal mieszkalny w budynku jednorodzinnym. Inwestycja składa się z 2 budynków jednorodzinnych dwulokalowych.
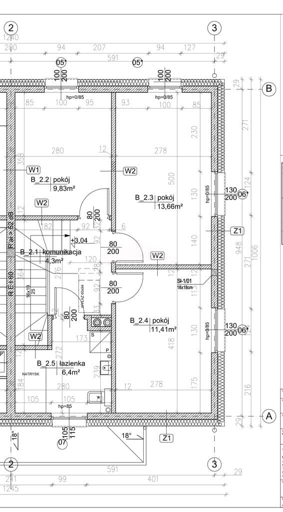
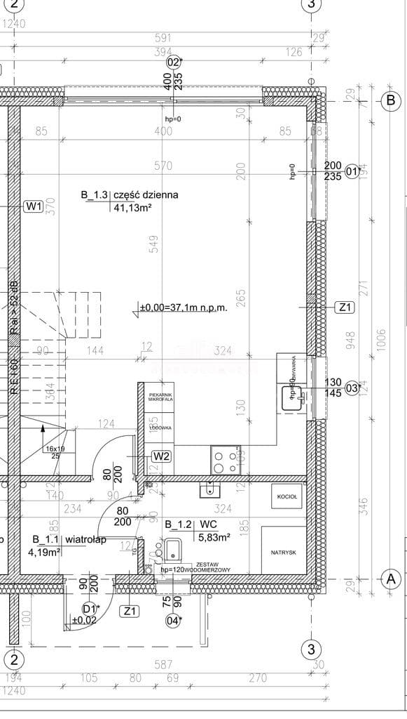
Na powierzchnię użytkową domu składają się :
Parter : wiatrołap o pow. 4,19 m2 , łazienka 5,83 m2 oraz duży salon z aneksem kuchennym o pow.41,13 m2 z wyjściem na taras i ogród od strony północnej lub zachodniej
Piętro : 3 sypialnie o pow. 9,83m2, 13,66 m2,11,41 m2 oraz łazienka o pow.5,0 m2 korytarz 10,00 m2 .
Głównym atutem nieruchomości jest doskonała lokalizacja w cichej i spokojnej uliczce w Dołujach niedaleko lasu i terenów zielonych.
Dojazd do nieruchomości drogą gminną utwardzoną, oświetlenie przy drodze.
Standard wykończenia:
- ławy żelbetowe monolityczne,
- ściany fundamentowe betonowe,
- strop żelbetowy monolityczny,
- ściany zew. murowane z bloczków silikatowych , ocieplenie styropian
- ściany wew. nośne murowane z bloczków silikatowych ,
-ścianki działowe murowane z pustaków
-więźba dachowa prefabrykowana, dach wełna mineralna
-kocioł gazowy z zasobnikiem na ciepłą wodę
- instalacja pod alarm, TV,
- internet, domofon,
- okna 3 szybowe PCV o współczynniku 1,0 Wmk
-rolety zewnętrzne z napędem elektrycznym na parterze,
- blacho-dachówka ,
- ogród - teren wyrównany,
- taras- wylewka betonowa,
- zbiornik retencyjny na deszczówkę 10 m3,
- kanalizacja - sieć kanalizacyjna,
- od frontu utwardzony podjazd oraz chodnik
- 2 miejsca postojowe,
- ogrzewanie podłogowe we wszystkich pomieszczeniach, parter, piętro
- rekuperacja
- teren ogrodzony z podjazdem
- wykonana pełna instalacja elektryczna z łącznikami i gniazdkami
- wszystkie ściany gładzone i pomalowane na kolor biały
- trawnik
- taras od strony ogrodu
Wydanie budynku w stanie developerskim wrzesień / październik 2026 r
Zapraszam zainteresowanych na prezentację .