Oferujemy do sprzedaży atrakcyjne bliźniaki usytuowane w Dołujach, w ładnym, zielonym miejscu niedaleko lasu.
Inwestycja przewiduje trzy domy dwulokalowe ze sporymi działkami różnej wielkości (od 485m2 do 344m2).
Budynki oddawane będą w trzecim kwartale 2026r. w standardzie deweloperskim.
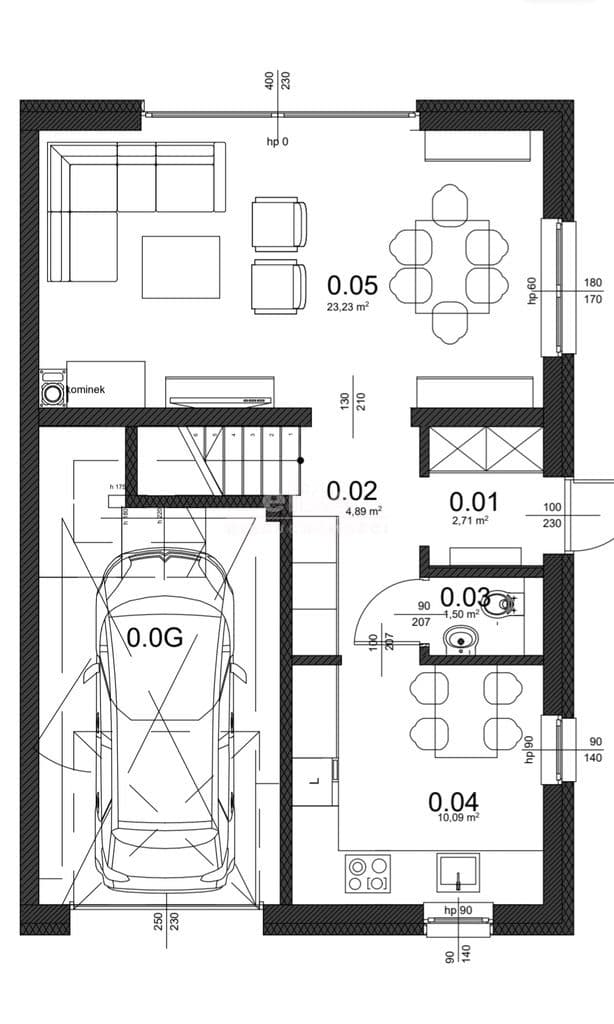
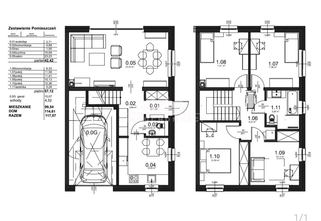
Powierzchnia całkowita budynku to 117 m2 łącznie z garażem.
Zestawienie powierzchni:
Parter 42.42m2 :
- Salon 23.23m2 ,
- kuchnia 10,09m2
- wiatrołap 2,71m2,
- komunikacja 4,89m2,
- WC 1,50m2,
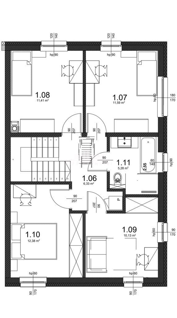
Piętro 57.12m2:
- pokój 11,5m29
- pokój 11,41m2,
- pokój 10,13m2,
- pokój 12,38m2,
- łazienka 5,28m2
- komunikacja 6,03m2
Polecam ze względu na uroczą lokalizację, cenę i jakość wykończenia.
Zapraszam na prezentację
KUPUJEMY NIERUCHOMOŚCI ZA GOTÓWKĘ w Szczecinie oraz nad morzem, również zadłużone: mieszkania, domy, działki - płacimy natychmiast
Powyższe ogłoszenie ma wyłącznie charakter informacyjny. Nie stanowi ono oferty w myśl art. 66 i n. ustawy z dnia 23.04.1964r. Kodeks cywilny (Dz.U. 1964r. Nr 16, poz. 93, ze zm.).