Goleniów

Domy na Sprzedaż
nr oferty 414159
powierzchnia 127 m2
ilość pokoi 4
piętro parter / 1
standard Stan deweloperski
Dom w zabudowie bliźniaczej Goleniów

Zapraszamy do zapoznania się z ofertą sprzedaży lokalu mieszkalnego w zabudowie bliźniaczej z użytkowym poddaszem.
Nieruchomość zlokalizowana przy ul. Rybackiej w Goleniowie - 2,5 km od centrum miasta.

Przedmiotem sprzedaży jest segment budynku w stanie deweloperskim, wybudowany w technologii tradycyjnej według projektu "DOM W CYKLAMENACH 5" z niewielkimi modyfikacjami. Charakteryzuje się prostą, zwartą bryłą. Idealny dla rodziny 2+2 lub 2+3.
Położony na działce o pow. 500 m2, z pośrednim dostępem do drogi publicznej poprzez utwardzoną drogę wewnętrzną.

Lokal mieszkalny dwukondygnacyjny, o łącznej pow. użytkowej 127,5 m2 (w tym pow. mieszkalna 102,10 m2 + garaż 25,40 m2), oferowany jest w dwóch wersjach - Z CZTEREMA LUB Z PIĘCIOMA POKOJAMI.

Składa się z następujących pomieszczeń:
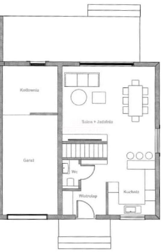
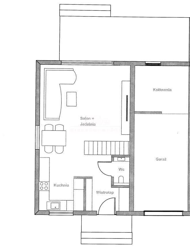
      PARTER (pow. użytkowa z garażem 66,42 m2):
        - wiatrołap 5,87 m²
        - salon 26,13 m²
        - kuchnia 7,46 m²
        - WC 1,56 m²
        - garaż 25,40 m²

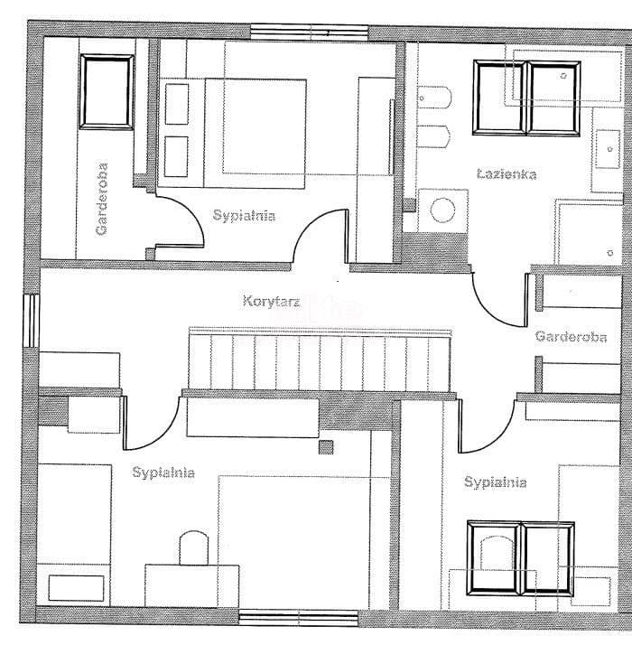
     PODDASZE UŻYTKOWE (pow. użytkowa 61,08 m² - pow. całkowita 66,38 m²):
        - sypialnia 1 - 7,78 m² (9,34 m²),
        - sypialnia 2 - 14,54 m², (15,6 m²),
        - sypialnia 3 - 10,10 m²(10,32 m²),
        - łazienka 7,44 m² (9,11 m²),
        - garderoba 3,78 m² (4,55 m²)
        - przedpokój 17,46 m²

KONSTRUKCJA:
    - Ściany konstrukcyjne - bloczki beton komórkowy Solbet 24 cm,
    - Strop   - płyty żelbetowe, wielokanałowe typu Żerań,
    - Schody wewnętrzne - jednobiegowe, żelbetowe, prefabrykowane,
    - Ocieplenie ścian zewnętrznych - styropian 18 cm,
    - Pokrycie dachu - blacha na rąbek,

STANDARD WYKOŃCZENIA
    - drzwi wejściowe Wiśniowski,
    - brama garażowa Wiśniowski segmentowa wraz z napędem,
    - okna PCV 3-szybowe Wiśniowski,
    - instalacja - elektryczna, wodna, kanalizacyjna, RTV,
    - system ogrzewania podłogowego w całym domu,
    - ocieplenie dachu - wełna mineralna 20 cm lub pianą PUR,
    - podjazd i ścieżka do domu - kostka betonowa,
    - tynk elewacyjny silikatowy, puc,
    - taras wykonany z kostki brukowej,

Media - woda z sieci miejskiej, szczelny zbiornik bezodpływowy, prąd.

Pompa ciepła Firmy Bosch. Instalacja z możliwością podłączenia paneli fotowoltaicznych oraz rekuperacji.

DODATKOWE MOŻLIWOŚCI:
    - na odpowiednim etapie budowy istnieje możliwość modyfikacji ścianek wewnętrznych - działowych,
    - wykończenie nieruchomości POD KLUCZ - cena do indywidualnego ustalenia z Developerem,
    - indywidualny harmonogram płatniczy - do uzgodnienia z Developerem,

Cena zawiera podatek VAT - 8%. Kupujący zwolniony z podatku 2% od czynności cywilnoprawnych.

ZAPRASZAMY NA PREZENTACJE i DO SKŁADANIA OFERT ZAKUPU !!!

KUPUJEMY NIERUCHOMOŚCI ZA GOTÓWKĘ w Szczecinie oraz nad morzem, również zadłużone: mieszkania, domy, działki - płacimy natychmiast

 Powyższe ogłoszenie ma wyłącznie charakter informacyjny. Nie stanowi ono oferty w myśl art. 66 i n. ustawy z dnia 23.04.1964r. Kodeks cywilny (Dz.U. 1964r. Nr 16, poz. 93, ze zm.).

Cena
659 000 zł
Cena za m2
5 168 zł
Miejscowość
Goleniów
Rodzaj budynku
HalfOfSemiDetached
Stan prawny
Własność
Rok budowy
2023
Powierzchnia
127 m2
Powierzchnia działki
500 m2
Kształt działki
Prostokąt
Standard
Stan deweloperski
Liczba pokoi
4
Typ kuchni
Otwarta
Dodatkowe
Garaż, Ogród
Wyświetleń
513
Sprawdź ratę kredytu
659 000 PLN
5 168 PLN / m2

ELITE nieruchomości

tel. 91 817 17 17

zainteresowania@elite.nieruchomosci.pl

Wyrażam zgodę na przetwarzanie danych
659 000 Stan deweloperski
Chcesz otrzymywać podobne oferty?

Skorzystaj z automatycznych powiadomień e-mail o nowych ogłoszeniach

© 2025 Elite Nieruchomości Szczecin - Mieszkania i domy na sprzedaż - Szczecin, Warszewo, Mierzyn, Bezrzecze, Gumieńce