Dom na sprzedaż, Goleniów, Zachodniopomorskie, 164m2, 5 pokoi, 995 000 zł, Oferta numer 439483
164.48 m²
5 pokoje
pięter: 1



















995 000 zł
W ofercie dom wolnostojący dwulokalowy położony przy lesie w Goleniowie, działka 588m2. 30 minut od Szczecina, 2km od drogi S3. Łączna powierzchnia całkowita domu to 164m2,w tym:
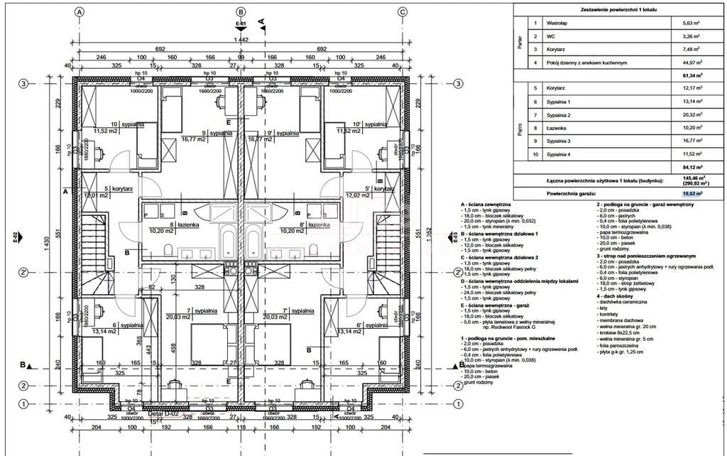
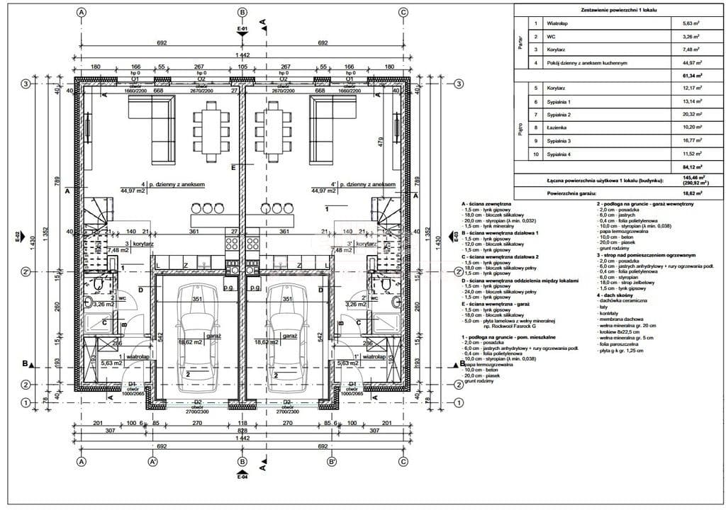
Parter
- Wiatrołap - 5,63 m2
- WC - 3,26 m2
- Korytarz - 7,48 m2
- Pokój dzienny z aneksem kuchennym - 44,97 m2
Piętro I:
- Sypialnia 1 - 13,14 m2
- Łazienka - 10,20 m2
- Sypialnia 2 - 20,32 m2
- Sypialnia 3 - 16,77 m2
- Sypialnia 4 - 11,52 m2
Łącznie: 145,46 m2 + Garaż: 18,62 m2.
Budynek został wykonany z wysokiej jakości materiałów budowlanych i wykończeniowych
We wszystkich pokojach i garażu jest zastosowane ogrzewanie podłogowe, do ogrzewania jest zastosowany piec gazowy wraz z zasobnikiem 120 l, ponadto jest wyprowadzona instalacja pod pompę ciepła i panele fotowoltaiczne
Ponadto zamontowano okna Gelan trzyszybowe wraz z elektrycznymi roletami, brama garażowa wraz z napędem elektrycznym firmy Wiśniowski oraz drzwi wejściowe firmy ERKADO Thermo 64, wideodomofon.
Konstrukcja:
ściana zewnętrzna
- 1,5 cm - tynk gipsowy
- 24,0 cm - bloczek silikatowy
- 20,0 cm - styropian (λ min. 0,032)
- 1,5 cm - tynk mineralny
dach:
- dachówka ceramiczna
- łaty
- kontrłaty
- membrana dachowa
- wełna mineralna gr. 20 cm
- krokiew 8x22,5 cm
- wełna mineralna gr. 5 cm
- folia paroszczelna
- płyta g-k gr. 1,25 cm
Teren całkowicie ogrodzony. Bardzo dobry dojazd drogą asfaltową (droga gminna), w pobliżu liczne sklepy i lokale użytkowe. Klucze w biurze. Zapraszam do zapoznania się z ofertą osobiście. Podana cena jest ceną brutto.
Parter
- Wiatrołap - 5,63 m2
- WC - 3,26 m2
- Korytarz - 7,48 m2
- Pokój dzienny z aneksem kuchennym - 44,97 m2
Piętro I:
- Sypialnia 1 - 13,14 m2
- Łazienka - 10,20 m2
- Sypialnia 2 - 20,32 m2
- Sypialnia 3 - 16,77 m2
- Sypialnia 4 - 11,52 m2
Łącznie: 145,46 m2 + Garaż: 18,62 m2.
Budynek został wykonany z wysokiej jakości materiałów budowlanych i wykończeniowych
We wszystkich pokojach i garażu jest zastosowane ogrzewanie podłogowe, do ogrzewania jest zastosowany piec gazowy wraz z zasobnikiem 120 l, ponadto jest wyprowadzona instalacja pod pompę ciepła i panele fotowoltaiczne
Ponadto zamontowano okna Gelan trzyszybowe wraz z elektrycznymi roletami, brama garażowa wraz z napędem elektrycznym firmy Wiśniowski oraz drzwi wejściowe firmy ERKADO Thermo 64, wideodomofon.
Konstrukcja:
ściana zewnętrzna
- 1,5 cm - tynk gipsowy
- 24,0 cm - bloczek silikatowy
- 20,0 cm - styropian (λ min. 0,032)
- 1,5 cm - tynk mineralny
dach:
- dachówka ceramiczna
- łaty
- kontrłaty
- membrana dachowa
- wełna mineralna gr. 20 cm
- krokiew 8x22,5 cm
- wełna mineralna gr. 5 cm
- folia paroszczelna
- płyta g-k gr. 1,25 cm
Teren całkowicie ogrodzony. Bardzo dobry dojazd drogą asfaltową (droga gminna), w pobliżu liczne sklepy i lokale użytkowe. Klucze w biurze. Zapraszam do zapoznania się z ofertą osobiście. Podana cena jest ceną brutto.
KUPUJEMY NIERUCHOMOŚCI ZA GOTÓWKĘ w Szczecinie oraz nad morzem, również zadłużone: mieszkania, domy, działki - płacimy natychmiast
Powyższe ogłoszenie ma wyłącznie charakter informacyjny. Nie stanowi ono oferty w myśl art. 66 i n. ustawy z dnia 23.04.1964r. Kodeks cywilny (Dz.U. 1964r. Nr 16, poz. 93, ze zm.).
cena
995 000 zł
cena za metr
6049 zł
miejscowość
Goleniów
pięter
1
rok budowy
2025
powierzchnia
164.48 m2
powierzchnia działki
588 m2
kształt działki
Nieregularny
stan nieruchomości
Idealny
stan prawny
Własność
stan budynku
Idealny
typ okien
PCV
typ kuchni
Aneks
typ domu
Bliźniak
materiał
Cegła
dach
Dachówka ceramiczna
stan prawny
Własność
dodatki
alarm, garaż/miejsca parkingowe, domofon
wyświetleń
2

