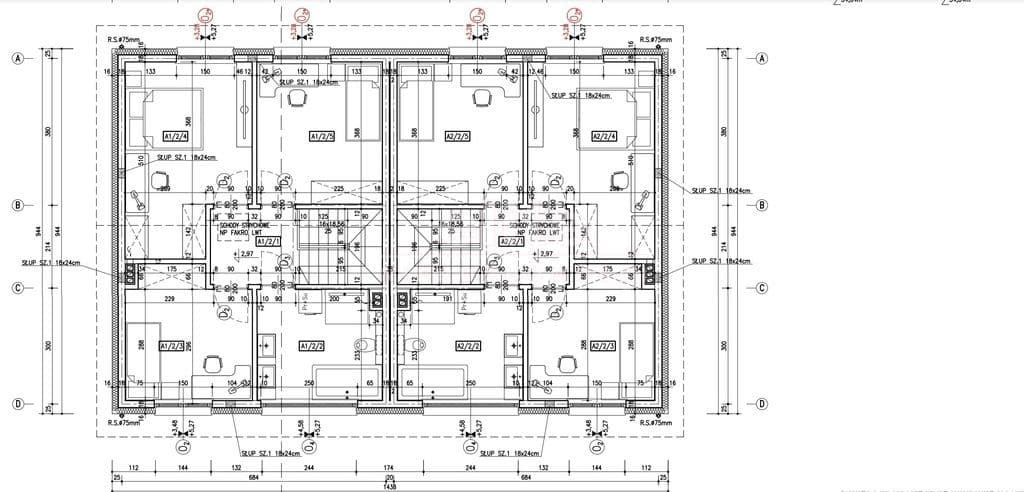
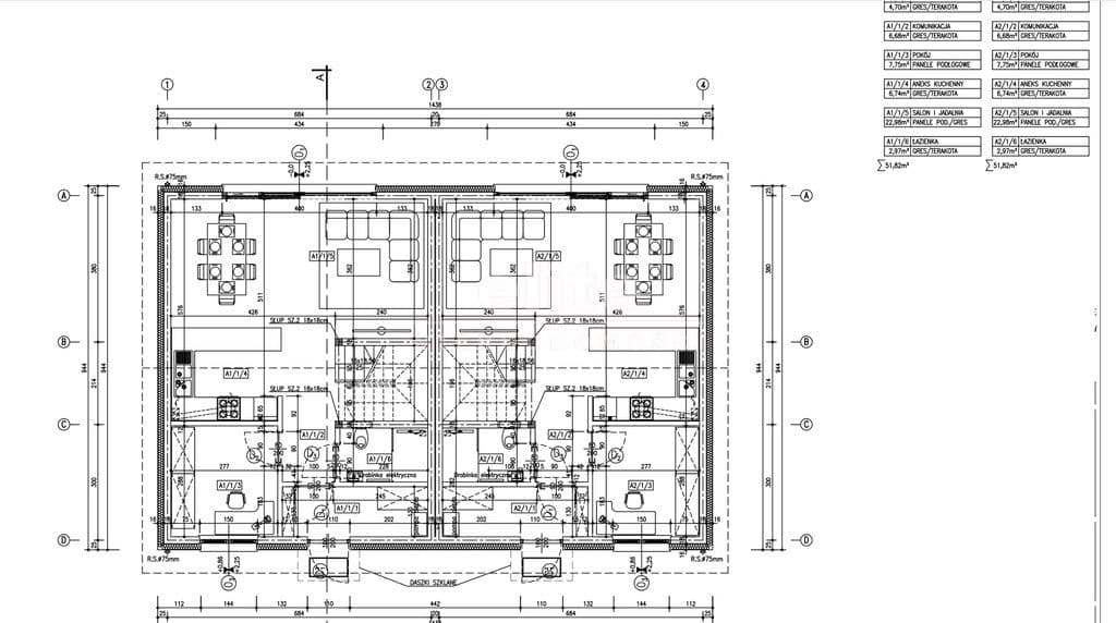
Nowa inwestycja dwóch bliźniaków położona w Grzepnicy 6km oddalona od centrum Dobrej. Inwestycja składa się z 4 lokali mieszkalnych o powierzchni 105 m 2 i ogródkach od 214m do 280m. Domy oddane w stanie deweloperskim. CO i CW pompy ciepła. Do każdego lokalu po dwa miejsca postojowe. Podjazdy wyłożone polbrukiem. Tren w całości ogrodzony. bliskość natury las państwowy to dodatkowe atuty opisanej nieruchomości.
Standard wykończenia :
1) Fundamenty:
✓ Płyta fundamentowa betonowa zbrojone + beton C 20/25.
✓ Ściany fundamentowe zabezpieczone przeciwwilgociowo oraz ocieplone
styropianem fundamentowym gr.15cm.
✓ Izolacja termiczna ścian fundamentowych zabezpieczona folią kubełkową.
2) Ściany i stropy:
✓ Roboty murowe: ściany nośne zewnętrzne murowane z pustaków
SILIKATOWYCH gr. 18cm + styropian gr. 20 cm [front i tył budynku],
styropian 18 cm [ściany boczne budynku], ściany wewnętrzne z bloczków
gazobetonowych gr.11,5 cm.
✓ Kominy: kominy wentylacyjne zgodne z projektem. Wykończenie kominów
ponad dachem siatka klej, tynk oraz montaż kratek wentylacyjnych w
otworach.
✓ Posadzka na gruncie: podsypka piaskowa, chudy beton 10cm, płyta
fundamentowa 25 cm, termoizolacja-styropian EPS 100 gr. 20 cm, wylewka
anhydrytowa 5 cm.
✓ Strop nad parterem: żelbetowy, monolityczny wylewany gr. 16cm + warstwy
wykończeniowe: styropian EPS 100 gr. 5 cm + wylewka anhydrytowa gr.
5cm.
✓ Schody wewnętrzne żelbetowe.
3) Dach:
✓ Więźba wykonana w technologii wiązarowej (możliwość wykonania strychu
około 20m2 podłogi, obciążenie użytkowe 0,80 kN/m2)
✓ Membrana paroprzepuszczalna o gramaturze min. 160g/m2.
✓ Pokrycie dachowe wykonane z płaskiej dachówki betonowej firmy BRAAS,
model: TEVIVA CISAR.
✓ Rynny kwadratowe GALECO Kwadrat wraz z rurami spustowymi.
✓ Komunikacja dachowa.
✓ Wyłazy dachowe nieocieplane.
4) Stolarka okienna:
✓ Stolarka okienna PVC zgodnie z zestawieniem kolor zewnętrzny antracyt,
wewnętrzny biały.
✓ Okna na profilu okiennym GEALAN 9000.
✓ Pakiet trzyszybowy oraz ciepła ramka.
✓ We wszystkich oknach rolety sterowane z przycisków i pilota
✓ Brak parapetów wewnętrznych
5) Stolarka drzwiowa:
✓ Drzwi zewnętrzne antywłamaniowe, ocieplone, w kolorze antracytowym,
producent GERDA.
6) Roboty wykończeniowe zewnętrzne:
✓ Wykończenie ścian: tynk cienkowarstwowy mineralny pomalowany farbą
firmy STO Lotusan G.
✓ Parapety zewnętrzne z blachy powlekanej w kolorze stolarki.
7) Zagospodarowanie działki:
✓ Ogrodzenie działki, furtka na ogród.
✓ Wykonanie polbruków przed domem, dwa miejsca postojowe
✓ Ukształtowanie terenu działki (bez trawy)
8) Przyłącza infrastruktury:
✓ Przyłącze wodociągowe do domu – liczniki w studni.
✓ Przyłącze energetyczne oraz wprowadzenie kabla do budynku (tablica
elektryczna).
✓ Kanalizacja sanitarna do zbiornika bezodpływowego 12 m3
✓ Kanalizacja deszczowa do zbiornika bezodpływowego 10 m3
9) Instalacje wewnętrzne:
✓ Instalacja elektryczna: tablica elektryczna, gniazdka, punkty świetlne w
domu, na tarasie, kabel energetyczny wypuszczony na ogród, okablowanie do
sterowania roletami, siła, biały montaż.
✓ Instalacja tv-sat w każdym pokoju oraz kable wypuszczone pod dach,
zamontowana dachówka antenowa.
✓ Instalacja wod. - kan.: podejścia do kuchni i łazienek, reduktor ciśnienia
wody.
✓ c. o. - rozprowadzenie instalacji: ogrzewanie podłogowe na całości lokalu,
automatyka do sterowania ogrzewaniem podłogowym (7 punktów na lokal)
✓ Pompa ciepłą powietrze – woda typu split (Saunier Duval GeniaAir HA 5-5
OS4.9 kW 230 V + Centrala grzewcza HA 5-5 STB + Regulator SCR 720)
✓ Sterownik do pompy ciepła wraz z czujnikiem pogodowym.
10) Roboty wykończeniowe wewnętrzne:
✓ Wylewki anhydrytowe dedykowane pod ogrzewanie podłogowe.
✓ Tynki gipsowe (ściany i sufity).
Zainteresowane osoby zapraszam do kontaktu z maklerem prowadzącym.