Szczecin, Gumieńce

Domy na Sprzedaż
nr oferty 437903
powierzchnia 139 m2
ilość pokoi 4
piętro parter / 1
standard Stan deweloperski
Piękny szeregowiec na Gumieńcach

Mam przyjemność zaprezentować Państwu bardzo interesujący dom 139m², 4pokojowy w zabudowie szeregowej, znajdujący się na Gumieńcach.
Do nieruchomości przynależy ogród z tarasem, idealny do wypoczynku na świeżym powietrzu, oraz garaż z automatyczną bramą na pilota. Dodatkowo przy domu znajdują się miejsca parkingowe dla mieszkańców i gości.


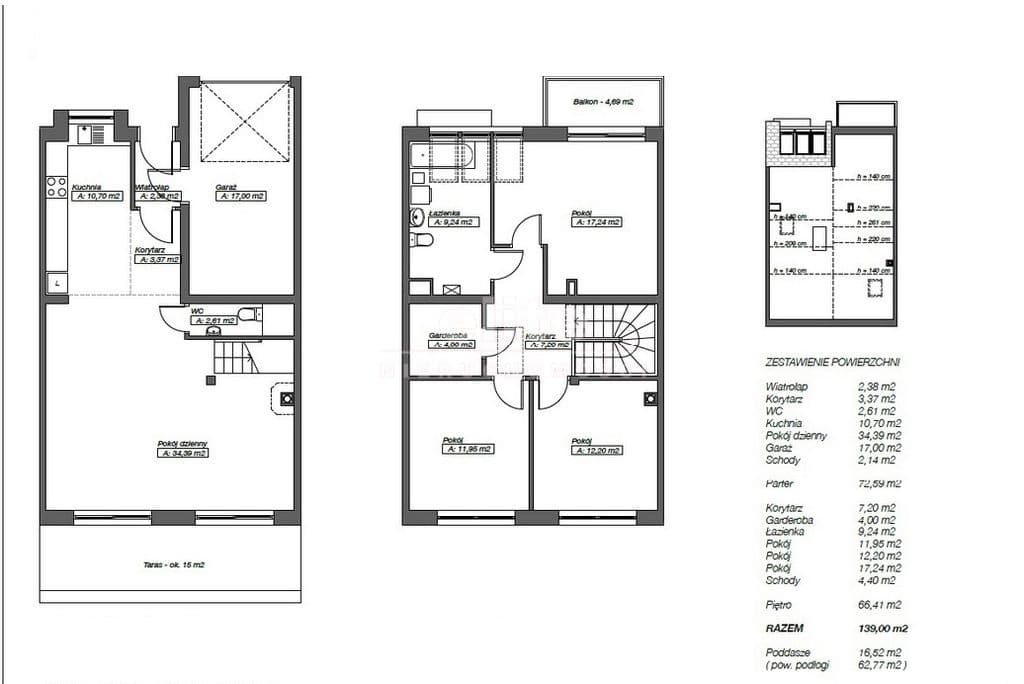
Na powierzchnię użytkową składają się:


Parter:

- Salon z aneksem kuchennym o powierzchni 45,09 m2,
- wc o powierzchni 2,61 m2,
- korytarz o powierzchni 3,37 m2,
- wiatrołap o powierzchni 2,38 m2,
- garaż o powierzchni 17,00 m2,
- schody o powierzchni 2,14 m2.
+ Taras o powierzchni 15m2,
+ Ogród o powierzchni 178 m2.


Piętro:

- Pokój o powierzchni 17,24 m2,
- Pokój o powierzchni 12,20 m2,
- Pokój o powierzchni 11,95 m2,
- Garderoba o powierzchni 4 m2,
- Łazienka o powierzchni 9,24 m2,
- Korytarz o powierzchni   7,20 m2,
- Schody o powierzchni 4,20 m2.
+ Do swojej dyspozycji mają państwo również strych, który nie został wliczony w metraż domu .


Lokalizacja to doskonały wybór dla osób ceniących spokój, bezpieczeństwo i komfort, do centrum miasta zaledwie 15min.
W okolicy znajduje się dużo otwartej przestrzeni, co stanowi ogromny atut tej nieruchomości. W sąsiedztwie dostępne są również apteki, szkoły oraz przedszkola, co czyni to miejsce idealnym dla rodzin.

Nieruchomość sprzedawana w standardzie deweloperskim - Możliwe wykończenie domu pod klienta - odbiór pod klucz.

Serdecznie zapraszam na prezentację – ten dom z pewnością spełni Państwa oczekiwania!

KUPUJEMY NIERUCHOMOŚCI ZA GOTÓWKĘ w Szczecinie oraz nad morzem, również zadłużone: mieszkania, domy, działki - płacimy natychmiast

 Powyższe ogłoszenie ma wyłącznie charakter informacyjny. Nie stanowi ono oferty w myśl art. 66 i n. ustawy z dnia 23.04.1964r. Kodeks cywilny (Dz.U. 1964r. Nr 16, poz. 93, ze zm.).

Cena
1 399 000 zł
Cena za m2
10 064 zł
Miejscowość
Szczecin, Gumieńce
Rodzaj budynku
Terraced
Stan prawny
Własność
Rok budowy
2025
Powierzchnia
139 m2
Powierzchnia działki
178 m2
Kształt działki
Nieregularny
Standard
Stan deweloperski
Liczba pokoi
4
Ogrzewanie
Gazowe
Ciepła woda
Piec gazowy
Typ kuchni
Otwarta
Dodatkowe
Garaż, Ogród
Wyświetleń
16
Sprawdź ratę kredytu
1 399 000 PLN
10 064 PLN / m2

ELITE nieruchomości

tel. 91 817 17 17

zainteresowania@elite.nieruchomosci.pl

Wyrażam zgodę na przetwarzanie danych
1 399 000 Stan deweloperski
Chcesz otrzymywać podobne oferty?

Skorzystaj z automatycznych powiadomień e-mail o nowych ogłoszeniach

© 2026 Elite Nieruchomości Szczecin - Mieszkania i domy na sprzedaż - Szczecin, Warszewo, Mierzyn, Bezrzecze, Gumieńce