Na sprzedaż nowoczesny dom w zabudowie szeregowej w prestiżowej lokalizacji na Gumieńcach .
Inwestycja, mająca charakter osiedla zamkniętego w pełni zagospodarowanego, z szlabanem na pilota, drogi wewnętrzne z polbruku z oświetleniem.
Każdy dom sprzedawany z wyodrębnioną działką (osobna Księga Wieczysta ).
Do nieruchomości przynależą dwa miejsca parkingowe.
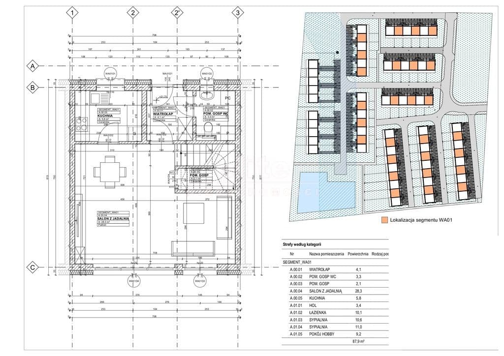
Parter
- pokój dzienny z jadalnią o pow. 28,3m2
- kuchnia 5,8 m2
- pom. gospodarcze z toaletą o pow. 3,3m2
- pom. gospodarcze o pow. 2,1m2
- wiatrołap o pow. 4,1m2
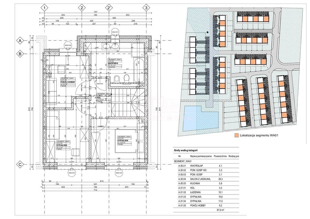
Piętro :
- sypialnia o pow. 11m2
- sypialnia o pow. 10,6m2
- sypialnia o pow. 9,2m2
- łazienka o pow. 10,1m2
- hol o pow. 3,4m2
Poniżej zestawienie użytych materiałów oraz standard wykończenia :
- Ściany nośne porotherm 25 cm + 20cm ocieplenia styropianem grafitowym tynk zewnętrzny silikat.
- ściana między domami - podwójna 18+18 z dylatacją
- Tynki cementowo-wapienne,
- Przygotowana instalacja elektrycznej pod panele fotowoltaiczne
- Ogrzewanie podłogowe: cały parter i piętro
- Pompa ciepła z zasobnikiem wody
- Okna trzyszybowe, ciepły montaż
- W salonie bez progowe drzwi tarasowe podnoszono-przesuwne w systemie HS;
- Puszki elewacyjne z zasilaniem pod rolety zewnętrzne elektryczne ( bez pancerzy ) - parter
- W pokojach rozprowadzona instalacja internetowa oraz TV;
- Instalacja elektryczna, hydrauliczna;
- Dachówka ceramiczna
- Strop poddasza ocieplony pianą PUR - paro przepuszczalną
- Elewacja z elementami imitującymi drewno oraz elementami z cegły klinkierowej
- Drzwi zewnętrzne bezpieczne
- Ogrodzenie między sąsiadami, stalowe kratownice
- Droga wewnętrzna osiedlowa, polbrukowa z oświetleniem.
Dodatkowo za dopłatą możliwość wykonania :
- Systemu rekuperacji
- Montaż klimatyzacji
- Gładzenie ścian i sufitów ( gładź polimerowa)
- Docieplenie dachu pianą PUR
- Wykonanie tarasu z drewna egzotycznego
Dom został zaprojektowany z naciskiem na funkcjonalność i estetykę, dogodny i szybki dojazd do centrum miasta.
Prowizja 0% od kupującego - prowizję pokrywa sprzedający - rynek pierwotny!
Brak opłaty PCC, 2 % do Urzędu Skarbowego.
Zapraszam na prezentację.
KUPUJEMY NIERUCHOMOŚCI ZA GOTÓWKĘ w Szczecinie oraz nad morzem, również zadłużone: mieszkania, domy, działki - płacimy natychmiast
Powyższe ogłoszenie ma wyłącznie charakter informacyjny. Nie stanowi ono oferty w myśl art. 66 i n. ustawy z dnia 23.04.1964r. Kodeks cywilny (Dz.U. 1964r. Nr 16, poz. 93, ze zm.).