Kamień Pomorski

Domy na Sprzedaż
nr oferty 436347
powierzchnia 139 m2
ilość pokoi 3
piętro parter / 1
standard Do drobnego remontu
Piętro domu, 139m2, 3pokoje, działka, 410 tys.zł

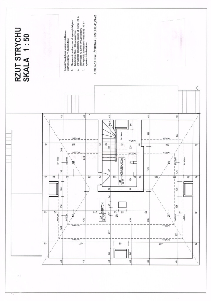
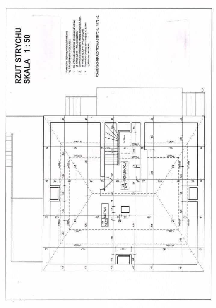
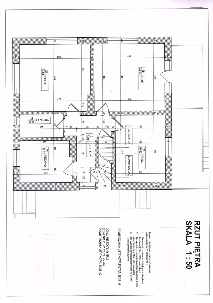
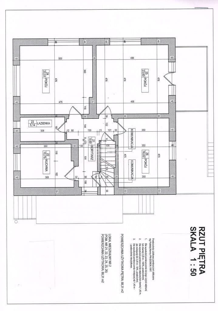
Atrakcyjna część domu wolno stojącego w podziale poziomym, zlokalizowana w Kamieniu Pomorskim, na pierwszym piętrze przedwojennego budynku o klasycznej architekturze. Przedmiotem sprzedaży jest lokal mieszkalny wraz ze strychem, pomieszczeniem gospodarczym w piwnicy, udział w gruncie oraz działka o powierzchni 383m2 przyległa do sprzedawanej nieruchomości. Powierzchnia użytkowa mieszkania wynosi 88,31m2 i składa się z:- korytarza ok. 9m2, -pokoju o pow. ok. 24m2 z wyjściem na balkon, pokoju o pow 23,5m2, dużej kuchni o powierzchni 10m2 oraz łazienki razem z wc o powierzchni 5m2. Pokoje i kuchnia są niezwykle ustawne i bardzo dobrze doświetlone. Na podłogach znajduje się deska oraz w łazience kafle. Okna wymienione na pcv, Instalacja ogrzewania miedziana. Na dachu dachówka cementowa. Współwłaściciele domu dokonali podziału części wspólnych na zasadzie wyłącznego korzystania. Księga Wieczysta bez obciążeń. Na przyległej działce prawdopodobnie istnieje możliwość utworzenia dogodnej ilości miejsc postojowych, wystąpienia o pozwolenie na wybudowanie garażu, lub wykorzystanie jej na cele rekreacyjne - będzie to wynikało z planu ogólnego lub MPZP. Doskonały dojazd do nieruchomości. Miejscowość Kamień Pomorski położona jest nad Zalewem Kamieńskim, 90 km od Szczecina i 8km od morza. Posiada nową, piękną marinę -w jednym z najnowocześniejszym portów jachtowych na południowym Bałtyku oraz zabytkową, XII wieczną Katedrę.

Świadectwo charakterystyki energetycznej - zapotrzebowanie na energię:

EU - użytkową (kWh/m2*rok): 43.61; EK - końcową (kWh/m2*rok): 58.47; EP - nieodnawialną energię pierwotną (kWh/m2*rok): 64.31; EC02 - Wielkość emisji CO2 (t C02/m2*rok): 0.01; UOZE - Udział odnawialnych źródeł energii w zapotrzebowaniu na energię końcową [%]: 0.00;

KUPUJEMY NIERUCHOMOŚCI ZA GOTÓWKĘ w Szczecinie oraz nad morzem, również zadłużone: mieszkania, domy, działki - płacimy natychmiast

 Powyższe ogłoszenie ma wyłącznie charakter informacyjny. Nie stanowi ono oferty w myśl art. 66 i n. ustawy z dnia 23.04.1964r. Kodeks cywilny (Dz.U. 1964r. Nr 16, poz. 93, ze zm.).

Cena
410 000 zł
Cena za m2
4 648 zł
Miejscowość
Kamień Pomorski
Rodzaj budynku
HouseFloor
Stan prawny
Własność
Rok budowy
1940
Powierzchnia
139 m2
Powierzchnia działki
383 m2
Kształt działki
Prostokąt
Standard
Do drobnego remontu
Liczba pokoi
3
Ogrzewanie
CO własne
Ciepła woda
Piec gazowy
Typ kuchni
Oddzielna
Wyświetleń
101
Sprawdź ratę kredytu
410 000 PLN
4 648 PLN / m2

ELITE nieruchomości

tel. 91 817 17 17

zainteresowania@elite.nieruchomosci.pl

Wyrażam zgodę na przetwarzanie danych
410 000 Do drobnego remontu
Chcesz otrzymywać podobne oferty?

Skorzystaj z automatycznych powiadomień e-mail o nowych ogłoszeniach

© 2026 Elite Nieruchomości Szczecin - Mieszkania i domy na sprzedaż - Szczecin, Warszewo, Mierzyn, Bezrzecze, Gumieńce