Szczecin, Kijewo

Domy na Sprzedaż
nr oferty 433230
powierzchnia 120 m2
ilość pokoi 5
piętro parter / 1
standard Stan deweloperski
OKAZJA Kijewo, bliźniak w cenie mieszkania!

Serdecznie zapraszamy do zapoznania się z naszą najnowszą wyłącznością.

Na sprzedaż inwestycja deweloperska zlokalizowana w prawobrzeżnej części Szczecina - Kijewie - składająca się z dwóch budynków dwulokalowych. Jedna część została już zarezerwowana, do zakupu pozostały 3 lokale - jeden skrajny i dwa wewnętrzne. Cena dotyczy lokalu wewnętrznego. Cena zewnętrznego wynosi 1075000zł.

Łączna powierzchnia działki to 1139m2 - na każdy lokal przypada udział po 285m2 - w tym same ogródki po ok.100-120m2.

Do każdego lokalu przynależą dwa miejsca postojowe.

Każdy lokal mieszkalny składa się z dwóch poziomów (plus antresola) o powierzchni użytkowej 111,8m2.
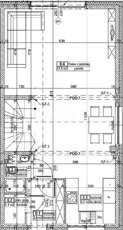
W jej skład wchodzą:
PARTER:
- salon z jadalnią 41,6 m2
- kuchnia 5,2 m2
- łazienka z prysznicem 2,2 m2
- pomieszczenie gospodarcze 1,4 m2
- wiatrołap 3,8 m2
PIĘTRO:
- 4 pokoje: 10,9 m2 10,6 m2 9,5 m2 i 8,1 m2
- łazienka 5,3 m2
- korytarz 5,6 m2
- antresola 7,6 m2.

Budynki wykonane z zastosowaniem technologii pasywnej. Wybudowane z silikatu, ocieplone styropianem 15 cm. Usadowione na ocieplonej płycie podłogowej. Ogrzewanie i ciepła woda z pompy ciepła. Dodatkowo panele fotowoltaiczne.

Woda z sieci miejskiej. Podpięcie do kanalizy i deszczówki.

Świetna lokalizacja - dostęp do pełnej infrastruktury, bliskość Puszczy Bukowej, ścieżek rowerowych oraz dogodny wyjazd z miasta.

Serdecznie polecamy i zapraszamy na prezentacje!

KUPUJEMY NIERUCHOMOŚCI ZA GOTÓWKĘ w Szczecinie oraz nad morzem, również zadłużone: mieszkania, domy, działki - płacimy natychmiast

 Powyższe ogłoszenie ma wyłącznie charakter informacyjny. Nie stanowi ono oferty w myśl art. 66 i n. ustawy z dnia 23.04.1964r. Kodeks cywilny (Dz.U. 1964r. Nr 16, poz. 93, ze zm.).

Cena
949 000 zł
Cena za m2
7 908 zł
Miejscowość
Szczecin, Kijewo
Rodzaj budynku
Bliźniak
Stan prawny
Własność
Rok budowy
2025
Powierzchnia
120 m2
Powierzchnia działki
284 m2
Kształt działki
Prostokąt
Standard
Stan deweloperski
Liczba pokoi
5
Dodatkowe
Garaż, Ogród
Wyświetleń
320
Sprawdź ratę kredytu
949 000 PLN
7 908 PLN / m2

ELITE nieruchomości

tel. 91 817 17 17

zainteresowania@elite.nieruchomosci.pl

Wyrażam zgodę na przetwarzanie danych
949 000 Stan deweloperski
Chcesz otrzymywać podobne oferty?

Skorzystaj z automatycznych powiadomień e-mail o nowych ogłoszeniach

© 2025 Elite Nieruchomości Szczecin - Mieszkania i domy na sprzedaż - Szczecin, Warszewo, Mierzyn, Bezrzecze, Gumieńce