Komfortowy dom w zabudowie bliźniaczej, wysoki standard, garaż, klimatyzacja, świetna lokalizacja blisko Szczecina oraz Stargardu.
Na sprzedaż wyjątkowy dom w zabudowie bliźniaczej o całkowitej powierzchni 168,01 m2, 115,31 m2 powierzchni użytkowej.
Dom zaprojektowany z myślą o wygodzie codziennego życia całej rodziny. Wykończony materiałami najwyższej jakości z dbałością o każdy szczegół.
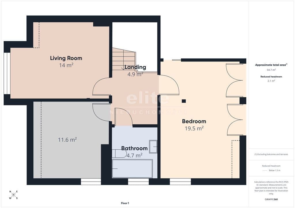
Na powierzchnię domu składają się:
Parter:
- Przedpokój z szafą w zabudowie
- Jasny, przestronny salon z jadalnią, aneksem kuchennym z bezpośrednim wyjściem na taras
- Łazienka z wc
Piętro:
- 3 jasne, przestronne sypialnie, w tym główna sypialnia z garderobą oraz wyjściem na balkon
- Łazienka z wc
Lokalizacja:
Nieruchomość położona w Kobylance, około 7 km do Stargardu, około 15 km do Szczecina. W najbliższej okolicy znajdują się Jezioro Miedwie, las, przychodnia, szkoła, przedszkole, liczne sklepy, przystanki komunikacji miejskiej oraz busy do Stargardu i Szczecina.
Dom został wyposażony w rozwiązania podnoszące komfort i bezpieczeństwo mieszkańców.
- klimatyzacja z funkcją chłodzenia i grzania
- Rolety antywłamaniowe elektrycznie sterowane ( dół )
- Woda oraz kanalizacja z sieci miejskiej
- Ogrzewanie podłogowe w całym domu ( gazowe )
- Alarm
To miejsce, w którym możesz cieszyć się wysokim standardem życia, świetną komunikacją, bliskością terenów rekreacyjnych. Dom doskonale sprawdzi się zarówno dla rodziny z dziećmi, jak i dla osób szukających wygodne, nowoczesnej przestrzeni do życia.
Nie zwlekaj- takie oferty w tej lokalizacji pojawiają się rzadko. Skontaktuj się i umów na prezentację
Niniejsze ogłoszenie jest wyłącznie informacją handlową i nie stanowi OFERTY HANDOWEJ w rozumieniu art. 66 § 1 Kodeksu Cywilnego.