Wyjątkowa okazja, dom w cenie mieszkania ! Na sprzedaż dom w zabudowie bliźniaczej położony w Lipniku 1 km od Stargardu, około 300 m od Jeziora Miedwie.
Nieruchomość o całkowitej powierzchni 93,44 m2 ( 88.98 m2 powierzchni użytkowej), usytuowana na działce o powierzchni 500 m2.
Termin wydania, lipiec 2025 rok.
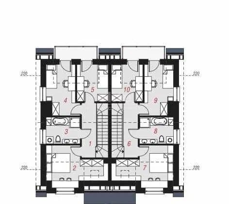
Na powierzchnię 88,98 m2 składają się:
Parter:
- Wiatrołap 3,05 m2
- Hol 5,71 m2
- Toaleta 1,28 m2
- Gabinet 9,25 m2
- Jasny przestronny salon z aneksem kuchennym o powierzchni 24,45 m2 z bezpośrednim wyjściem na taras o powierzchni około 24 m2
Piętro:
- 3 sypialnie o powierzchni 12,15 m2 , 9,55 m2, 7,39 m2
- Łazienka 6,13 m2
- Hol i schody 10,02 m2
Dom w standardzie deweloperskim.
W ramach wyposażenia domu znajduje się:
- Ogrzewanie podłogowe w całym domu
- Okna trzyszybowe
- Woda z sieci miejskiej
- Szambo
- Drzwi antywłamaniowe
- Elewacja ocieplona 20 cm styropian grafit, co zapewnia optymalne izolowanie termiczne
- Taras , wejście do domu oraz miejsce postojowe wyłożone kostką brukową
- Ogrzewanie podłogowe w całym domu, pompa ciepła
Lokalizacja:
Atrakcyjna lokalizacja, tylko 1 km od Stargardu. W pobliżu znajduje się centrum handlowe Lipnik, szkoła, przedszkole, żłobek, tylko 300 do Jeziora Miedwie. Spokojna i cicha okolica, wokół zabudowa jednorodzinna.
Nie czekaj dłużej z decyzją. Wszystko czego potrzebujesz znajduje się w tym wyjątkowym domu, który czeka na Ciebie!
Zapraszam do kontaktu oraz na prezentację.