Mierzyn

Domy na Sprzedaż
Oferta specjalna
Obniżka ceny
nr oferty 437269
powierzchnia 100 m2
ilość pokoi 5
piętro parter / 1
standard Stan deweloperski
Mierzyn blisko szkoły, pompa ciepła, rekuperacja

Na sprzedaż nowoczesny, komfortowy bliźniak w stanie deweloperskim blisko szkoły na Mierzynie

Dom oddzielony od sąsiada podwójną ścianą nośną z dylatacją styropianu pomiędzy ( 18+2+18   )
Sprzedaż na podstawie umowy deweloperskiej i rachunku powierniczego.

standard wykończenia:

ogrzewanie i ciepła woda - indywidualna pompa cieplna powietrzna
• ogrzewanie podłogowe na parterze i piętrze

system rekuperacji z jednostką

okna i drzwi tarasowe PCV, 3 szybowe - ciepły montaż na taśmach - profil Salamander
drzwi na taras w systemie przesuwnym - HS
na parterze w oknach elektryczne rolety zewnętrzne

drzwi wejściowe   w kolorze antracytowym
• rozprowadzone instalacje: wodno-kanalizacyjna, elektryczna wraz z okablowaniem pod kamery i alarm
• rozprowadzona instalacja internetowa i R-TV.

• schody strychowe drewniane, składane
• sufit poddasza, płyty karton-gips zatarte na łączeniach


ściany konstrukcyjne murowane, ocieplone styropianem 20 cm.
• elewacja - tynk mineralny barwiony w masie / panele PCV imitujące drewno.

dachówka ceramiczna płaską, w kolorze antracyt
• rury i rynny PCV w kolorze antracytowym
tynki wewnętrzne gipsowe

ujęcie wody zewnętrzne / ogrodowe

teren wokół budynku wyrównany
ogrodzenie ogródków z tyłu budynku z paneli systemowych
dwa miejsca parkingowe - kostka ażurowa / kostka brukowa


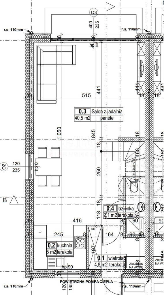
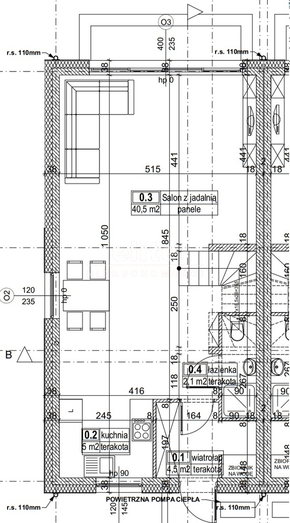
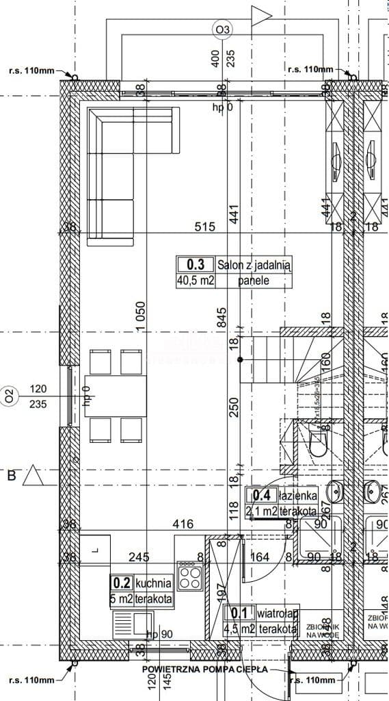
Na powierzchnię 100,6 m2 składają się na parterze :

- salon z jadalnią o pow. 40 m2
- kuchnia o pow 5 m2
- łazienka z toaletą o pow. 2,1 m2
- wiatrołap o pow. 4,5 m2

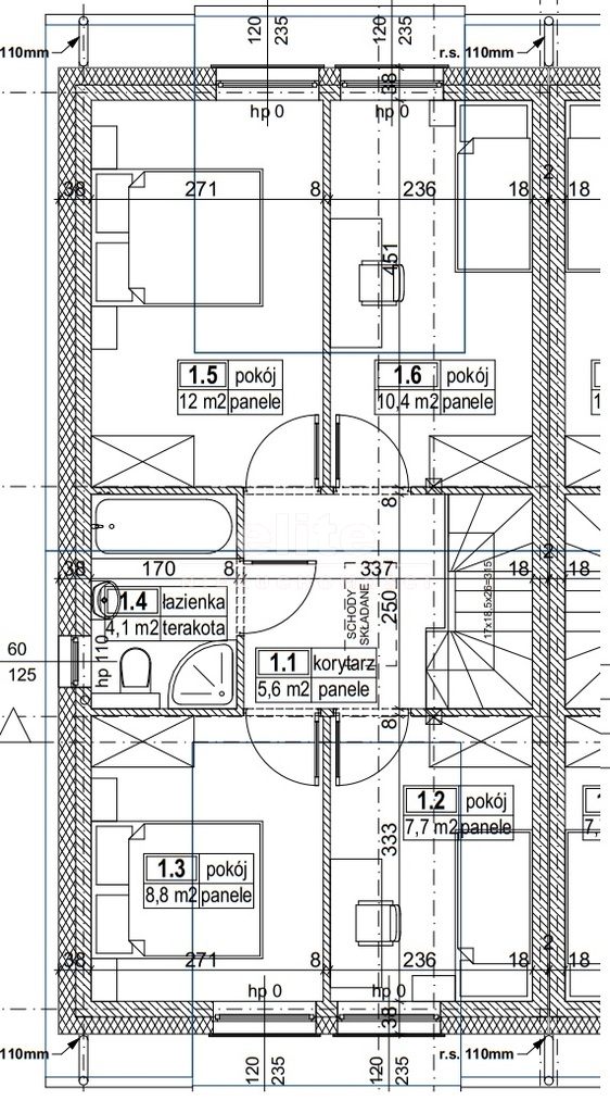
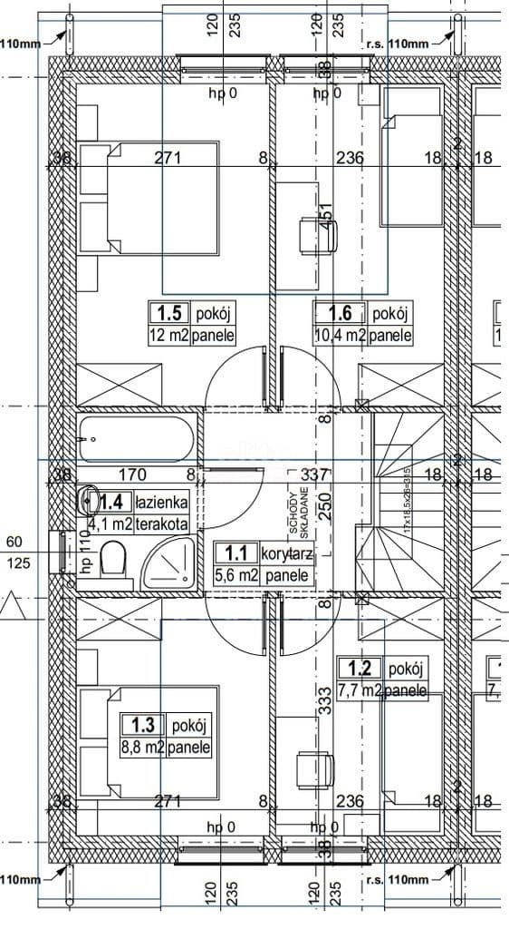
Piętro :

- pokój o pow. 12 m2
- pokój o pow. 10,4 m2
- pokój o pow. 8,8 m2
- pokój o pow. 7,7 m2
- łazienka razem z toaletą o pow, 4,1 m2
- korytarz o pow. 5,6 m2

Kupujący zwolniony z opłaty PCC, 2 % do Urzędu Skarbowego.

Oferta skierowana do najbardziej wymagających Klientów, ceniących wysoki standard wykończenia.
Lokalizacja idealna , blisko szkoły podstawowej i przedszkola, ciche spokojne miejsce .

Wyłączność nie szukaj dalej, zadzwoń i umów się na prezentację. 


KUPUJEMY NIERUCHOMOŚCI ZA GOTÓWKĘ w Szczecinie oraz nad morzem, również zadłużone: mieszkania, domy, działki - płacimy natychmiast

 Powyższe ogłoszenie ma wyłącznie charakter informacyjny. Nie stanowi ono oferty w myśl art. 66 i n. ustawy z dnia 23.04.1964r. Kodeks cywilny (Dz.U. 1964r. Nr 16, poz. 93, ze zm.).

Cena
1 160 000 zł
Cena za m2
11 519 zł
Miejscowość
Mierzyn
Rodzaj budynku
Bliźniak
Stan prawny
Własność
Rok budowy
2025
Powierzchnia
100 m2
Powierzchnia działki
329 m2
Kształt działki
Prostokąt
Standard
Stan deweloperski
Liczba pokoi
5
Ogrzewanie
Pompa ciepła
Ciepła woda
Pompa ciepła
Typ kuchni
Z oknem
Dodatkowe
Garaż, Ogród
Wyświetleń
88
Sprawdź ratę kredytu
1 160 000 PLN
11 519 PLN / m2

Piotr Byzdra

tel. +48 500 358 321

piotr@elite.nieruchomosci.pl

Wyrażam zgodę na przetwarzanie danych
1 160 000 Stan deweloperski
Chcesz otrzymywać podobne oferty?

Skorzystaj z automatycznych powiadomień e-mail o nowych ogłoszeniach

© 2026 Elite Nieruchomości Szczecin - Mieszkania i domy na sprzedaż - Szczecin, Warszewo, Mierzyn, Bezrzecze, Gumieńce