Specjalna oferta cenowa, na pierwsze lokale ! Nowa niższa cena!
Na sprzedaż nowoczesny, komfortowy bliźniak w stanie deweloperskim blisko szkoły na Mierzynie
Dom oddzielony od sąsiada podwójną ścianą nośną z dylatacją styropianu pomiędzy ( 18+2+18 )
Sprzedaż na podstawie umowy deweloperskiej i rachunku powierniczego.
Standard wykończenia:
• ogrzewanie i ciepła woda - indywidualna pompa cieplna powietrzna
• ogrzewanie podłogowe na parterze i piętrze
• system rekuperacji z jednostką
• okna i drzwi tarasowe PCV, 3 szybowe - ciepły montaż na taśmach - profil Salamander
• drzwi na taras w systemie przesuwnym - HS
• na parterze w oknach elektryczne rolety zewnętrzne
• drzwi wejściowe w kolorze antracytowym
• rozprowadzona instalacje: wodno-kanalizacyjna, elektryczna wraz z okablowaniem pod kamery i alarm
• rozprowadzona instalacja internetowa i R-TV.
• schody strychowe drewniane, składane
• sufit poddasza, płyty karton-gips zatarte na łączeniach
• ściany konstrukcyjne murowane, ocieplone styropianem 20 cm.
• elewacja - tynk mineralny barwiony w masie / panele PCV imitujące drewno.
• dachówka ceramiczna płaską, w kolorze antracyt
• rury i rynny PCV w kolorze antracytowym
• tynki wewnętrzne gipsowe
• ujęcie wody zewnętrzne / ogrodowe
• teren wokół budynku wyrównany
• ogrodzenie ogródków z tyłu budynku z paneli systemowych
• dwa miejsca parkingowe - kostka ażurowa / kostka brukowa
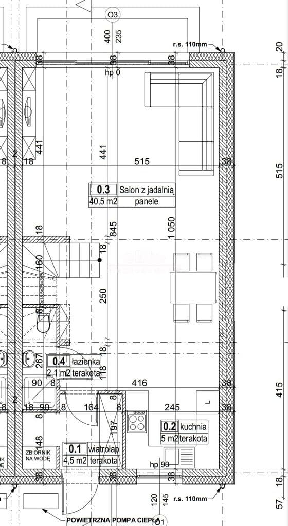
Na powierzchnię 100,7 m2 składają się na parterze :
- salon z jadalnią o pow. 40 m2
- kuchnia o pow 5 m2
- łazienka z toaletą o pow. 2,1 m2
- wiatrołap o pow. 4,5 m2
Piętro :
- pokój o pow. 12 m2
- pokój o pow. 10,4 m2
- pokój o pow. 8,8 m2
- pokój o pow. 7,7 m2
- łazienka razem z toaletą o pow, 4,1 m2
- korytarz o pow. 5,6 m2
Kupujący zwolniony z opłaty PCC, 2 % do Urzędu Skarbowego.
Oferta skierowana do najbardziej wymagających Klientów, ceniących wysoki standard wykończenia.
Lokalizacja idealna , blisko szkoły podstawowej i przedszkola, ciche spokojne miejsce .
Wyłączność nie szukaj dalej, zadzwoń i umów się na prezentację.
KUPUJEMY NIERUCHOMOŚCI ZA GOTÓWKĘ w Szczecinie oraz nad morzem, również zadłużone: mieszkania, domy, działki - płacimy natychmiast
Powyższe ogłoszenie ma wyłącznie charakter informacyjny. Nie stanowi ono oferty w myśl art. 66 i n. ustawy z dnia 23.04.1964r. Kodeks cywilny (Dz.U. 1964r. Nr 16, poz. 93, ze zm.).