Mierzyn

Domy na Sprzedaż
nr oferty 401597
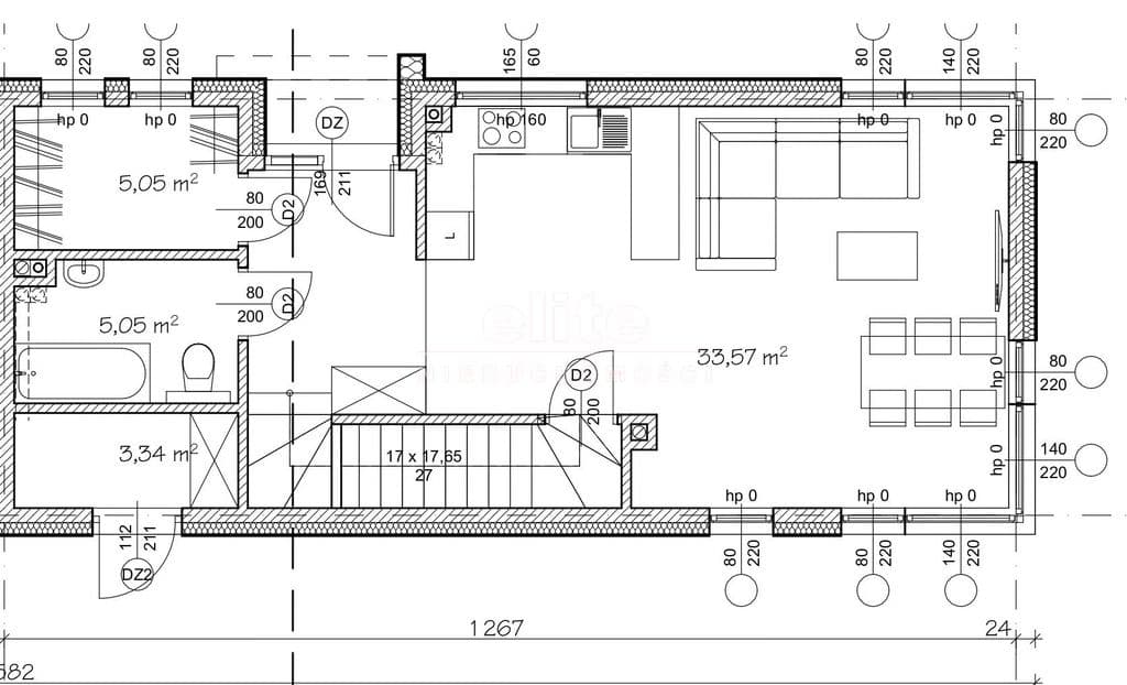
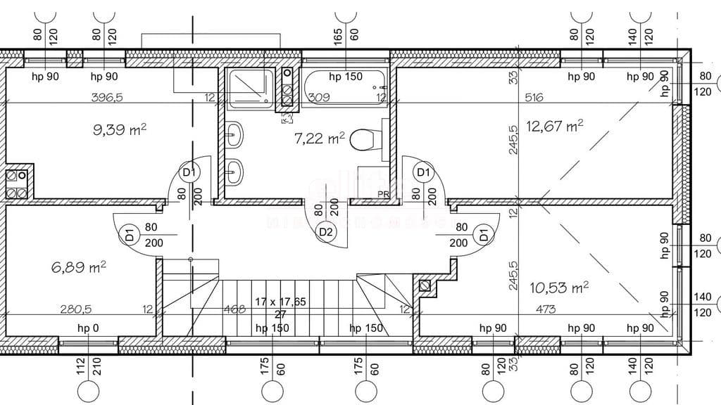
powierzchnia 110 m2
ilość pokoi 5
piętro parter / 1
standard Stan deweloperski
Mierzyn bliźniaki   z widokiem na Staw

Nowo powstająca inwestycja mini osiedla 12 lokali mieszkalnych   jednorodzinnych w zabudowie bliźniaczej, po 110 m powierzchni użytkowej   na działkach po ok 350 m2. Ceny od 939 tys zł. Inwestycja zostanie oddana w stanie deweloperskim III kwartał 2023 rok. przeniesienie prawa własności IV kwartał 2023r. Domy wybudowane z bloczków sylikatowych, ocieplone styropianem 15 cm, okna trójszybowe, dachówka ceramiczna. CO i CW piec gazowy kondensacyjny ogrzewanie podłogowe w całości budynku. Dojazd do posesji drogą wewnętrzną wyłożoną kostką polbrukową. Do każdego lokalu przynależą po dwa miejsca postojowe. Chcąc zapoznać się z aktualną ofertą proszę o kontakt z maklerem prowadzącym.

KUPUJEMY NIERUCHOMOŚCI ZA GOTÓWKĘ w Szczecinie oraz nad morzem, również zadłużone: mieszkania, domy, działki - płacimy natychmiast

 Powyższe ogłoszenie ma wyłącznie charakter informacyjny. Nie stanowi ono oferty w myśl art. 66 i n. ustawy z dnia 23.04.1964r. Kodeks cywilny (Dz.U. 1964r. Nr 16, poz. 93, ze zm.).

Cena
989 000 zł
Cena za m2
8 990 zł
Miejscowość
Mierzyn
Rodzaj budynku
Bliźniak
Stan prawny
Własność
Rok budowy
2022
Powierzchnia
110 m2
Powierzchnia działki
350 m2
Kształt działki
Prostokąt
Standard
Stan deweloperski
Liczba pokoi
5
Typ kuchni
Aneks
Dodatkowe
Ogród
Wyświetleń
1139
Sprawdź ratę kredytu
989 000 PLN
8 990 PLN / m2

ELITE nieruchomości

tel. 91 817 17 17

zainteresowania@elite.nieruchomosci.pl

Wyrażam zgodę na przetwarzanie danych
989 000 Stan deweloperski
Chcesz otrzymywać podobne oferty?

Skorzystaj z automatycznych powiadomień e-mail o nowych ogłoszeniach

© 2026 Elite Nieruchomości Szczecin - Mieszkania i domy na sprzedaż - Szczecin, Warszewo, Mierzyn, Bezrzecze, Gumieńce