Na sprzedaż nowoczesny dom w zabudowie bliźniaczej o powierzchni użytkowej 136 m², położony w w Mierzynie. Do domu przynależy działka o powierzchni 350 m²
Dom został zaprojektowany z myślą o wygodzie codziennego życia. Na parterze znajduje się przestronna część dzienna z dużym salonem i aneksem kuchennym oraz garaż w bryle budynku. Na piętrze zaplanowano cztery niezależne sypialnie, łazienkę oraz pomieszczenie gospodarcze, co zapewnia komfortową przestrzeń dla całej rodziny.
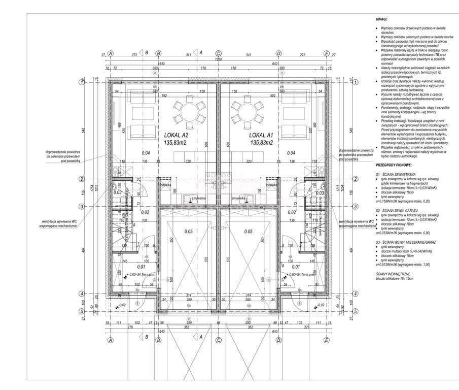
Rozkład pomieszczeń
Parter – 66,05 m²
• przedsionek – 5,45 m²
• korytarz – 5,52 m²
• WC – 1,68 m²
• salon z aneksem kuchennym – 35,77 m²
• garaż – 17,63 m²
Piętro – 69,78 m²
• sypialnia – 11,11 m²
• sypialnia – 12,59 m²
• sypialnia – 12,98 m²
• sypialnia – 9,09 m²
• łazienka – 7,28 m²
• pomieszczenie gospodarcze – 2,91 m²
• korytarz – 9,37 m²
• schody – 4,45 m²
Dodatkowa przestrzeń
Nad piętrem znajduje się dodatkowe poddasze do adaptacji, które może zostać wykorzystane jako przestrzeń rekreacyjna, pokój hobby, biuro lub dodatkowa strefa przechowywania.
Lokalizacja
Inwestycja położona jest w Mierzynie – w spokojnej części miejscowości, w otoczeniu zabudowy jednorodzinnej, a jednocześnie z szybkim dojazdem do Szczecina.
Komunikacja miejska: przystanek ok. 200 m od inwestycji (około 3 minuty spacerem), skąd w kilkanaście minut można dojechać do centrum Szczecina.
W najbliższej okolicy znajdują się sklepy spożywcze, szkoła podstawowa, przedszkole, plac zabaw oraz tereny zielone z siłownią plenerową – wszystko w odległości do około 1 km.
Dodatkowe atuty
• garaż w bryle budynku
• cztery sypialnie na piętrze
• ogród do własnej aranżacji
• nowoczesna i energooszczędna technologia budowy
• funkcjonalny układ pomieszczeń idealny dla rodziny
Przewidywany termin zakończenia realizacji: 31.06.2026
W razie pytań lub chęci umówienia prezentacji nieruchomości zapraszamy do kontaktu.
Niniejsze ogłoszenie ma charakter informacyjny i nie stanowi oferty w rozumieniu art. 66 §1 Kodeksu cywilnego.