Nowa inwestycja 2025 zakończona! ostatnie domy na sprzedaż.
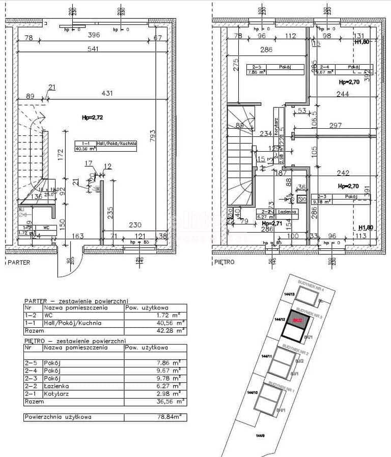
Prezentujemy ostatni dostępny lokal dwupoziomowy w zabudowie bliźniaczej w centrum Mierzyna o powierzchni 78,84 m2. Stan deweloperski.
STAN DEWELOPERSKI
* LOKAL NR 1 - ostatni
Lokal o powierzchni 78,84m2 w cenie 770.000 zł
Ogród ok. 52m2
Powierzchnia działki 103m2
Lokal składa się z:
PARTER:
* przedpokój, salon z aneksem kuchennym oraz wyjściem do ogrodu ok. 40,56 m2
* osobne wc z umywalką ok. 1,72 m2
PIĘTRO 1
* pokój 1 ok. 7,86 m2
* pokój 2 ok. 9,67 m2
* pokój 3 ok. 9,78 m2
* łazienka z wc, wanną oraz prysznicem ok. 6,27 m2
* kortytarz ok 2,98 m2
W cenie lokalu własny ogródek oraz dwa zewnętrzne miejsca postojowe.
Lokal bezczynszowy. Ogrzewanie podłogowe - pompa ciepła. Okna PCV trzyszybowe.
Woda oraz kanalizacja z sieci gminnej.
Dodatkowa kwota za udział w drodze 6150 zł brutto – płatna jednorazowo do umowy przeniesienia własności.
ZDJĘCIA PREZENTUJĄ STAN RZECZYWISTY lokalu wykończonego oraz przykładowe wizualizacje do własnej aranżacji.
Polecam ze względu na lokalizację, spokojną i cichą okolicę idealną do odpoczynku.
Zapraszam na pierwszą prezentację.
KUPUJEMY NIERUCHOMOŚCI ZA GOTÓWKĘ w Szczecinie oraz nad morzem, również zadłużone: mieszkania, domy, działki - płacimy natychmiast
Powyższe ogłoszenie ma wyłącznie charakter informacyjny. Nie stanowi ono oferty w myśl art. 66 i n. ustawy z dnia 23.04.1964r. Kodeks cywilny (Dz.U. 1964r. Nr 16, poz. 93, ze zm.).