Nowoczesny dom w Morzyczynie – Standard Premium blisko Jeziora Miedwie
Zapraszam do zapoznania się z ofertą sprzedaży funkcjonalnego domu w zabudowie bliźniaczej, zlokalizowanego na osiedlu zamkniętym w Morzyczynie.
Inwestycja obejmuje 4 lokale mieszkalne na zamkniętym, kameralnym osiedlu.
Każdy dom charakteryzuje się nowoczesną bryłą, wysokim standardem wykończenia oraz przemyślanym układem wnętrz, idealnym dla rodzin oraz osób pracujących zdalnie.
LOKALIZACJA I OTOCZENIE Dom położony jest w bezpośrednim sąsiedztwie Jeziora Miedwie – jednego z największych i najczystszych akwenów w regionie. To idealne miejsce dla osób ceniących aktywny wypoczynek:
- Rekreacja: W okolicy znajduje się amfiteatr, marina motorowodna oraz oświetlona promenada spacerowa.
- Sport: Morzyczyn to punkt startowy "Pętli Miedwiańskiej" (ok. 52,5 km tras rowerowych) oraz licznych ścieżek biegowych.
- Komunikacja: Szybki dojazd do Stargardu (10-15 min) oraz Szczecina (ok. 30 min samochodem lub 32 min pociągiem ze stacji Miedwiecko).
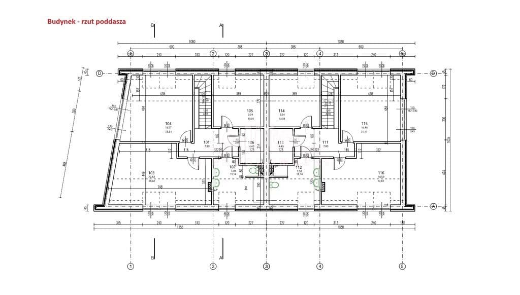
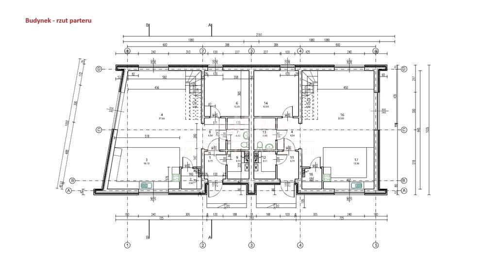
SPECYFIKACJA POMIESZCZEŃ (Powierzchnia użytkowa: 155,55 m2) Wnętrza zostały zaprojektowane z podziałem na przestronną strefę dzienną (parter) oraz prywatną strefę nocną (piętro).
PARTER (84,50 m2) – wysokość 2,90 m: - Przedsionek: 4,00 m2
- Strefa dzienna z kuchnią: 53,50 m2 (duże przeszklenia, wyjście na taras)
- Pomieszczenie biurowe: 13,80 m2 (idealne do pracy zdalnej)
- Łazienka: 4,20 m2
- Pomieszczenie techniczne: 4,00 m2
- Spiżarnia: 5,00 m2 (bezpośrednio przy kuchni)
PIĘTRO (71,05 m2) – wysokość 2,70 m:- 3 x Sypialnia 11,70 m2, 18,65 m2, 18,30 m2
- Łazienka: 9,30 m2 (miejsce na wannę i prysznic)
- Pralnia: 4,40 m2 (praktyczne rozwiązanie w strefie sypialnianej)
- Hol: 8,70 m2
STANDARD WYKONANIA I TECHNOLOGIA Budynki realizowane są przy użyciu wysokiej jakości materiałów, zapewniających doskonałą izolację termiczną i trwałość:
- Konstrukcja: Płyta fundamentowa grzewcza (25 cm + XPS) oraz ściany z betonu komórkowego (24 cm) z ociepleniem styropianem (20 cm).
- Elewacja: Panele WPC o strukturze drewna na parterze oraz blacha na rąbek stojący marki RUKKI w kolorze antracytowym.
- Stolarka: Aluminiowe okna 3-szybowe (system AluSky/Alusystem). W oknach szczytowych zastosowano bezpieczne szkło klejone.
- Ogrzewanie: Podłogowe w całym domu (płyta grzewcza na parterze, klasyczna podłogówka wodna na piętrze). Instalacja przygotowana pod piec gazowy.
- Instalacje: Dom przygotowany pod montaż rekuperacji, alarmu, monitoringu oraz wideodomofonu.
DZIAŁKA I INFRASTRUKTURA Do każdego domu przynależy działka o powierzchni ok. 600 m2. Mieszkańcy mają również prawo do korzystania z terenu wspólnego na terenie swojego miniosiedla.
- Teren zamknięty, brama przesuwna sterowana pilotem.
- Podjazdy wykończone kostką polbruk.
- Ogrodzenie panelowe w kolorze antracytowym.
INWESTYCJA Inwestycja w Morzyczynie to również bezpieczna lokata kapitału w regionie o stale rosnącym prestiżu. Wartość nieruchomości wspierają zaplanowane na lata 2025–2026 kluczowe inwestycje gminne, w tym budowa nowoczesnego Centrum Kultury przy amfiteatrze oraz sukcesywna modernizacja infrastruktury drogowej i turystycznej w okolicy.
Ze względu na bezpośrednie sąsiedztwo Jeziora Miedwie, które przyciąga rocznie około 200 tysięcy turystów, nieruchomość ta posiada wysoki potencjał do generowania dochodu pasywnego z wynajmu krótkoterminowego, którego rentowność w regionach turystycznych bywa nawet o 100% wyższa niż w przypadku najmu długoterminowego.
Oferta dotyczy jednego domu w zabudowie bliźniaczej w stanie deweloperskim.
Istnieje możliwość wyboru konkretnego lokalu spośród 4 dostępnych jednostek.
Zapraszam do kontaktu w celu umówienia prezentacji i poznania szczegółów inwestycji.