Na sprzedaż nowoczesny bliźniak w stanie deweloperskim, położony na kameralnym i spokojnym osiedlu, w otoczeniu ciszy i zieleni.
Dom o funkcjonalnym układzie 4 pokoi, zapewnia wygodę codziennego życia.
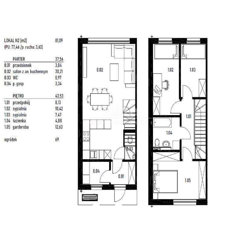
Na parterze znajduje się przedsionek (3,04m2), pomieszczenie gospodarcze (3,34m2), oddzielne WC (0,97m2), oraz przestronna strefa dzienna, na którą składa się salon z aneksem kuchennym (30,21m2) i wyjściem do ogródka (63m2).
Na piętrze natomiast mamy duży przedpokój (8,13m2), trzy sypialnie o wymiarach - 10,42m2, 7,47m2 i 12,63m3, oraz łazienkę (4,88m2).
Dodatkowym atutem jest spora powierzchnia strychowa, idealna do przechowywania.
Nieruchomość została wyposażona w nowoczesne i energooszczędne rozwiązania:
pompę ciepła, rekuperację, oraz ogrzewanie podłogowe w każdym pomieszczeniu.
Bezpieczeństwo zapewniają drzwi antywłamaniowe, a możliwość podłączenia światłowodu, gwarantuje szybki internet do pracy i rozrywki.
Przed budynkiem znajdują się dwa prywatne miejsca postojowe.
To idealna propozycja dla osób ceniących nowoczesny design, komfort oraz spokojne otoczenie z szybkim dostępem do infrastruktury miejskiej.
W ofercie posiadamy jeszcze inne - podobne lokale.
KUPUJEMY NIERUCHOMOŚCI ZA GOTÓWKĘ w Szczecinie oraz nad morzem, również zadłużone: mieszkania, domy, działki - płacimy natychmiast
Powyższe ogłoszenie ma wyłącznie charakter informacyjny. Nie stanowi ono oferty w myśl art. 66 i n. ustawy z dnia 23.04.1964r. Kodeks cywilny (Dz.U. 1964r. Nr 16, poz. 93, ze zm.).