Szczecin, Pilchowo

Domy na Sprzedaż
Obniżka ceny
nr oferty 403635
powierzchnia 155 m2
ilość pokoi 5
piętro parter / 1
standard Bardzo dobry
Pilchowo nowy bliźniak 137m2 w otulinie lasu

Na sprzedaż bliźniak - dwulokalowy, który znajduje się w miejscowości Pilchowo na kameralnym osiedlu w otulinie lasu.

Domy wykonane z najwyższą starannością oraz dbałością o każdy detal.

Nieruchomość można kupić w dwóch wariantach:

STAN DEWELOPERSKI ZAMKNIĘTY -

stan deweloperski zamknięty Premium: w cenie 122 9000 zł

- ogrzewanie podłogowe na poziomie parteru
- instalacje
- drzwi antywłamaniowe klasa RC2 - szyby w drzwiach klasa P4 "Wiśniowski"
- okna 3 szybowe "Sokółka" - odporność na obciążenie wiatru klasa C4, wodoszczelność - klasa 7A, przepuszczalność powietrza -3, właściwości
   akustyczne - Rw(C:Ctr): NPD, przenikalność ciepła =-UW 0.80 W/m2k - Ciepły montaż okien (warstwowy)
- posadzki,
- tynki,
- pompa ciepła " Nibe "
- brama wjazdowa "Wiśniowski"
- zagospodarowanie terenu,
- dachówka - blachodachówka z tłoczeniami "Braas"
- kominy spalinowe pod kominek " Hoch"

* Ściany wewnętrzne nośne:
- wykończenie ścian tynk cementowo-wapienne
- ściany murowane z bloczków silikatowych kl. 15gr -24cm na zaprawie cienkowarstwowej
- tynk cementowo-wapienne

*Ściany wewnętrzne działowe
- tynk cementowo-wapienne
- ściana murowana z bloczków silikatowych kl. 15 gr. 12cm na zaprawie cienkowarstwowej
- tynk cementowo-wapienne

*strop międzykondygnacyjny
- posadzka - warstwa wykończeniowa gr. 2cm
- wylewka betonowa gr. 7cm - grubość wylewki dostosowana do instalacji ogrzewania podłogowego
- płyta żelbetowa gr. 16cm
- tynk cementowo-wapienny

Do każdego lokalu przynależy działka o powierzchni ok. 436 m2

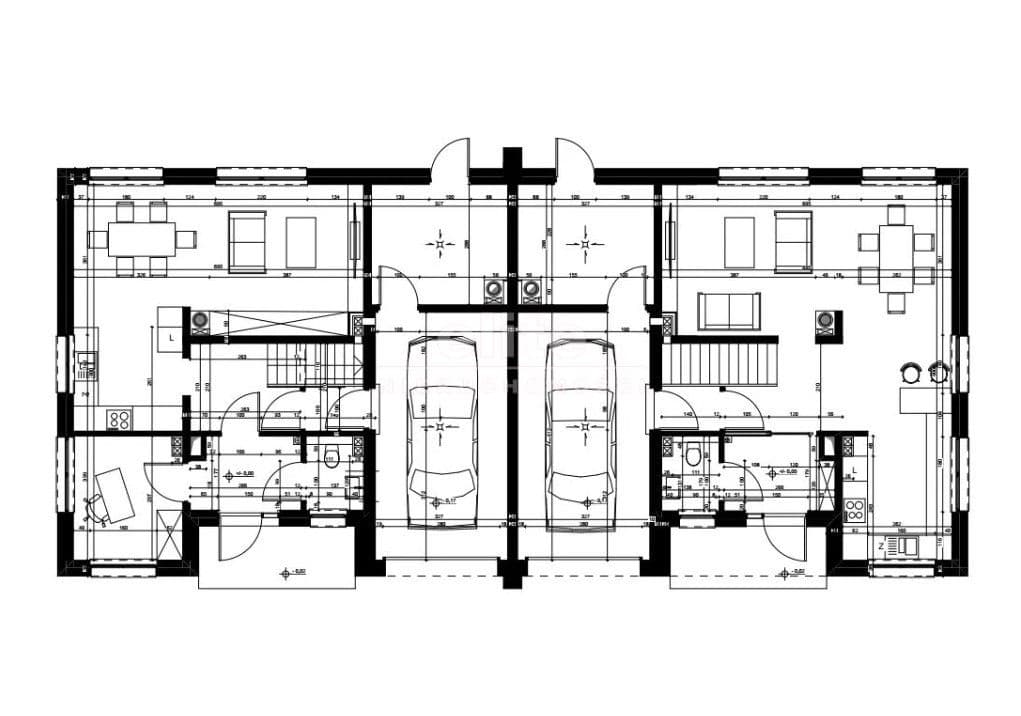
Każdy lokal, o powierzchni 155 m2 (pow. użytkowa lokalu -136,7m2, pow. garażu - 18,8m2) może pełnić funkcję komfortowego rodzinnego domu, ale również może być wykorzystany do prowadzenia działalności gospodarczej.

Kupujący nie płaci 2%podatku PCC

Zapraszam na prezentację

KUPUJEMY NIERUCHOMOŚCI ZA GOTÓWKĘ w Szczecinie oraz nad morzem, również zadłużone: mieszkania, domy, działki - płacimy natychmiast

 Powyższe ogłoszenie ma wyłącznie charakter informacyjny. Nie stanowi ono oferty w myśl art. 66 i n. ustawy z dnia 23.04.1964r. Kodeks cywilny (Dz.U. 1964r. Nr 16, poz. 93, ze zm.).

Cena
1 162 500 zł
Cena za m2
7 500 zł
Miejscowość
Szczecin, Pilchowo
Rodzaj budynku
Bliźniak
Stan prawny
Własność
Rok budowy
2022
Powierzchnia
155 m2
Powierzchnia działki
436 m2
Kształt działki
Prostokąt
Standard
Bardzo dobry
Liczba pokoi
5
Ogrzewanie
Podłogowe, Elektryczne
Ciepła woda
Pompa ciepła
Typ kuchni
Otwarta
Dodatkowe
Garaż, Ogród
Wyświetleń
1344
Sprawdź ratę kredytu
1 162 500 PLN
7 500 PLN / m2

Justyna Mączyńska

tel. +48 505 284 034

justyna@elite.nieruchomosci.pl

Wyrażam zgodę na przetwarzanie danych
1 162 500 Bardzo dobry
Chcesz otrzymywać podobne oferty?

Skorzystaj z automatycznych powiadomień e-mail o nowych ogłoszeniach

© 2026 Elite Nieruchomości Szczecin - Mieszkania i domy na sprzedaż - Szczecin, Warszewo, Mierzyn, Bezrzecze, Gumieńce