DOMY W ZABUDOWIE SZEREGOWEJ Z OGRZEWANIEM i CIEPŁĄ WODĄ MIEJSKĄ
Powstaje nowa inwestycja w prestiżowej dzielnicy Polic !
Projekt obejmuje nowoczesne domy jednorodzinne w zabudowie szeregowej z ogródkami oraz miejscami postojowymi przy ulicy Kresowej.
Docelowo inwestycja składać się będzie z dwóch domów w zabudowie szeregowej po 2 segmenty. (Łącznie 4 szeregowce).
Każdy segment to budynek jednorodzinny w zabudowie szeregowej, realizowany w stanie deweloperskim.
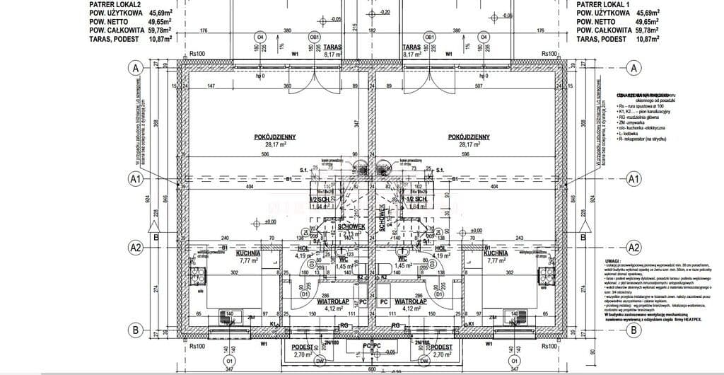
Powierzchnia użytkowa segmentu: 135m² Do każdej nieruchomości będzie przynależała działka ok. 300m2
Układ pomieszczeń parter:
- przestronny salon z wyjściem na taras i ogródek,
- kuchnia,
- WC,
- schowek,
- wiatrołap.
Z salonu bezpośrednie wyjście na taras i prywatny ogródek, idealny do wypoczynku i rekreacji.
Piętro:
- trzy ustawne pokoje,
- łazienka z WC,
- korytarz.
Poddasze idealne do wykorzystania na siłownię , pokój ciszy , bądź sypialnie.
Projekt został zaprojektowany z myślą o maksymalnej funkcjonalności, komforcie oraz wygodzie codziennego użytkowania.
Oraz poddasze do własnej aranżacji.
Fundamenty:
- ławy żelbetowe beton
- izolacja przeciwwilgociowa
- izolacja termiczna ścian fundamentowych styropian fundamentowy wodoodporny
Ściany: nośne dwuwarstwowe z bloczków silikatowych . Działowe z bloczków silikatowych.
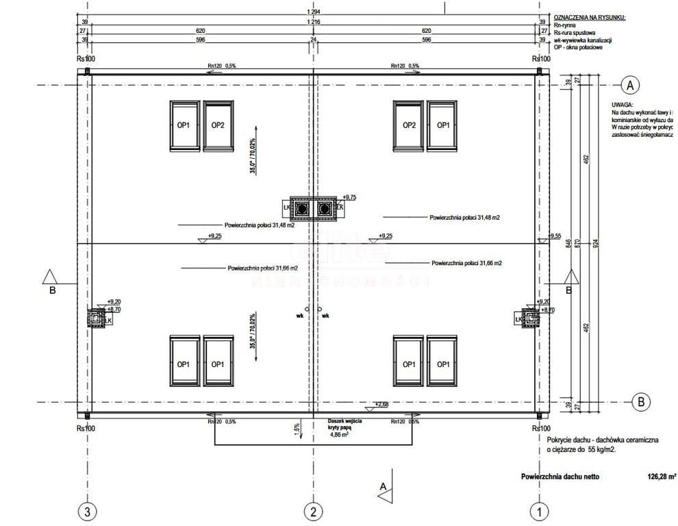
Dach: więźba dachowa drewniana, dachówka ceramiczna, rynny PCV, obróbki blacharskie z blachy stalowej ocynkowanej lub cynkowej
Okna; PCV, trzyszybowe, ciepły montaż
Drzwi tarasowe rozsuwane
Schody wewnętrzne monolityczne żelbetowe.
Ocieplenie budynku- styropian zakończony pucem.
Ogrzewanie miejskie , ogrzewanie podłogowe w całym domu i grzejniki łazienkowe.
Teren: ogrodzenie przydomowych ogródków - z paneli, dojścia do budynków
Powierzchnia działki na którym posadowione są dwa budynki to powierzchnia 1203 m2.
Nieruchomość ogrodzona. Dojazd drogą główną asfaltową. Dobry dojazd do nieruchomości, cicha, kameralna uliczka.
W pobliżu przystanki autobusowe w stronę Tanowa, Jasienicy i Szczecina, ścieżki leśne i rowerowe. Kilka minut piechotą park handlowy Chemik Park, Lidl, oraz szkoła podstawowa nr 8.
Wysoki standard wykończenia, bliskość do centrum miasta a jednocześnie spokój, cisza oraz bezpieczna okolica gwarantuje komfort zamieszkania.
Przewidywany termin zakończenia inwestycji IV kwartał 2026 roku./I kwartał 2027roku
Już dziś możesz zarezerwować swój wymarzony dom! Kupując tą nieruchomość nie płacisz PCC! Sprzedaż na podstawie umowy deweloperskiej.
Zapraszam na prezentację!