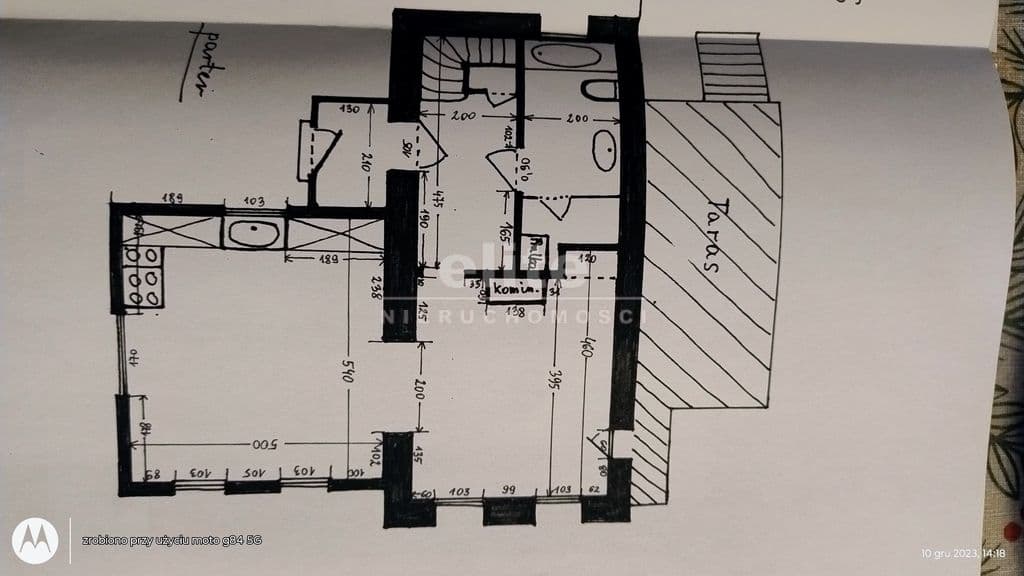
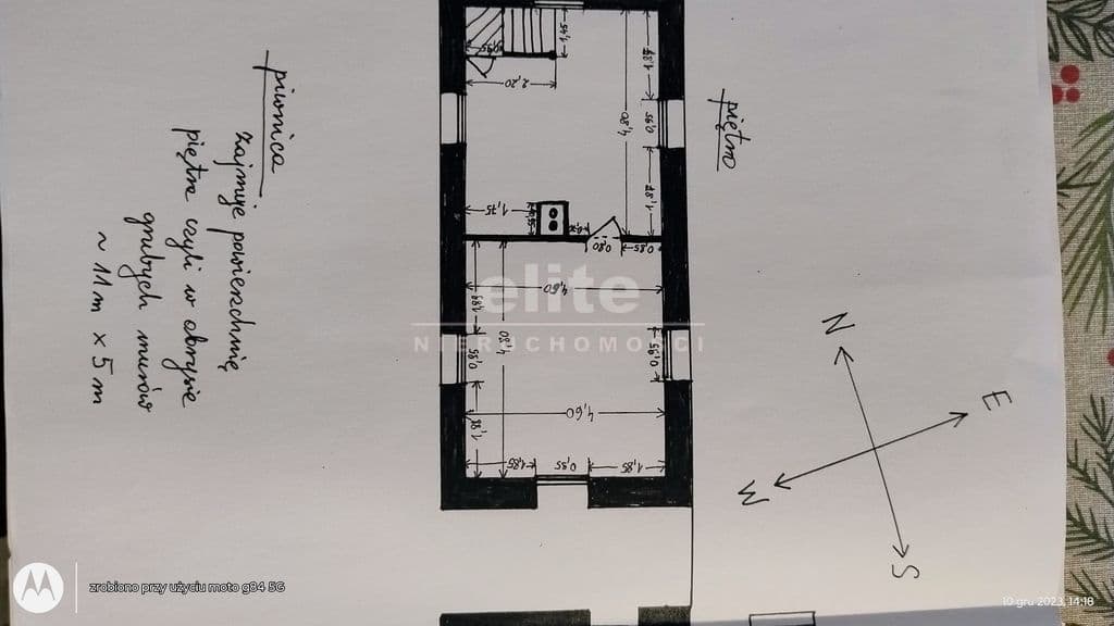
Oferujemy na sprzedaż wyjątkową i klimatyczną nieruchomość - domek dróżnika o powierzchni 120 m2 , działka 1700 m2 . Nieruchomość zlokalizowana w Popielu, w okolicach Gryfic, ok. 30 km od morza. Dom pochodzi z roku 1937, wyremontowany i rozbudowany w 2012 roku. Dobudowana została część stanowiąca powierzchnię salonu z aneksem kuchennym. Parter to dwa pokoje, wspomniany salon z aneksem kuchennym, pokój z kominkiem, przedpokój , łazienka z wc i wiatrołap. Pod starszą częścią budynku duża piwnica / ok. 50 m2/ do której, wejście prowadzi z przedpokoju. W piwnicy zainstalowany piec wielofunkcyjny na pellet, drewno lub węgiel. Piec z podajnikiem. Podłoga na parterze wyłożona terakotą - podgrzewana. Na piętrze 2 pokoje . w tym jeden przejściowy , ogrzewanie stanowią grzejniki panelowe. W całym domu okna PCV, ściany w jasnych kolorach. W łazience wanna obudowana, umywalka, wc i dodatkowe pomieszczenie gospodarcze. Dodatkowym źródłem ciepła jest kominek.
Działka częściowo ogrodzona płotem drewnianym od strony ulicy. Wiata drewniana na dwa samochody.
Zadbano o utrzymanie zabytkowego charakteru budynku i jego wnętrza. Dobrane meble podkreślają niepowtarzalny klimat wnętrza. Mury zewnętrzne to czerwona cegła na parterze i zabudowa ryglowa na piętrze. Dach dwuspadowy pokryty dachówką.
Od strony ogrodu duży drewniany taras. Obok posesji las bukowy , po drugiej stronie ulicy biegną tory Nadmorskiej Kolejki Wąskotorowej z Gryfic / jest przystanek/ do Niechorza, Rewala, Pogorzelicy.
Własne ujęcie wody - studnia głębinowa, przydomowa oczyszczalnia ścieków. Gaz z butli.
Cena do negocjacji / w cenie mogą pozostać meble i całe wyposażenie/.
Polecam ze względu na wyjątkowość domu , otoczenia, bardzo dobrego dojazdu nad morze.
KUPUJEMY NIERUCHOMOŚCI ZA GOTÓWKĘ w Szczecinie oraz nad morzem, również zadłużone: mieszkania, domy, działki - płacimy natychmiast
Powyższe ogłoszenie ma wyłącznie charakter informacyjny. Nie stanowi ono oferty w myśl art. 66 i n. ustawy z dnia 23.04.1964r. Kodeks cywilny (Dz.U. 1964r. Nr 16, poz. 93, ze zm.).