Planujesz skredytować to marzenie – zadzwoń.
Ciekawy projekt budynku, przemyślany i ergonomiczny rozkład pomieszczeń, wysoki standard deweloperskiego wykończenia oraz dobra lokalizacja w parze z relatywnie niską ceną tworzą tę ofertę bardzo atrakcyjną.
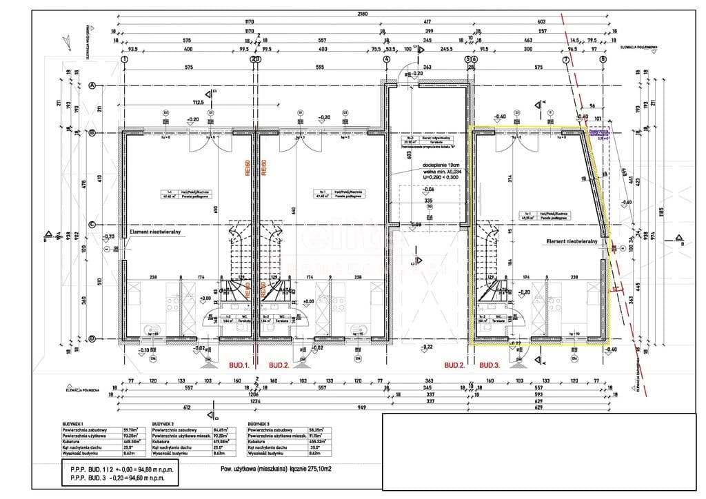
Budynek o powierzchni 91,15 m2 z dużym salonem z aneksem kuchennym, miejscem na jadalnię, 3 sypialniami i 2 łazienkami, a także strychem jako pomieszczeniem magazynowym (podłoga z płyt OSB, właz z drabinką).
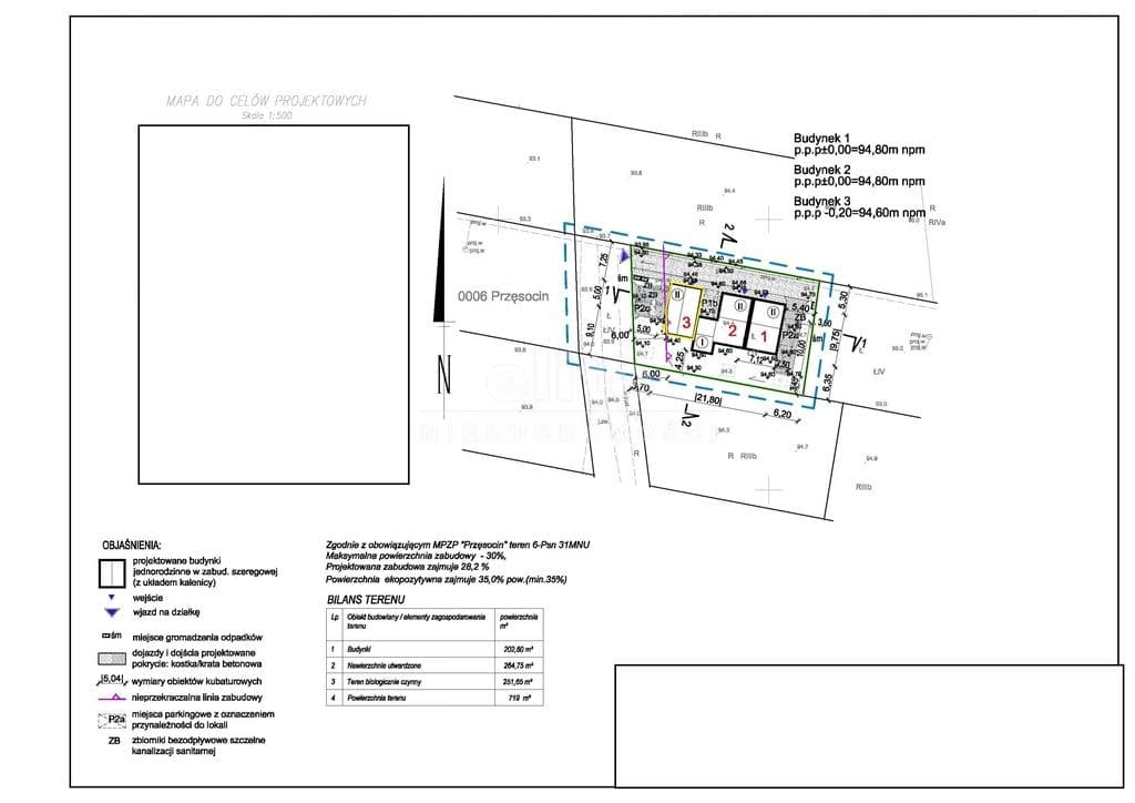
Bardzo dobrze skomunikowany w odległości ok. 400 metrów od przystanków komunikacji miejskiej skąd dojedziemy bezpośrednio zarówno do centrum Szczecina jak i Polic, w okolicach liczne punkty handlowe oraz usługowe, park handlowy Vendo Park oraz to co najcenniejsze, spacerem 15 minut do puszczy Wkrzańskiej.
Idealne miejsce dla rodziny, poszukującej segmentu z ogródkiem, w cenie mieszkania w bloku, gdzie komunikacja nie jest przeszkodą.
Kupujący zwolniony z podatku PCC 2%
Planowane zakończenie budowy koniec 2026, planowane przeniesienie własności do końca kwietnia 2027.
Zapraszam do zapoznania się z ofertą.
KUPUJEMY NIERUCHOMOŚCI ZA GOTÓWKĘ w Szczecinie oraz nad morzem, również zadłużone: mieszkania, domy, działki - płacimy natychmiast
Powyższe ogłoszenie ma wyłącznie charakter informacyjny. Nie stanowi ono oferty w myśl art. 66 i n. ustawy z dnia 23.04.1964r. Kodeks cywilny (Dz.U. 1964r. Nr 16, poz. 93, ze zm.).