Dom na sprzedaż w zabudowie bliźniaczej w stanie deweloperskim, z garażem i ogródkiem, położony przy ulicy Zielonej w miejscowości Redlica pomiędzy Wołczkowem a Dobrą w bliskiej odległości od drogi asfaltowej (droga dojazdowa z dobrze ułożonych płyt betonowych 1km, dobrze oświetlona).
Dom:
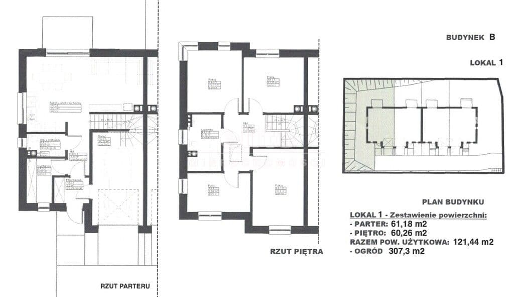
- pow. użytkowa 121,44mkw
- orientacja na wschód i południe (dużo światła)
- wys. pomieszczeń na parterze 290cm
- ściany: pustak ceramiczny Porotherm
- strop i ławy: żelbet
- dach: konstrukcja drewniana, dachówka ceramiczna
- ocieplenie budynku - styropian 20 cm
- ocieplenie stropu nad piętrem - wełna mineralna 25 cm
- izolacja przeciwwilgociowa i przeciwwodna; izolacja podłogi – styropian 20 cm
- sufit na piętrze w technologii kartonowo - gipsowej GK
- drzwi wejściowe metalowe antywłamaniowe
- okna PCV trzyszybowe; parapety zewnętrzne metalowe
- obróbka blacharska - blacha ocynkowana
- wykończenie ścian - tynki gipsowe
- ogrzewanie podłogowe w całym domu z piecem gazowym firmy De Dietrich z zamkniętą komorą spalania
- schody wylewane betonowe
- instalacja elektryczna 3-fazowa
- gotowa instalacja alarmowa antywłamaniowa
Parter: 61,18mkw
- garaż z bramą wjazdową na pilota
- łazienka (z piecem gazowym)
- salon z aneksem i wyjściem na ogródek; podłączenie pod kominek – komin z wkładem ceramicznym; drzwi tarasowe duże rozsuwane
- wiatrołap
- garderoba
Piętro: 60,62mkw
- duża łazienka z miejscem na wannę i prysznic
- 4 sypialnie
- hol
Dodatkowo duże poddasze, na które prowadzą opuszczane schody.
Działka:
- ogródek o powierzchni 307,3mkw
- dojazd do domu i taras – kostka z polbruku
- teren ogrodzony z bramą wjazdową na pilota
- możliwość wyznaczenia dodatkowego prywatnego miejsca postojowego plus jedno miejsce istniejące vis a vis garażu nie kolidujące z sąsiadami
Okolica:
Dom położony jest w cichej, malowniczej Redlicy – zaledwie 3km od Dobrej Szczecińskiej, 3km od Wołczkowa, 4km od Bezrzecza i 7km od przejścia granicznego w Lubieszynie. W okolicy domy jednorodzinne oraz w zabudowie bliźniaczej. Najbliższe sklepy to Dino i Netto, do których jest zaledwie 3km. Dzięki centralnemu umiejscowieniu w pobliżu znajdują się liczne przedszkola i szkoły, a także restauracje, punkty handlowe, usługowe i gastronomiczne, paczkomaty itp. Miejsce idealne dla rodziny, która szuka swojego miejsca do życia w otoczeniu zieleni z dostępem do miejskiej infrastruktury w okolicy, która szybko się rozwija.