Oferta ma charakter informacyjny, o aktualną dostępność lokali zapytaj naszego doradcę.TO JUŻ KOLEJNY ETAP ROZBUDOWY OSIEDLA PRZY ULICY NADBRZEŻNEJ!JUŻ PIERWSI MIESZKAŃCY CIESZĄ SIĘ SWOIM WYMARZONYM DOMEM.BEZ PODATKU PCC 2%
BEZ PROWIZJI DO BIURA
KUPUJESZ W CENIE DEWELOPERA!Z naszym biurem masz
GWARANCJĘ:
- bezpiecznego procesu sprzedaży w oparciu o ust. deweloperską i Fundusz Gwarancyjny
- kompleksowej obsługi transakcji na najwyższym poziomie
- bezpłatnej i fachowej usługi w zakresie finansowania zakupu nieruchomości,
- profesjonalnego wsparcia naszych licencjonowanych agentów
"Nasza inwestycja to nie tylko dom, to styl życia.
Znajdź swoje miejsce w eleganckim i nowoczesnym otoczeniu,
gdzie komfort mieszkaniowy idzie w parze z solidnością i estetyką."
OFERTA Szeregowiec
S2
Segment skrajny
1dDom o powierzchni użytkowej
132,07 mkwDziałka
178 mkwUkład pomieszczeń:
PARTER:
wiatrołap
kuchnia
salon
WC
garaż
pom. techniczne
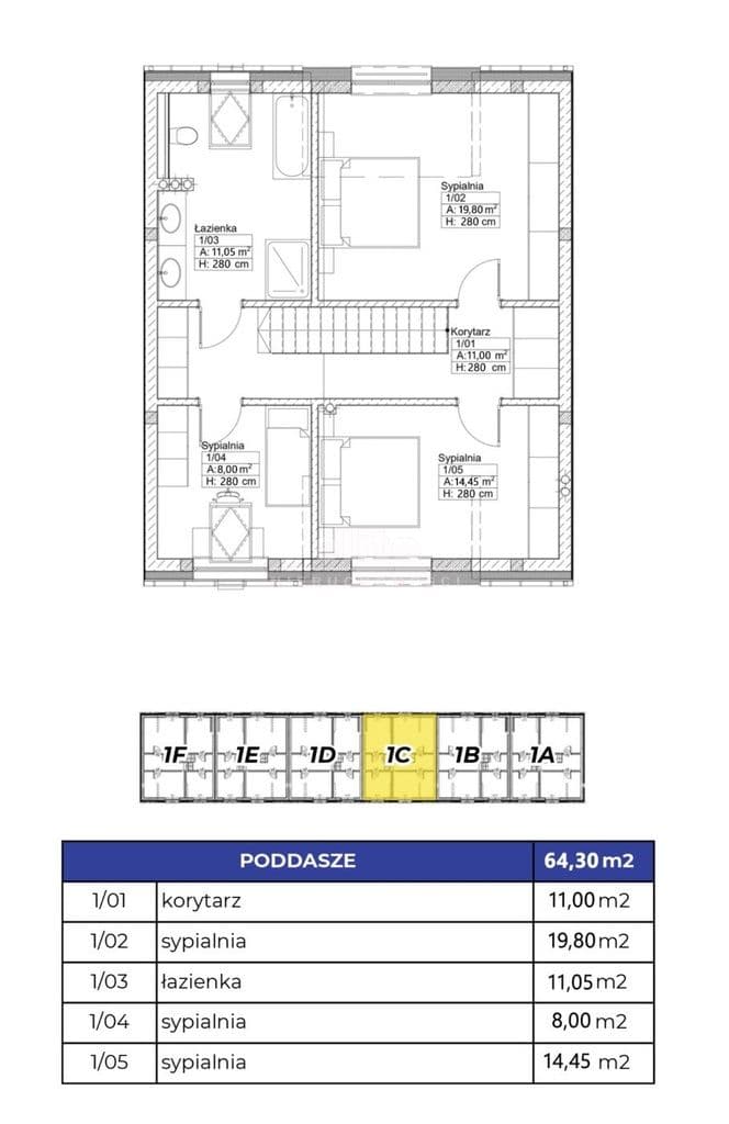
PODDASZE:
korytarz
sypialnia
łazienka
sypialnia
sypialnia
NAJWAŻNIEJSZE ATUTY - ogrzewanie podłogowe w całym budynku,
- instalacje elektryczna i wodno-kanalizacyjna zakończone są wysokiej jakości materiałami,
- okna trzyszybowe,
- brama garażowa sterowana pilotem,
- dojście do budynku i wjazd do garażu wykonane są z kostki brukowej
- ogród został otoczony płotem systemowym
- woda oraz ogrzewanie z sieci miejskiej
- kanalizacja miejska
LOKALIZACJA Kameralne osiedle w zabudowie wielorodzinnych bloków oraz domów szeregowych
znajdujące się na granicy Starego Miasta a ścisłym centrum Stargardu.
W POBLIŻU INWESTYCJI
- PARK ZAMKOWY - 370 m
- PRZYSTANEK KOMUNIKACJI MIEJSKIEJ - 650 m
- PARK BOLESŁAWA CHROBREGO - 740 m
- SZKOŁA PODSTAWOWA NR 5 - 800 m
- PRZEDSZKOLE MIEJSKIE NR 1 - 860 m
- STARE MIASTO - 1000 m
- SZKOŁA PODSTAWOWA NR 3 - 1040 m
Skontaktuj się z nami już dziś,
aby dowiedzieć się więcej o dostępności i warunkach zakupu.