Na sprzedaż dom z zabudowie bliźniaczej położony na zagospodarowanym zamkniętym osiedlu w Trzęsaczu .
Standard domu deweloperski cena w ogłoszeniu brutto.
Istnieje możliwość odzyskania całości VAT od zakupu, także przez obcokrajowców i osoby fizyczne.
Istnieje możliwość wykończenia domu pod klucz.
* Do ceny ofertowej trzeba doliczyć 19.000 zł. netto - za udział w działce drogowej z pełnym zagospodarowaniem.
standard deweloperski :
wykończenie domu z zewnątrz:
• fundament płytowy (płyta żelbetowa gr 25 cm, na podsypce piaskowej i warstwie styropianu XPS gr 10 cm,)
• ściany zewnętrzne z gazobetonu 500
• ocieplenie styropian 15,00cm
• tynk silikatowo/silikonowy
• okna PCV (pakiet trzyszybowy), rolety zewnętrzne sterowane elektrycznie, okna połaciowe (bez rolet)
• drzwi zewnętrzne wzmocnione
• dachówka cementowa
• obróbki blacharskie
• kompletne ogrodzenie, wiata murowana zadaszona z elementami drewna
• podjazd i wejście do domu wyłożone kostką betonową
• taras drewniany częściowo zadaszony
• ogród – niwelacja podłoża, posiana trawa
• media doprowadzone do budynku (woda, prąd, kanalizacja sanitarna)
wykończenie domu wewnątrz:
• ścianki wewnętrzne działowe – silka 12cm
• tynk wewnętrzny gipsowy kat III (bez szpachlowania i malowania)
• podłogi – wylewka betonowa
• schody wewnętrzne zabiegowe, żelbetowe bez zabudowy
• instalacja elektryczna obejmująca: montaż osprzętu (bez opraw oświetleniowych i lamp), kabel IT, instalacja alarmowa, kabel telewizyjny rozprowadzony w budynku (2 gniazda TV)
• peszele wyprowadzone na dach pod instalację fotowoltaiczną
• rozprowadzona instalacja wodno-kanalizacyjna
• instalacja grzewcza obejmująca: ogrzewanie podłogowe – na parterze i w obu łazienkach, w pokojach na piętrze grzejniki konwekcyjne, w łazienkach grzejniki drabinkowe ,powietrzna pompa ciepła z funkcją klimatyzatora.
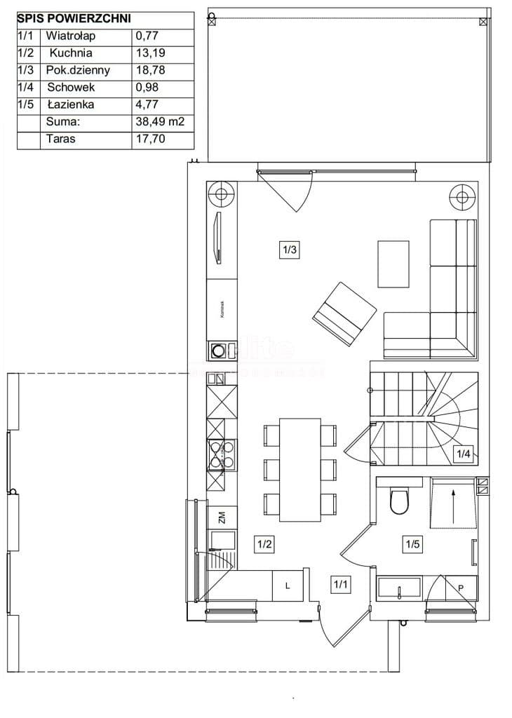
Na powierzchnię całkowitą składają się Parter :
- salon o pow 18m2 z wyjściem na ogród
- kuchnia o pow. 18m2
- łazienka o pow 4,77m2
- schowek pod schodami o pow. 0,98m2
- wiatrołap
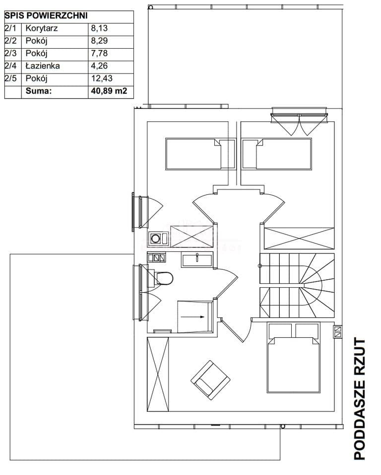
Piętro:
- pokój o pow. 12,4m2
- pokój o pow. 8,29m2
- pokój o pow. 7,78m2
- łazienka o pow. 4,26m2
- korytarz o pow. 8m2
Na poddaszu dodatkowa przestrzeń o pow. ok. 20m2 do przechowywania rzeczy .
Najważniejsze atuty :
* Podzielone działki z własną KSIĘGĄ WIECZYSTĄ!!!
* Duże ogrody od południa lub od strony morza, działki od 218m2 do 400m2!
* Kameralne ogrodzone osiedle!
* Tylko 400m do plaży!
* Prąd, woda, kanalizacja sanitarna z sieci!
* Domy oddzielone podwójną ścianą nośną z dylatacją
* Możliwość zamontowania kominka w salonie.
* Internet - światłowód
Trzęsacz, zamknięte, zagospodarowane osiedle, 400m od jednej z najpiękniejszych plaż nad Bałtykiem.
Oferta na wyłączność.
Zapraszam na prezentację.