Na sprzedaż dom z zabudowie bliźniaczej położony na zagospodarowanym zamkniętym osiedlu w Trzęsaczu .
Standard domu surowy zamknięty w cenie 549 000 zł + 23 % vat
Istnieje możliwość odzyskania całości VAT od zakupu, także przez obcokrajowców i osoby fizyczne.
Standard domu :
• fundament płytowy (płyta żelbetowa gr 25 cm, na podsypce piaskowej i warstwie styropianu XPS gr 10 cm,)
• ściany zewnętrzne z gazobetonu 500 gr. 18cm
• okna PCV (pakiet trzyszybowy), dodatkowo na parterze i piętrze w oknach rolety zewnętrzne sterowane elektrycznie,\
• okna połaciowe Velux (bez rolet)
• drzwi zewnętrzne wzmocnione
• więźba dachowa, dachówka cementowa
• niwelacja terenu wokół budynku
• media doprowadzone do budynku (woda, prąd, kanalizacja sanitarna)
• system kominowy - Koch
Istnieje możliwość doprowadzenia budynku do stanu deweloperskiego.
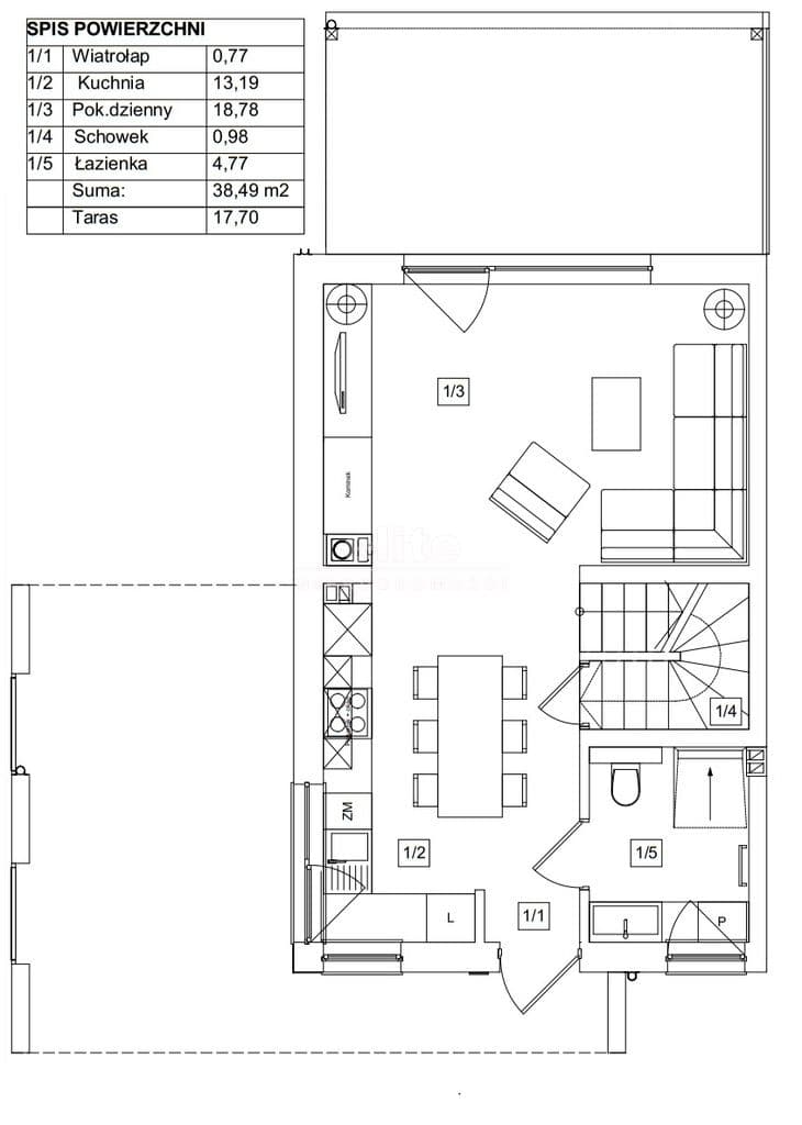
Na powierzchnię całkowitą składają się Parter :
- salon o pow 18m2 z wyjściem na ogród
- kuchnia o pow. 18m2
- łazienka o pow 4,77m2
- schowek pod schodami o pow. 0,98m2
- wiatrołap
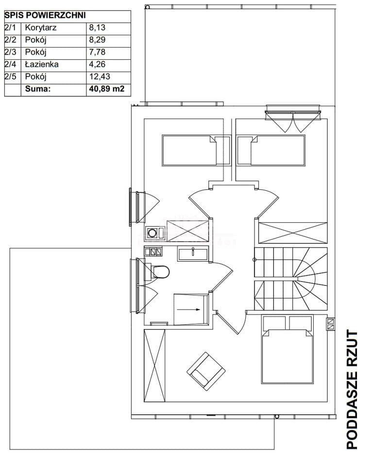
Piętro:
- pokój o pow. 12,4m2
- pokój o pow. 8,29m2
- pokój o pow. 7,78m2
- łazienka o pow. 4,26m2
- korytarz o pow. 8m2
Na poddaszu dodatkowa przestrzeń o pow. ok. 20m2 do przechowywania rzeczy .
Najważniejsze atuty :
* Podzielone działki z własną KSIĘGĄ WIECZYSTĄ!!!
* Duże ogrody od południa lub od strony morza, działki od 218m2 do 400m2!
* Kameralne ogrodzone osiedle!
* Tylko 400m do plaży!
* Prąd, woda, kanalizacja sanitarna z sieci!
* Domy oddzielone podwójną ścianą nośną z dylatacją
* Możliwość zamontowania kominka w salonie.
* Internet - światłowód
* Do ceny ofertowej trzeba doliczyć 19.000 zł. netto - za udział w działce drogowej z pełnym zagospodarowaniem.
Istnieje możliwość kupna domu w standardzie deweloperskim w cenie 849 000 zł netto + 23 % Vatu.
Trzęsacz, zamknięte, zagospodarowane osiedle, 400m od jednej z najpiękniejszych plaż nad Bałtykiem.
Oferta na wyłączność.
Zapraszam na prezentację.
KUPUJEMY NIERUCHOMOŚCI ZA GOTÓWKĘ w Szczecinie oraz nad morzem, również zadłużone: mieszkania, domy, działki - płacimy natychmiast
Powyższe ogłoszenie ma wyłącznie charakter informacyjny. Nie stanowi ono oferty w myśl art. 66 i n. ustawy z dnia 23.04.1964r. Kodeks cywilny (Dz.U. 1964r. Nr 16, poz. 93, ze zm.).