Szczecin, Wielgowo

Domy na Sprzedaż
Obniżka ceny
nr oferty 434456
powierzchnia 176 m2
ilość pokoi 5
piętro parter / 1
standard Stan deweloperski
nowe bomy bliźniacze (jed.dwulokalowe) w Wielgowie

Oferujemy do sprzedaży nowe domy jednorodzinne dwulokalowe zlokalizowane w Wielgowie, w prawobrzeżnej części Szczecina. Bliskość lasów gwarantuje możliwość aktywnego wypoczywania na spacerach czy bieganiu po leśnych ścieżkach. Szybki dojazd do centrum, miasta samochodem czy też połączeniem kolejowym. 

Inwestycja w trakcie budowy, każdego dnia stan zaawansowania robót budowlanych postępuje.

Zdjęcia pokazują stan na dzień 31.10.2025r

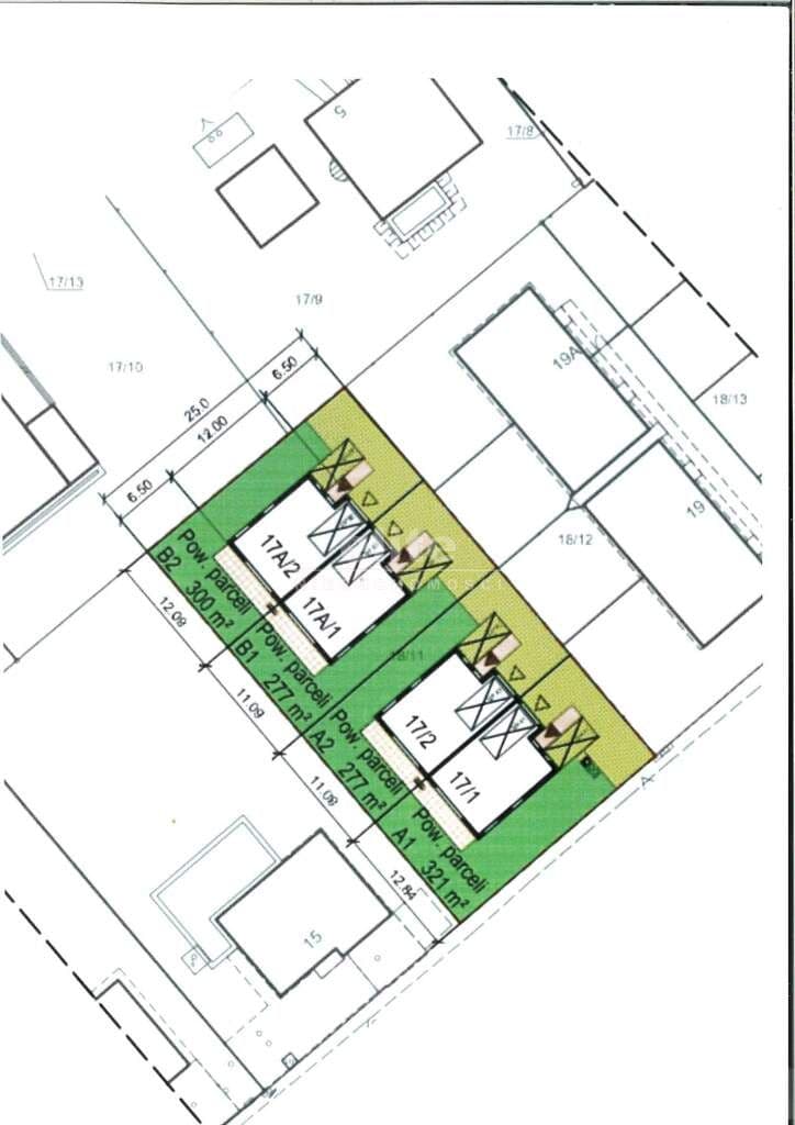
Cztery segmenty/lokale o powierzchni użytkowej 136,60mkw, całkowitej ok. 176mkw. 
Każdy dom znajduje się na działce w zależności o powierzchni od 277mkw do 321mkw.

Przedmiotowy dom to segment B2:

Powierzchnia użytkowa domu 136,60mkw, powierzchnia całkowita 176,05mkw. Powierzchnia działki 300mkw.

PARTER: 72,66mkw powierzchni użytkowej

* wiatrołap 3,48mkw,
* garaż jednostanowiskowy w bryle budynku 19,25mkw,
* pokój z aneksem kuchennym 43,26mkw,
* łazienka 6,67mkw,
* taras 15mkw,

PIĘTRO: 63,94mkw powierzchni użytkowej

* korytarz 4,31mkw
* pokój 13,04mkw
* pokój 14,10mkw
* łazienka 6,01mkw
* pokój 11,14mkw
* pokój 15,34mkw

* OGRZEWANIE I CIEPŁA WODA - Pompa ciepła w standardzie – nowoczesne i ekonomiczne ogrzewanie
* Przygotowana instalacja pod fotowoltaikę
* Wysokiej klasy materiały – bloczki silikatowe, żelbetowe stropy, solidny dach
Stolarka okienna PCV– energooszczędne okna (Uw ≤ 0,9 W/m²·K)
Schody żelbetowe, dach pokryty blachą panelową
* Ściany działowe z bloczków i płyt GK
Drewniany strop nad piętrem, ocieplony wełną mineralną

Planowany termin zakończenia budowy ok. czerwiec 2026

Zapraszamy do umówienia się na oglądanie inwestycji z maklerem. 

KUPUJEMY NIERUCHOMOŚCI ZA GOTÓWKĘ w Szczecinie oraz nad morzem, również zadłużone: mieszkania, domy, działki - płacimy natychmiast

 Powyższe ogłoszenie ma wyłącznie charakter informacyjny. Nie stanowi ono oferty w myśl art. 66 i n. ustawy z dnia 23.04.1964r. Kodeks cywilny (Dz.U. 1964r. Nr 16, poz. 93, ze zm.).

Cena
1 050 000 zł
Cena za m2
6 106 zł
Miejscowość
Szczecin, Wielgowo
Rodzaj budynku
Bliźniak
Stan prawny
Własność
Rok budowy
2025
Powierzchnia
176 m2
Powierzchnia działki
300 m2
Kształt działki
Prostokąt
Standard
Stan deweloperski
Liczba pokoi
5
Ogrzewanie
Pompa ciepła
Ciepła woda
Pompa ciepła
Typ kuchni
Aneks
Dodatkowe
Garaż
Wyświetleń
248
Sprawdź ratę kredytu
1 050 000 PLN
6 106 PLN / m2

ELITE nieruchomości

tel. 91 817 17 17

zainteresowania@elite.nieruchomosci.pl

Wyrażam zgodę na przetwarzanie danych
1 050 000 Stan deweloperski
Chcesz otrzymywać podobne oferty?

Skorzystaj z automatycznych powiadomień e-mail o nowych ogłoszeniach

© 2025 Elite Nieruchomości Szczecin - Mieszkania i domy na sprzedaż - Szczecin, Warszewo, Mierzyn, Bezrzecze, Gumieńce