Wielgowo, Powierzchnia działki: 1807 m2
Komfortowy DOM jednorodzinny, wolnostojący, parterowy z poddaszem użytkowym zlokalizowany przy lesie z pełnowymiarowym kortem tenisowym.
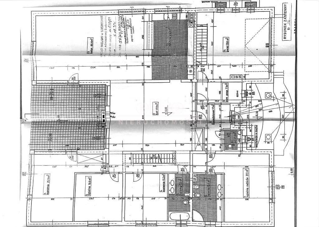
Budynek na rzucie w kształcie litery H.
Dach kopertowy dwudzielny.
Garaż dwustanowiskowy 38 m2 wbudowany w bryłę budynku z automatycznie otwieraną bramą.
Rok budowy: 2009
Powierzchnia użytkowa domu: 301,50 m2
Powierzchnia całkowita: 412,50 m2
Powierzchnia zabudowy: 425,90 m2
Wysokość budynku: 6,56 m
Wysokość pomieszczeń: 2,70 m
PARTER:
KUCHNIA + SALON – 22,30 M2+ 60,6 M2 = 82,90 M2
Przestronny salon z bezpośrednim wyjściem na taras i ogród połączony z otwartą, jasną, w pełni umeblowana kuchnią z wyspą kuchenną. Wielkoformatowe okna tarasowe. TARAS zadaszony z wymurowanym kominkiem.
HALL (SALA KOMINKOWA) – 61,8 M2
SYPIALNIA z garderobą z bezpośrednim wejściem do prywatnej łazienki z kabiną prysznicową, wanną, WC – 27,3 M2 + ŁAZIENKA (10,6 M2)
SYPIALNIA z wyjściem na taras – 25,39 M2
SYPIALNIA – 15,2 M2
SYPIALNIA – 16,6 M2
ŁAZIENKA z wanną, zlewem, WC – 7,8 M2
PRZEDSIONEK – 9,5 M2
POMIESZCZENIE GOSPODARCZE, pralnia, zlew gospodarczy– 7,3 M2
TOALETA dla gości – 2,8 M2
GARAŻ DWUSTANOWISKOWY Z ZAMYKANĄ BRAMĄ GARAŻOWĄ – 33,8 M2
PIWNICA (kotłownia): 30,80 M2
PODDASZE (OTWARTA PRZESTRZEŃ DO ZAARANŻOWANIA Z ŁAZIENKĄ I OPCJĄ URZĄDZENIA KUCHNI) – 55 M2
OGRÓD w pełni zagospodarowany z dojrzałą i pielęgnowaną roślinnością.
Teren w pełni ogrodzony z automatycznie otwieraną bramą wjazdową, miejsca postojowe na terenie działki.
Miejsce dla osób ceniących sobie walory przyrody, spokój, ciszę i bliskość lasu.
ZAPRASZAM NA PREZENTACJĘ