Na sprzedaż dom w zabudowie szeregowej – Zieleniewo, 148,21 m², garaż, ogród, blisko jeziora Miedwie
Zieleniewo | 148,21 m² | Garaż | Ogród | Stan deweloperski | 300 m od jeziora Miedwie
Na sprzedaż nowoczesny dom w zabudowie szeregowej o powierzchni użytkowej 147,59 m², zlokalizowany w Zieleniewie – spokojnej miejscowości tuż przy jeziorze Miedwie. Inwestycja jest w trakcie budowy. Budynek zostanie oddany w stanie deweloperskim, co daje możliwość wykończenia wnętrza według własnych potrzeb.
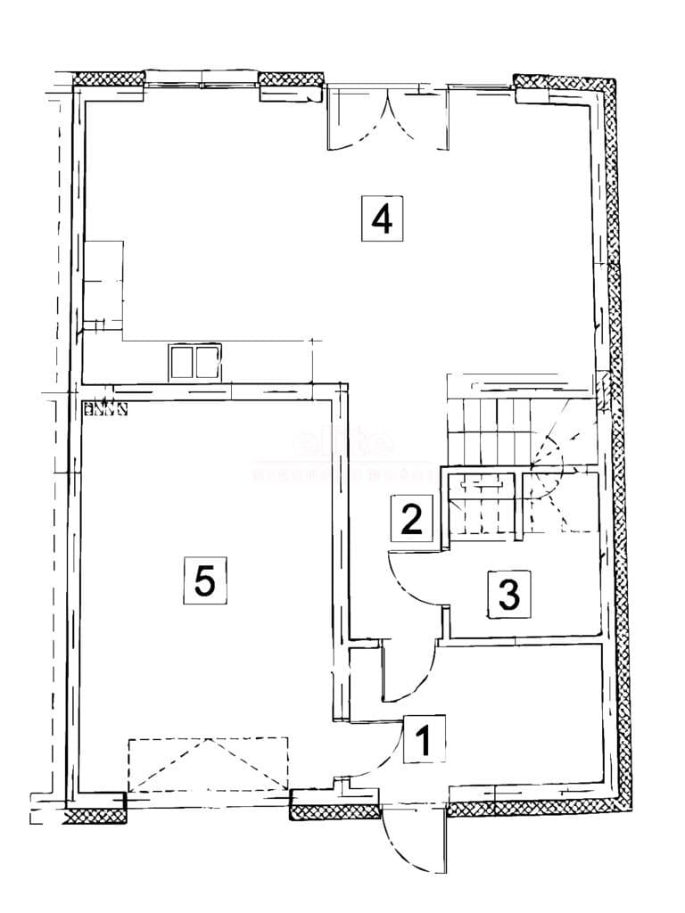
Rozkład pomieszczeń:
Parter:
- wiatrołap z miejscem na szafę
- przestronny salon z aneksem kuchennym i wyjściem do ogrodu
- toaleta dla gości
- garaż w bryle budynku
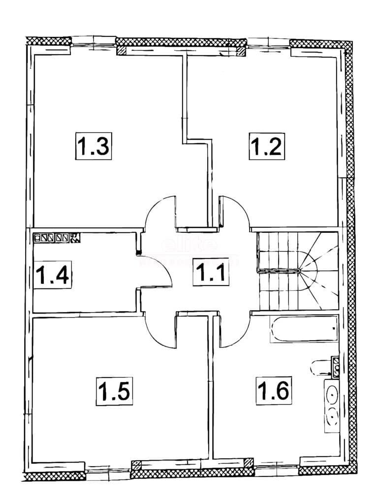
Piętro:
- 3 sypialnie
- garderoba
- duża łazienka
- korytarz
Dodatkowe informacje:
- ogrzewanie gazowe (możliwość zamontowania pompy ciepła)
- duże przeszklenia zapewniające dobre doświetlenie wnętrz (okna trzyszybowe)
- prywatny ogródek
- miejsce postojowe przed budynkiem
Lokalizacja:
- spokojna okolica z dostępem do terenów rekreacyjnych
- 300 metrów do jeziora Miedwie
- 10 minut do Stargardu, 20 minut do Szczecina
- dobre połączenie drogowe
Powierzchnia działek od 215 m2 do 460m2
Za dodatkową opłatą istnieje możliwość zamontowania pompy ciepła zamiast tradycyjnego ogrzewania gazowego.Dom idealny dla rodzin, które szukają nowoczesnej przestrzeni w pobliżu natury, z szybkim dojazdem do miasta.
Zapraszamy do kontaktu – chętnie udzielimy szczegółowych informacji i umówimy prezentację na miejscu.