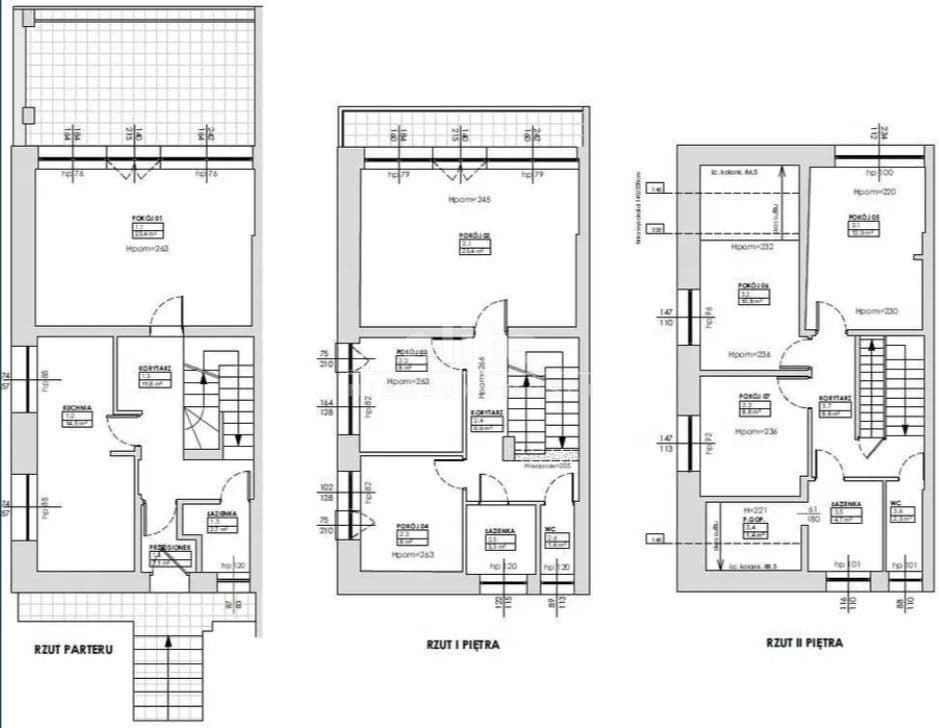
Od zaraz na wynajem dom na Pogodnie o metrażu 158 m2. Na powierzchnię użytkową składają się:
Parter:
---> Kuchnia.
---> 1 pokój.
---> Łazienka.
I piętro:
---> 3 pokoje.
---> Łazienka.
II Piętro
---> Kuchnia.
---> 3 pokoje.
---> Łazienka.
Ogrzewanie podłogowe. Piec dwubiegowy.
Czynsz najmu 7400 zł
Wymagana kaucja. Kwota uzależniona od ilości osób.
Opłaty licznikowe płatne na podstawie zużycia.
Zapraszam do kontaktu, chętnie odpowiem na dodatkowe pytania.
KUPUJEMY NIERUCHOMOŚCI ZA GOTÓWKĘ w Szczecinie oraz nad morzem, również zadłużone: mieszkania, domy, działki - płacimy natychmiast
Powyższe ogłoszenie ma wyłącznie charakter informacyjny. Nie stanowi ono oferty w myśl art. 66 i n. ustawy z dnia 23.04.1964r. Kodeks cywilny (Dz.U. 1964r. Nr 16, poz. 93, ze zm.).