Goleniów

Działki na Sprzedaż
nr oferty 436459
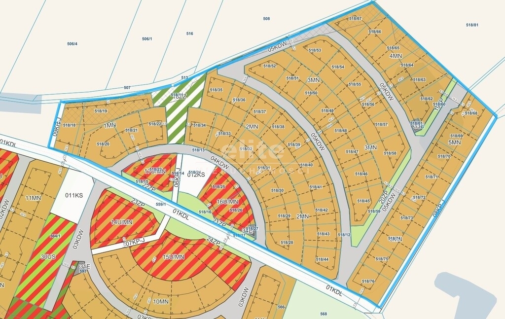
powierzchnia działki 77 279 m2
Kompleks działek - "Nad Potokiem" Goleniów


Prezentujemy wyjątkową ofertę sprzedaży gruntu inwestycyjnego o łącznej powierzchni 77 279 m² (7,73 ha),
przeznaczonego pod budowę osiedla domów jednorodzinnych oraz usługowo/mieszkalnej i
zlokalizowany w spokojnej, perspektywicznej części Goleniowa – obręb ewidencyjny Ciechno.

To idealna propozycja dla dewelopera poszukującego gotowego do realizacji, kompleksowego projektu w atrakcyjnej lokalizacji.

GŁÓWNE KORZYŚCI:  Cena ofertowa to ok. 50% ceny rynkowej.
Teren objety MPZP na którym można od zaraz budować pow łaczeniu do świeci wodociągowej i kanalizacji sanitarnej
(lub skorzystanie ze zbiorników bezodpływowych). 
Działki są podzielone i mają wykonane przyłacza elektroenergetyczne.

SUMA POW.  PODZIELONYCH DZIAŁEK ZABUDOWY EFEKTYWNEJ - 57 829 m2

Kluczowe Informacje:
  • Lokalizacja: obręb Ciechno, gmina Goleniów
  • Przeznaczenie: Budownictwo mieszkaniowe jednorodzinne i us.ługowo/mieszkalne
  • Cena brutto: 4 073 489,31 zł (zawiera 23% VAT)
  • Cena netto: 3 311 780 zł
  • Cena za m² brutto: ok. 52,71 zł/m² za całość - 70,44 zł za działki pod zabudowę
  • Powierzchnia całkowita (wszytkich działek z drogami): 77 279 m².

Szczegóły Nieruchomości
Potencjał Inwestycyjny 
Teren objęty jest Miejscowym Planem Zagospodarowania Przestrzennego "Nad Potokiem"
(Uchwała nr XL/513/10 Rady Miejskiej w Goleniowie), co gwarantuje stabilność prawną i jasno określone warunki zabudowy.
Co więcej, dla terenu została zawarta umowa przyłączeniowa z przedsiębiorstwem wodociągowo-kanalizacyjnym (Goleniowskie Wodociągi i Kanalizacja Sp. z o.o.)
na realizację przedsięwzięcia polegającego na budowie 57 budynków mieszkalnych jednorodzinnych.
To kluczowy krok, który znacząco skraca czas przygotowania inwestycji.
Lokalizacja 
Obręb Ciechno to dynamicznie rozwijający się obszar Goleniowa, który łączy w sobie spokój i bliskość natury z doskonałym dostępem do pełnej infrastruktury miejskiej. Położenie gwarantuje sprawny dojazd do:
  • Centrum Goleniowa
  • Szczecina (przez trasę S3)
  • Portu Lotniczego Szczecin-Goleniów
  • Goleniowskiego Parku Przemysłowego
Okolica charakteryzuje się nowoczesną zabudową jednorodzinną oraz rozległymi terenami zielonymi, co czyni ją idealnym miejscem dla osób ceniących ciszę, przestrzeń i komfort życia.

Zalety Oferty:
  • Gotowy Projekt Deweloperski: Teren z jasno zdefiniowanym potencjałem na budowę 57 domów.
  • Objęty MPZP: Brak ryzyka związanego z uzyskiwaniem warunków zabudowy.
  • Zapewnione Media: Podpisana umowa na przyłącze wodociągowe to ogromny atut i oszczędność czasu. Wykonane przyłącze energetyczne dla każdej działki. Do czasu wybudowania sieci kanalizacyjnej możliwa jest budowa zbiorników bezodpływowych.
  • Atrakcyjna Cena: Koszt zakupu gruntu w przeliczeniu na jeden dom jest niezwykle konkurencyjny.
  • Korzyści Podatkowe: Sprzedaż na podstawie faktury VAT 23%, co umożliwia odliczenie podatku przez firmy.
  • Duża, Skonsolidowana Powierzchnia: Kompleks działek tworzy spójny obszar, idealny do zaprojektowania nowoczesnego osiedla.

KUPUJEMY NIERUCHOMOŚCI ZA GOTÓWKĘ w Szczecinie oraz nad morzem, również zadłużone: mieszkania, domy, działki - płacimy natychmiast

 Powyższe ogłoszenie ma wyłącznie charakter informacyjny. Nie stanowi ono oferty w myśl art. 66 i n. ustawy z dnia 23.04.1964r. Kodeks cywilny (Dz.U. 1964r. Nr 16, poz. 93, ze zm.).

Cena
4 073 490 zł
Cena za m2
52 zł
Miejscowość
Goleniów
Powierzchnia działki
77 279 m2
Przeznaczenie działki
Budowlana
Kształt działki
Nieregularny
Instalacje
Prąd, Gaz
Wyświetleń
47
Sprawdź ratę kredytu
4 073 490 PLN
52 PLN / m2

ELITE nieruchomości

tel. 91 817 17 17

zainteresowania@elite.nieruchomosci.pl

Wyrażam zgodę na przetwarzanie danych
4 073 490
Chcesz otrzymywać podobne oferty?

Skorzystaj z automatycznych powiadomień e-mail o nowych ogłoszeniach

© 2026 Elite Nieruchomości Szczecin - Mieszkania i domy na sprzedaż - Szczecin, Warszewo, Mierzyn, Bezrzecze, Gumieńce