Kołbaskowo

Działki na Sprzedaż
nr oferty 412686
powierzchnia działki 8 566 m2
Top Lokalizacja przy Amazon A6, pozw na budowe

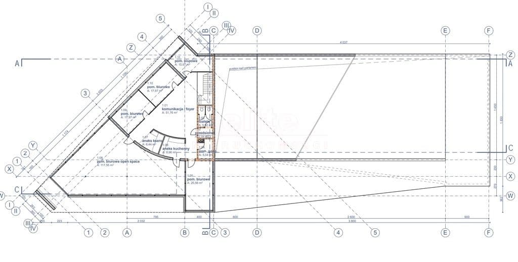
Działka z pozwoleniem na budowę budynku biurowo-mieszkalnego.

Na sprzedaż działka z projektem i pozwoleniem na budowę - w bardzo dobrej lokalizacji przy centrum logistycznym Amazon Kołbaskowo.
W okolicy stacja paliw Orlen i Lotos.
Powierzchnia działki to ok. 8566m2. Bezpośrednio przy Autostradzie A6 łączącej Berlin z Gdańskiem oraz drogą krajową nr 13, zjazd/wjazd - prawo i lewo skrętny z drogi krajowej numer 13.
Działka uzbrojona w media:
- prąd (skrzynka ZK na działce)
- gaz, woda i kanalizacja bezpośrednio w drodze   ok. 20-30m.
Działka jest bardzo widoczna , latem przejeżdża ok. 20 tys. pojazdów na dobę (wyliczenia GDDKiA).
Działka posiada projekt na ok. 530m2 powierzchni biurowej i mieszkalnej (3 kondygnacje) i możliwość w kolejnym etapie rozbudowy o magazyn o pow. 700m2 ( po przeniesieniu zjazdu, związanego z budową nowego węzła obwodnicy zachodniej Szczecina).
Więcej informacji udzielimy telefonicznie.

KUPUJEMY NIERUCHOMOŚCI ZA GOTÓWKĘ w Szczecinie oraz nad morzem, również zadłużone: mieszkania, domy, działki - płacimy natychmiast

 Powyższe ogłoszenie ma wyłącznie charakter informacyjny. Nie stanowi ono oferty w myśl art. 66 i n. ustawy z dnia 23.04.1964r. Kodeks cywilny (Dz.U. 1964r. Nr 16, poz. 93, ze zm.).

Cena
3 000 000 zł
Cena za m2
350 zł
Miejscowość
Kołbaskowo
Powierzchnia
8 600 m2
Powierzchnia działki
8 566 m2
Przeznaczenie działki
Inwestycyjna
Kształt działki
Nieregularny
Instalacje
Prąd, Gaz
Wyświetleń
322
Sprawdź ratę kredytu
3 000 000 PLN
350 PLN / m2

ELITE nieruchomości

tel. 91 817 17 17

zainteresowania@elite.nieruchomosci.pl

Wyrażam zgodę na przetwarzanie danych
3 000 000
Chcesz otrzymywać podobne oferty?

Skorzystaj z automatycznych powiadomień e-mail o nowych ogłoszeniach

© 2026 Elite Nieruchomości Szczecin - Mieszkania i domy na sprzedaż - Szczecin, Warszewo, Mierzyn, Bezrzecze, Gumieńce