Prezentujemy do zakupu działkę komercyjną zlokalizowaną w miejscowości Przęsocin.
Powierzchnia działki to 3330m2. Lokalizacja działki w cichej i spokojnej części miejscowośc na skraju wybudowanego w bezpośrednim sąsiedztwie osiedla budynków jednorodzinnych.
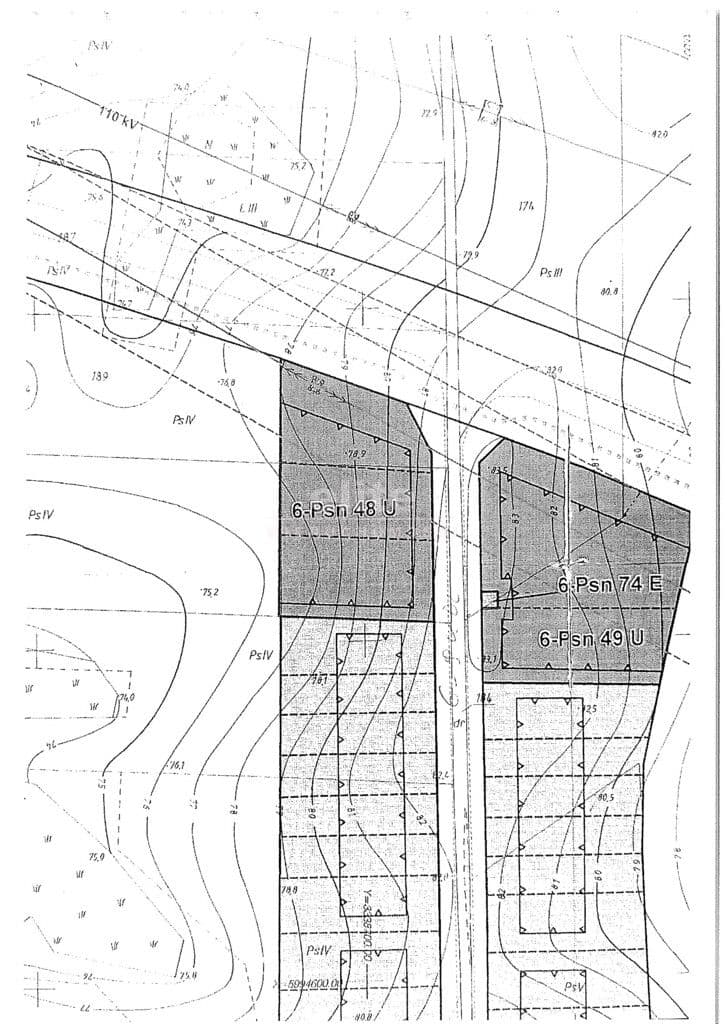
Nieruchomość objęta Miekscowym Planem Zagospodarowania przestrzennego jako teren elementarny 6 - Psn 48u.
Wytyczne z MPZP dla tego terenu są następujące:
1. przeznaczenie terenu - usługi nieuciążliwe
2. zasady kształtowania zabudowy i zagospodarowania terenu:
a) nieprzekraczalne linie zabudowy zgodnie z rysunkiem planu
b) wielkość powierzchni zabudowy - max 40% powierzchni działki
c) powierzchnia biologicznie czynna - min. 30% powierzchni działki
d) wysokość zabudowy - max. 10m
e)dachy strome dwu- lub czterospadowe o połaciach symetrycznych o kącie nachylenia 25-45 stopni
f) ustawienie budynków w stosunku do ulicy(dla budynków usytuowanych od strony ulicy): główna kalenica równolegle do ulicy z tolerancją odchylenia do 30%
3. zasady podziału nieruchomości
1) obowiązują ustalenia zawarte w odpowiednich punktach planu
2) minimalna powierzchnia wydzielanej działki budowlanej 1000m2
3) szerokość frontu wydzielanej działki budowlanej - minimalna 22m
4. zasady obsługi w zakresie infrastruktury technicznej:
a) prąd - na granicy działki ustawione ZK
b) woda - do czasu przejęcia przez ZWiK Police podłączenie do sieci wodociągowej w porozumieniu z inwestorem prowadzącym w najbliższym czasie budowę nowego osiedla (właściciel jest po rozmowie i ustaleniu szczegółów podłąćzenia instalacji wodociągowej do wodociągu inwestora) lub wybudowanie studni po uzyskaniu warunków technicznych ze ZWiK Police.
c) gaz - z istniejącej sieci gazowej przebiegającej w ulicy Szczecińskiej
d) kanalizacja - odprowadzenie ścieków do projektowanej sieci kanalizacyjnej - do czasu realizacji dopuszcza się zbiorniki bezodpływowe na nieczystości ciekłe lub przydomowe oczyszczalnie ścieków jeśłi przepisy nie stanowią inaczej.
Poniżej link do pełnej treści uchwały Rady Mijskiej w Policach "Uchwała RAdy Miejskiej w Policach nr XLVI/360/06"
chrome-extension://efaidnbmnnnibpcajpcglclefindmkaj/https://sip.police.pl/ustalenia/2006_360_przesocin/2006_360_przesocin.pdf
Jeśli zamierzasz prowadzić działalność nieuciążliwą, usługową dla ludności jak np. gastronomia, handel detaliczny, rekreacja, sport, oświata, usługi w zakresie zdrowia i opieki społecznej, kultura lub rozrywka to miejsce jest dla Ciebie idealne.
Polecam nieruchomość szczególnie ze względu na obeszerne możliwośći wykorzystania jej potencjału a także ze względu na położenie w otoczeniu zieleni.
Chcesz wiedzieć więcej? - Zadzwoń!
chcesz osobiście zweryfikować ofertę ? -Zadzwoń i umów się na prezentację