Wrzosowo

Działki na Sprzedaż
nr oferty 438583
powierzchnia działki 2 172 m2
Duża działka nad Zalewem z domem

.Na sprzedaż działka z rozpoczętą budową domu, zlokalizowana w cichej okolicy, blisko Zalewu Kamieńskim - Zatoka Wrzosowska oraz zaledwie 3 km od plaży w Dziwnówku.
Działka (2,172 m2) ogrodzona  - zadbany trawnik, liczne nasadzenia; dojazd drogą z kostki brukowej.
Obecnie dom w stanie surowym zamkniętym.
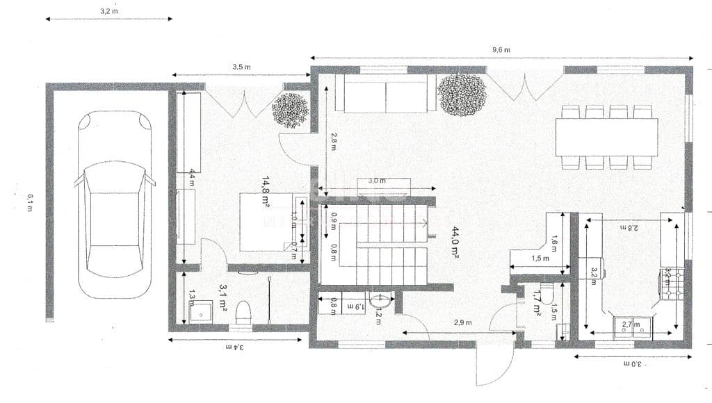
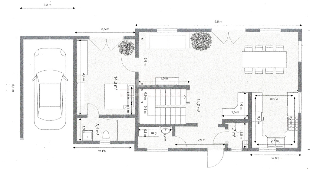
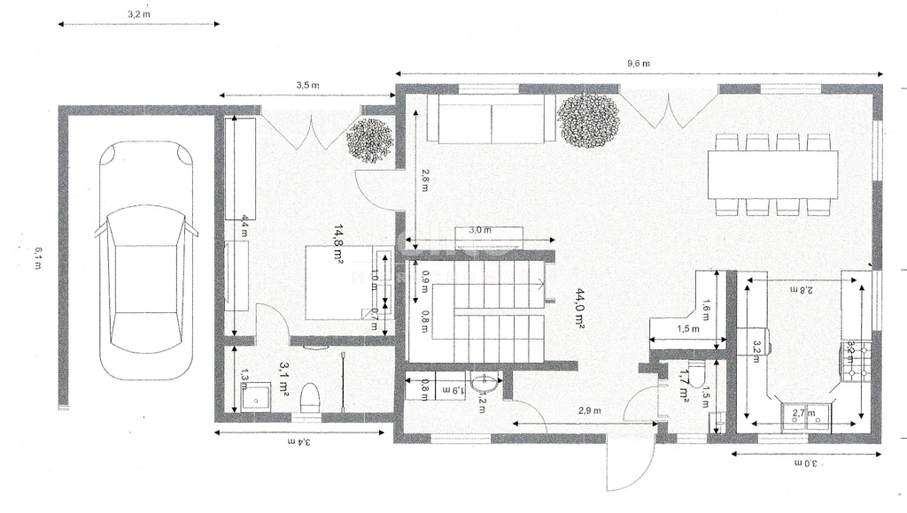
Na parterze :
- duży salon z jadalnią , od strony południowej,
- kuchnia,
- łazienka,
- kotłownia,
- pokój z własna łazienką.

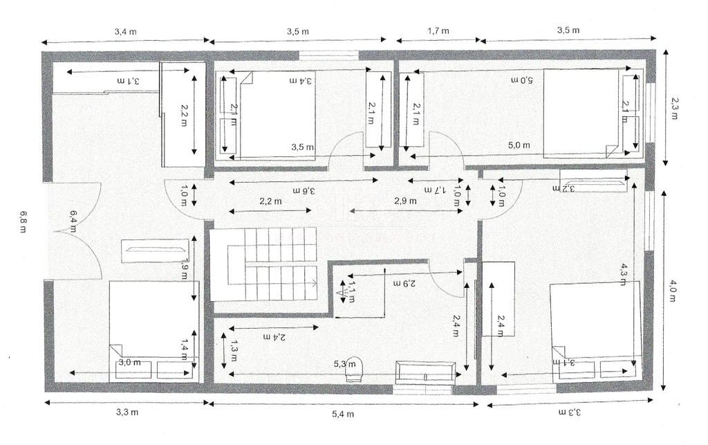
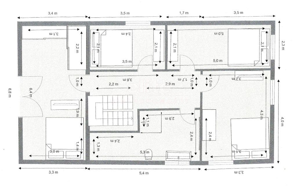
Na piętrze :
- 4 pokoje, w tym jeden z garderobą.
- łazienka.

Dodatkowo poddasze.

W salonie przewidziane miejsce pod kominek.
Z górnych pokoi widok na Zalew.

Dom budowany w technologii tradycyjnej - ściany z POROTHERM , strop żelbetowy lany , okna PCV, dachówka ceramiczna.
W budynku rozciągnięta sieć elektryczna.
Do wykonania pozostało :
- instalacja wod - kan,
- ogrzewanie,
- tynki,
- ocieplenie ścian i poddasza.

Na tym etapie można jeszcze zmienić ustawienie ścianek i rozmieszczenie pomieszczeń.
Garaż w formie wiaty przylegającej do budynku.
Ogrzewanie i ciepła woda z pieca gazowego dwu-obiegowego.
Na działce skrzynka ZK, podłączenie wody i kanalizacji, oraz gaz.

Gmina jest jeszcze w trakcie uchwalania Planu Ogólnego, dzięki czemu można wystąpić o WZ lub zapis w planie o dodatkową zabudowę (np. domem mieszkalnym lub letniskowymi) lub wystąpić o podział działki na mniejsze.
Właściciel wystąpił o zgodę na dwa małe budynki letniskowe pod wynajem.


KUPUJEMY NIERUCHOMOŚCI ZA GOTÓWKĘ w Szczecinie oraz nad morzem, również zadłużone: mieszkania, domy, działki - płacimy natychmiast

 Powyższe ogłoszenie ma wyłącznie charakter informacyjny. Nie stanowi ono oferty w myśl art. 66 i n. ustawy z dnia 23.04.1964r. Kodeks cywilny (Dz.U. 1964r. Nr 16, poz. 93, ze zm.).

Cena
950 000 zł
Cena za m2
7 661 zł
Miejscowość
Wrzosowo
Stan prawny
Własność
Powierzchnia
150 m2
Powierzchnia działki
2 172 m2
Kształt działki
Trapez
Wyświetleń
5
Sprawdź ratę kredytu
950 000 PLN
7 661 PLN / m2

ELITE nieruchomości

tel. 91 817 17 17

zainteresowania@elite.nieruchomosci.pl

Wyrażam zgodę na przetwarzanie danych
950 000
Chcesz otrzymywać podobne oferty?

Skorzystaj z automatycznych powiadomień e-mail o nowych ogłoszeniach

© 2026 Elite Nieruchomości Szczecin - Mieszkania i domy na sprzedaż - Szczecin, Warszewo, Mierzyn, Bezrzecze, Gumieńce