Na sprzedaż lokal handlowo-usługowy usytuowany w środku osiedla Majowego.
Nieruchomość idealna
do prowadzenia działalności handlowo-usługowej: gabinety lekarskie, sklepy, hurtownie, biura, szkoła językowa, fryzjer, salon kosmetyczny.
Lokal posiada dwa wejścia, możliwość rozładunku towarów od zaplecza
Ściany wewnętrzne są działowe, więc można dopasować układ i wielkość pomieszczeń pod preferencje nowego Właściciela.
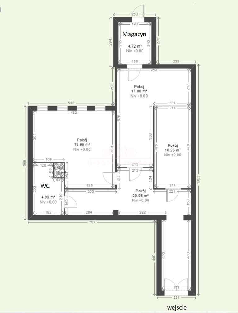
Na powierzchnię 89m2 obecnie składają się:
- pomieszczenie biurowe o pow. 19m2
- pomieszczenie biurowe o pow. 17,6m2 z przejściem do magazynu o pow. 4,7 m2 ( drugie wejście )
- pomieszczenie biurowe o pow. 10m2
- korytarz z aneksem kuchennym
- toaleta
- holl / poczekalnia
Ogrzewanie i ciepła woda z sieci miejskiej. Przed budynkiem duża ilość ogólnodostępnych miejsc parkingowych
Świetna lokalizacja, w pobliżu sklepy sklepy: żabka, apteka, restauracje, w odległości 200m zajezdnia autobusowa.
Oferta na wyłączność.
Zapraszam na prezentację
KUPUJEMY NIERUCHOMOŚCI ZA GOTÓWKĘ w Szczecinie oraz nad morzem, również zadłużone: mieszkania, domy, działki - płacimy natychmiast
Powyższe ogłoszenie ma wyłącznie charakter informacyjny. Nie stanowi ono oferty w myśl art. 66 i n. ustawy z dnia 23.04.1964r. Kodeks cywilny (Dz.U. 1964r. Nr 16, poz. 93, ze zm.).