Lokal z bezpośrednim wejściem od frontu ulicy przy jednej z głównych ulic Szczecina w secesyjnej kamienicy.
Sprzedaż z najemcą, który płaci 6300 zł netto miesięcznie.
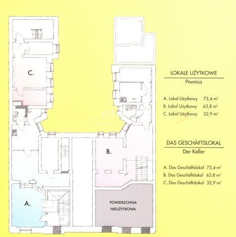
Dwa poziomy, na parterze 150,7 m2 i w piwnicy użytkowej 73,4 m2. Możliwość prowadzenia gastronomii. Lokal o bardzo wysokim standardzie wykończenia. Witryny, żaluzje antywłamaniowe, monitoring, wejście prawie z poziomu zerowego, terakota na podłodze.
Nowoczesne rozwiązania, nowe instalacje.
KOSZTY: Czynsz miesięcznie do zarządcy 1390 zł w tym za zużycie wody, które pokrywa najemca.
Podatek od nieruchomości wynosi 10485 zł rocznie. Lokal znajduje się w odrestaurowanej secesyjnej kamienicy w bardzo ruchliwym ciągu komunikacyjnym.
Może też być prestiżową siedzibą firmy, banku, galerii.
KUPUJEMY NIERUCHOMOŚCI ZA GOTÓWKĘ w Szczecinie oraz nad morzem, również zadłużone: mieszkania, domy, działki - płacimy natychmiast
Powyższe ogłoszenie ma wyłącznie charakter informacyjny. Nie stanowi ono oferty w myśl art. 66 i n. ustawy z dnia 23.04.1964r. Kodeks cywilny (Dz.U. 1964r. Nr 16, poz. 93, ze zm.).