Szczecin, Śródmieście-Centrum

Lokale na Sprzedaż
nr oferty 428158
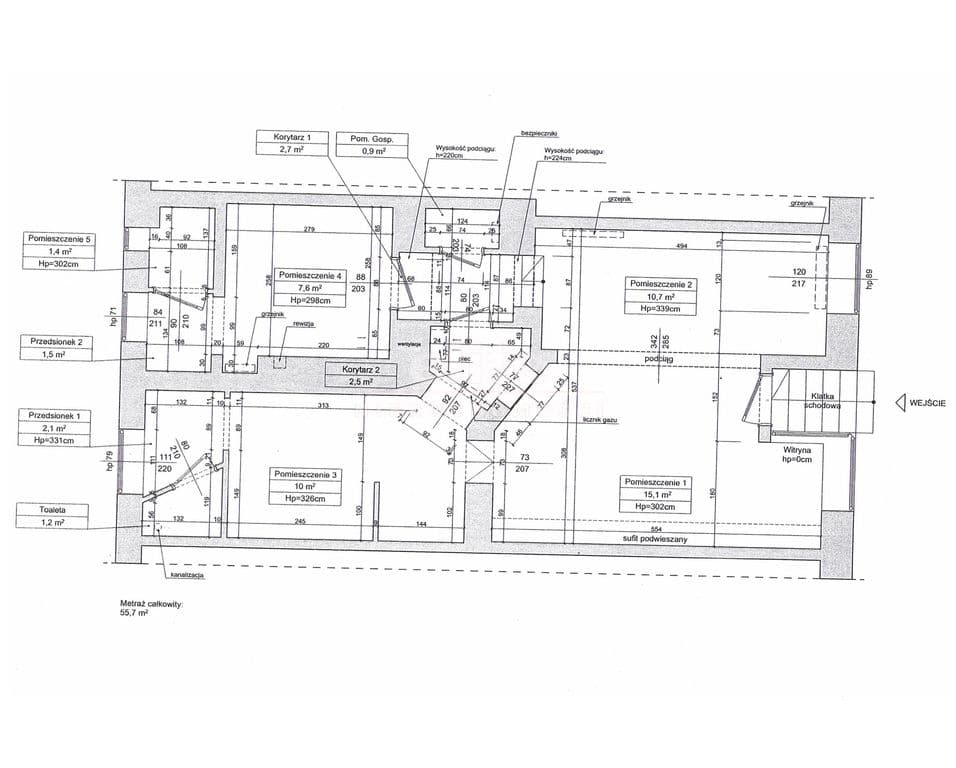
powierzchnia 56 m2
ilość pokoi 5
piętro parter / 4
Centrum - lokal na sprzedaż

Oferta na wyłączność! Ofertą sprzedaży jest lokal położony przy jednej z głównych ulic miasta z bardzo dużym ruchem pieszym i dostępem do infrastruktury. Powierzchnia tej nieruchomości wynosi 56,8m2 i posiada ona wejście z ulicy z witryną sprzedażową.

Lokal oznaczony jest jako mieszkalny, natomiast jest on w trakcie zmiany sposobu użytkowania, a jego rozkład przedstawia załączony rzut do oferty. Nieruchomość zaadaptowana pod lokal usługowy, biurowy, handlowy, lub biuro czy gabinety. Standard podstawowy, wymaga adaptacji pod konkretne wymagania czy oczekiwania.

Ogrzewanie i ciepła woda z pieca gazowego dwufunkcyjnego. Opłaty do wspólnoty wynoszą około 950zł-1000z. Lokal posiada dużą salę sprzedażową z frontu, dwa dodatkowe pomieszczenia magazynowo-socjalne, dwie toalety oraz przedsionek (łącznik). Dodatkowo lokal posiada instalację alarmu oraz monitoringu.

Polecam i zapraszam na prezentację.

KUPUJEMY NIERUCHOMOŚCI ZA GOTÓWKĘ w Szczecinie oraz nad morzem, również zadłużone: mieszkania, domy, działki - płacimy natychmiast

 Powyższe ogłoszenie ma wyłącznie charakter informacyjny. Nie stanowi ono oferty w myśl art. 66 i n. ustawy z dnia 23.04.1964r. Kodeks cywilny (Dz.U. 1964r. Nr 16, poz. 93, ze zm.).

Cena
410 000 zł
Cena za m2
7 218 zł
Miejscowość
Szczecin, Śródmieście-Centrum
Stan prawny
Własność
Rok budowy
1918
Powierzchnia
56 m2
Liczba pokoi
5
Wyświetleń
163
Sprawdź ratę kredytu
410 000 PLN
7 218 PLN / m2

ELITE nieruchomości

tel. 91 817 17 17

zainteresowania@elite.nieruchomosci.pl

Wyrażam zgodę na przetwarzanie danych
410 000
Chcesz otrzymywać podobne oferty?

Skorzystaj z automatycznych powiadomień e-mail o nowych ogłoszeniach

© 2026 Elite Nieruchomości Szczecin - Mieszkania i domy na sprzedaż - Szczecin, Warszewo, Mierzyn, Bezrzecze, Gumieńce