Na sprzedaż lokal biurowo-usługowy przy ul. Królowej Jadwigi 11.
Lokal znajduje się na parterze w kamienicy. wejście od ulicy, witryna wystawowa.
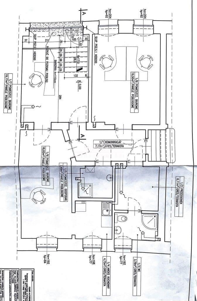
Na powierzchnię 84m2 składają się 3 pomieszczenia, dwie kuchnie i dwie łazienki. Wysokość pomieszczeń 3,20m.
Lokal można podzielić na dwa z opcją osobnych dwóch wejść.
Z witryną i wejściem od ulicy dwa pokoje (19,17m2 oraz 18,02) plus kuchnia i łazienka. Razem ok. 50 m2
Z wejściem z przejścia kamienicznego pokój 20m2 z pełni wyposażoną kuchnią i łazienką z wanną i oknem. Razem ponad ok. 40 m2
Czynsz dla zarządcy 650 zł (zaliczka na wodę, śmieci, administrację, fundusz remontowy)
Ogrzewanie gazowe, piec Vaillant.
Pod całym lokalem są piwnice przynależne do tego lokalu, istnieje możliwość adaptacji i wykorzystania.
Ponad lokalem jest mieszkanie 3 pokojowe, 66m2 - również na sprzedaż. Można zostać właścicielem 3 poziomów w kamienicy
Ruchliwy ciąg komunikacyjny pomiędzy Krzywoustego i Małkowskiego, strefa parkowania A. W okolicy pełna infrastruktura.
Zapraszam do obejrzenia.
KUPUJEMY NIERUCHOMOŚCI ZA GOTÓWKĘ w Szczecinie oraz nad morzem, również zadłużone: mieszkania, domy, działki - płacimy natychmiast
Powyższe ogłoszenie ma wyłącznie charakter informacyjny. Nie stanowi ono oferty w myśl art. 66 i n. ustawy z dnia 23.04.1964r. Kodeks cywilny (Dz.U. 1964r. Nr 16, poz. 93, ze zm.).