Szczecin, Centrum

Lokale na Wynajem
Oferta specjalna
nr oferty 437770
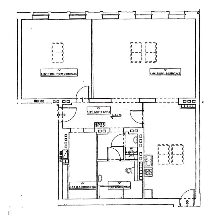
powierzchnia 121 m2
piętro 4 / 4
standard Bardzo dobry
Prestiżowe biuro przy Pl. Zamenhofa Winda Garaż

   Na wynajem reprezentacyjne biuro o powierzchni 121,03 m2 w wysokim standardzie, zlokalizowane w ścisłym centrum miasta, przy zbiegu ulic Bogusława i Jagiellońskiej, w rejonie pl. Zamenhofa.
   
   Wnętrza budynku są nowoczesne, a do dyspozycji najemców jest winda z bezpośrednim zjazdem do garażu podziemnego oraz możliwość wynajęcia miejsca postojowego na ulicy przed budynkiem.
   Lokal znajduje się w odrestaurowanej kamienicy, która podlegała rewitalizacji w 2010 roku oraz przeszła kompleksowy remont.

  Informacje ogólne:
  • powierzchnia: 121,03 m2,
  • 3 niezależne pokoje, korytarz, łazienka z toaletą, garderoba,
  • 4 piętro - winda,
  • Alarm w budynku,
  • możliwość wynajęcia miejsca postojowego (opcjonalnie).

 Standard lokalu:
  • klimatyzacja,
  • podwieszane sufity,
  • nowoczesne oświetlenie,
  • rozprowadzona instalacja elektryczna,
  • światłowód doprowadzony do lokalu,
  • przeszklenia.

 Lokal idealnie nadaje się na:
  • reprezentacyjną kancelarię,
  • siedzibę firmy z sektora finansowego lub doradczego,
  • gabinety medycyny estetycznej lub inne usługi klasy premium.

   Warunki najmu:
  • czynsz: 5 400 zł netto + 23% VAT,
  • kaucja: 6 000 zł, 
  • Ogrzewanie i ciepła woda z sieci miejskiej
  • okres najmu do uzgodnienia (minimum rok).


   Zapraszam na prezentację.


KUPUJEMY NIERUCHOMOŚCI ZA GOTÓWKĘ w Szczecinie oraz nad morzem, również zadłużone: mieszkania, domy, działki - płacimy natychmiast

 Powyższe ogłoszenie ma wyłącznie charakter informacyjny. Nie stanowi ono oferty w myśl art. 66 i n. ustawy z dnia 23.04.1964r. Kodeks cywilny (Dz.U. 1964r. Nr 16, poz. 93, ze zm.).

Cena
5 400 zł
Cena za m2
44 zł
Miejscowość
Szczecin, Centrum
Rodzaj budynku
Kamienica
Stan prawny
Własność
Rok budowy
2010
Powierzchnia
121 m2
Standard
Bardzo dobry
Piętro
4
Dodatkowe
Winda, Garaż, Klimatyzacja
Wyświetleń
153
5 400 PLN
44 PLN / m2

Natalia Rogala

tel. +48 500 308 978

natalia@elite.nieruchomosci.pl

Wyrażam zgodę na przetwarzanie danych
5 400 Bardzo dobry
Chcesz otrzymywać podobne oferty?

Skorzystaj z automatycznych powiadomień e-mail o nowych ogłoszeniach

© 2026 Elite Nieruchomości Szczecin - Mieszkania i domy na sprzedaż - Szczecin, Warszewo, Mierzyn, Bezrzecze, Gumieńce