Szczecin, Centrum

Lokale na Wynajem
nr oferty 437658
powierzchnia 340 m2
piętro 5 / 12
Do wynajęcia komfortowa powierzchnia biurowa położona na piątym piętrze nowoczesnego budynku biurowo - usługowego klasy A, zlokalizowanego w Centrum Szczecina.


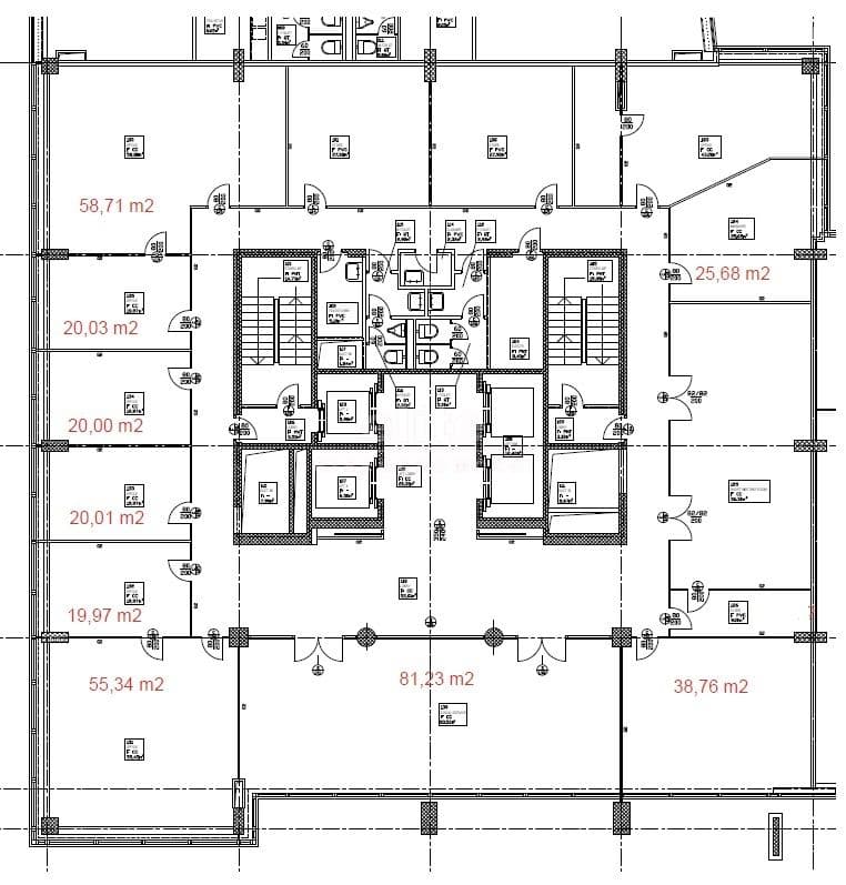
Na powierzchnię 340 m2 składa się 8 pokoi biurowych w systemie gabinetowym o powierzchniach od 20 do 58 m2 praz sala konferencyjna o pow. 80 m2

Do lokalu doprowadzona jest instalacja klimatyzacji, elektryczna, komputerowa (światłowodowa) oraz telefoniczna, zainstalowane są czujniki dymu i tryskacze.

Na podłodze położona jest wykładzina, ściany i sufity gładzone i malowane, oświetlenie rastrowe. Pomieszczenia świeżo malowane oraz nowa wykładzina podłogowa.

Do wspólnego użytku - jedynie z jednym najemcą – są pomieszczenie socjalne wraz z aneksem kuchennym oraz węzły sanitarne (świeżo po remoncie).

Budynek wyposażony w eleganckie korytarze i klatki schodowe, nowoczesne windy, recepcję i całodobowa ochronę wraz z systemem monitoringu i kontroli dostępu.

Budynek cechuje najwyższa jakość wykończenia wnętrz, elastyczna aranżacja przestrzeni oraz wysokiej klasy urządzenia i systemy gwarantujące komfort pracy. Budynek posiada wszelkie niezbędne udogodnienia, które są obecnie standardem na rynku nieruchomości komercyjnych. Dla użytkowników budynku dostępny jest parking podziemny (możliwość wynajmu miejsc parkingowych za dodatkową opłatą). Do oferowanej powierzchni proponowane są 4 miejsca postojowe. Istnieje możliwość zwiększenia tej liczby w trakcie negocjacji.

KUPUJEMY NIERUCHOMOŚCI ZA GOTÓWKĘ w Szczecinie oraz nad morzem, również zadłużone: mieszkania, domy, działki - płacimy natychmiast

 Powyższe ogłoszenie ma wyłącznie charakter informacyjny. Nie stanowi ono oferty w myśl art. 66 i n. ustawy z dnia 23.04.1964r. Kodeks cywilny (Dz.U. 1964r. Nr 16, poz. 93, ze zm.).

Cena
23 800 zł
Cena za m2
70 zł
Miejscowość
Szczecin, Centrum
Stan prawny
Własność
Rok budowy
1992
Powierzchnia
340 m2
Piętro
5
Dodatkowe
Winda, Garaż, Klimatyzacja
Wyświetleń
22
23 800 PLN
70 PLN / m2

ELITE nieruchomości

tel. 91 817 17 17

zainteresowania@elite.nieruchomosci.pl

Wyrażam zgodę na przetwarzanie danych
23 800
Chcesz otrzymywać podobne oferty?

Skorzystaj z automatycznych powiadomień e-mail o nowych ogłoszeniach

© 2025 Elite Nieruchomości Szczecin - Mieszkania i domy na sprzedaż - Szczecin, Warszewo, Mierzyn, Bezrzecze, Gumieńce