Lokal biurowy o powierzchni 365m2 zlokalizowany w budynku biurowym z windą na 4 piętrze (piętro na wyłączność), w samym Centrum miasta. Budynek zmodernizowany w 2000r. Doskonała rozpoznawalność lokalizacji przez klientów wszelkich instytucji finansowych. Obiekt znajduje się w bezpośrednim sąsiedztwie głównych arterii komunikacyjnych miasta, dworca PKP i PKS, największych skrzyżowań Szczecina - Brama Portowa, Plac Żołnierza Polskiego - w rejonie o ogromnych planach inwestycyjnych. W promieniu 300 metrów znajdują się siedziby wszystkich większych banków, sieci sklepów, restauracji, firm, urzędów, galerii. Do dyspozycji Najemcy posiadamy różne powierzchnie. Wspólna łazienka z wc na korytarzu.
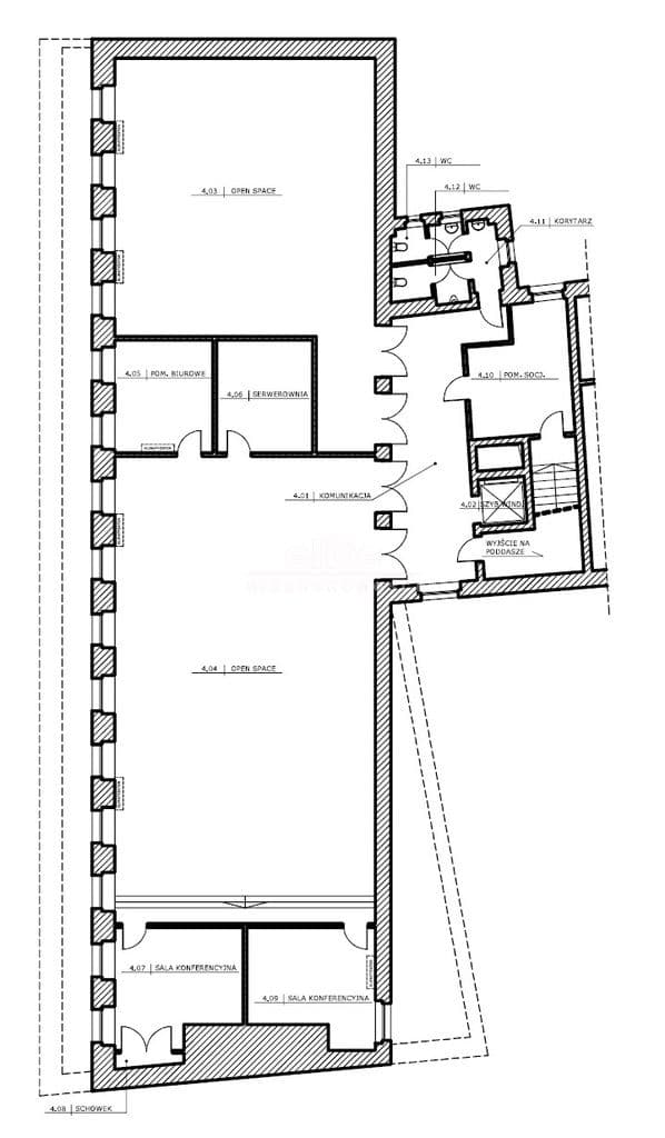
Rozkład pomieszczeń: hol z kuchnią, łazienka męska i damska, 1 pomieszczenie open space 102m2, 1 pomieszczenie open space 160m2, 3 pomieszczenia biurowe, serwerownia.
Na prośbę najemcy, w ramach uzgodnień Umowy najmu, właściciel rozważa wymianę wykładziny i odmalowanie ścian w przypadku umowy na dłuższy okres czasu.
Atuty lokali biurowych:
-doskonała lokalizacja w ścisłym centrum miasta
-oferowana powierzchnia - różne
-w części pomieszczeń klimatyzacja
-część socjalna
-światłowód w obiekcie
-utrzymanie czystości i konserwacja części wspólnych przez Wynajmującego
-dostęp do wszystkich pomieszczeń 24h
-monitoring 24h,
-dozorowanie nieruchomości + recepcja
Dodatkowo płatne media ( prąd, woda, ogrzewanie, klimatyzacja ) + opłata eksploatacyjna/serwisowa 10zł/m2 netto miesięcznie + vat. Opłata obowiązuje w przypadku powierzchni powyżej 230m2.
Cena jest ceną netto + 23% vat. Wymagana kaucja.
Możliwość wynajęcia powierzchni do 1200 m2 na II, III, IV piętrze, w cenie od 20zł/m2 netto + vat , w zależności od metrażu. Media płatne dodatkowo
KUPUJEMY NIERUCHOMOŚCI ZA GOTÓWKĘ w Szczecinie oraz nad morzem, również zadłużone: mieszkania, domy, działki - płacimy natychmiast
Powyższe ogłoszenie ma wyłącznie charakter informacyjny. Nie stanowi ono oferty w myśl art. 66 i n. ustawy z dnia 23.04.1964r. Kodeks cywilny (Dz.U. 1964r. Nr 16, poz. 93, ze zm.).