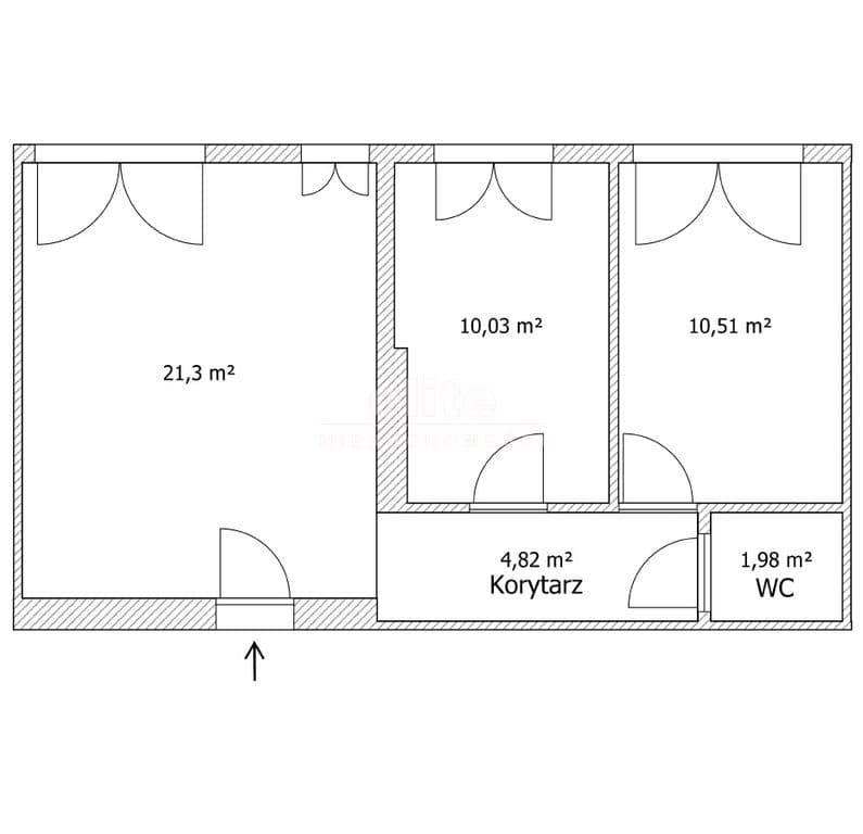
Powierzchnia biurowa położona na 1 piętrze w budynku o charakterze biurowym. Wejście z ulicy na estetyczną klatkę schodową. Do lokalu wejście zabezpieczone domofonem. Lokal składa się z korytarza, trzech pokoi oraz toalety. Pomieszczenia nowe, czyste. Na podłodze wykładzina, okna nowe PCV, ściany gładkie, malowane. Lokalizacja Śródmieście-Centrum Szczecina, przy ulicy o dużym natężeniu ruchu. Bardzo dobry dojazd komunikacją miejską, miejsca parkingowe ogólnodostępne. Pomieszczenie idealne na niewielkie biuro, siedzibę małej firmy. Dodatkowe opłaty: energia elektryczna, woda i ścieki. Możliwość umieszczenia reklamy na elewacji budynku za dodatkową opłatą.
KUPUJEMY NIERUCHOMOŚCI ZA GOTÓWKĘ w Szczecinie oraz nad morzem, również zadłużone: mieszkania, domy, działki - płacimy natychmiast
Powyższe ogłoszenie ma wyłącznie charakter informacyjny. Nie stanowi ono oferty w myśl art. 66 i n. ustawy z dnia 23.04.1964r. Kodeks cywilny (Dz.U. 1964r. Nr 16, poz. 93, ze zm.).