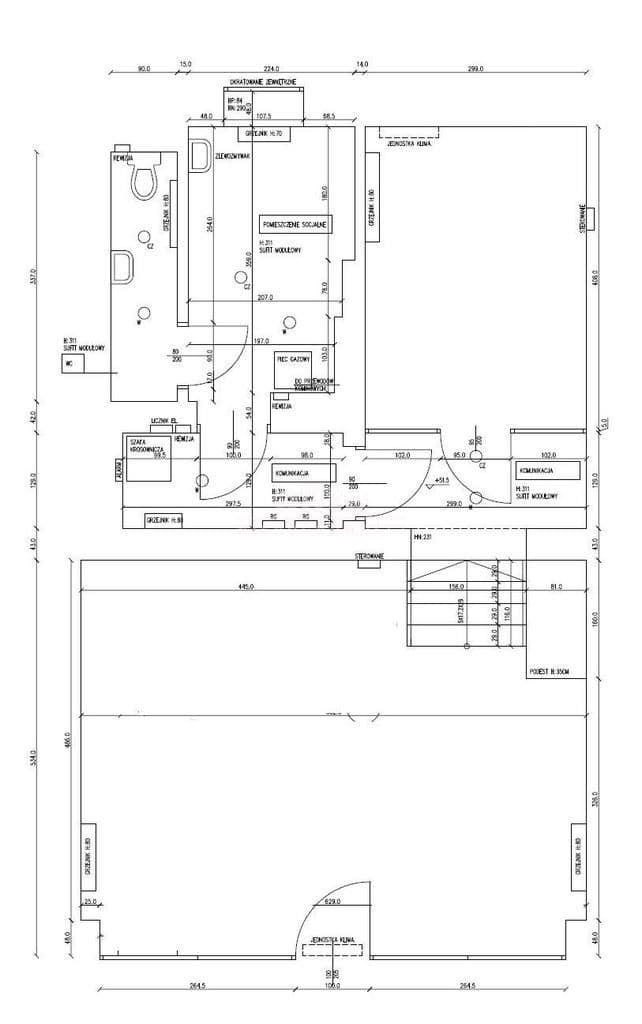
Lokal handlowo-usługowy zlokalizowany na parterze kamienicy przy jednej z głównych ulic Szczecina w sąsiedztwie centrum handlowego.
Na powierzchnię 66,5 m2 składa się:
- duża sala główna (34 m2) - położona na poziomie chodnika, z wejściem po kilku stopniach do dalszej części lokalu,
- korytarza,
- osobnego gabinetu ( 8,5 m2),
- zaplecza:
> WC z umywalką (9 m2)
> pomieszczenie socjalne z aneksem kuchennym,
>dodatkowe pomieszczenie na serwerownię.
Wysokość sali głównej – 3,5 m, gabinetu i części socjalnej – 3,11 m.
Na podłogach terakota, ściany gładzone, malowane, sufity podwieszane z oświetleniem rastrowym.
Część socjalna oraz WC wykończone w glazurze i terakocie.
Wysokie, nowoczesne witryny z szybami antywłamaniowymi typu P4, od poziomu chodnika, na całej szerokości lokalu – zapewniają świetną wizualizację.
Ogrzewanie gazowe indywidualne - piec gazowy.
W lokalu rozprowadzona klimatyzacja, instalacja alarmowa oraz sieć teleinformatyczna.
Dodatkowe opłaty: czynsz do zarządcy (w tym zaliczki na wodę, ścieki, śmieci), gaz według zużycia, energia elektryczna według zużycia.
Do ceny najmu będzie doliczony VAT.
Przeznaczenie lokalu handlowo-usługowe bądź inne, możliwa gastronomia.
W sąsiedztwie funkcjonują lokale handlowe i usługowe wielu branż.
Lokalizacja o bardzo dużym natężeniu ruchu pieszego i samochodowego.
KUPUJEMY NIERUCHOMOŚCI ZA GOTÓWKĘ w Szczecinie oraz nad morzem, również zadłużone: mieszkania, domy, działki - płacimy natychmiast
Powyższe ogłoszenie ma wyłącznie charakter informacyjny. Nie stanowi ono oferty w myśl art. 66 i n. ustawy z dnia 23.04.1964r. Kodeks cywilny (Dz.U. 1964r. Nr 16, poz. 93, ze zm.).