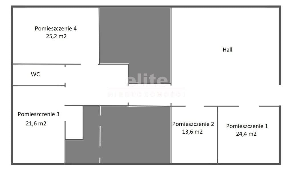
Polecam na wynajem pokoje biurowe do wynajęcia. Powierzchnie pokoi 25.2, 21.6, 24.4, 13. 6 m2. Czynsz najmu 40 PLN/1 m2. Pokoje usytuowane są w budynku biurowym z ochroną i monitoringiem.
Położone na pierwszym piętrze budynku. Można wynająć wszystkie pomieszczenia lub pojedynczo. Są nieumeblowane.
Układ pomieszczeń prezentuje załączony rzut.
Dla najemców możliwość parkowania na zamkniętym parkingu.
W cenie zawarte jest ogrzewanie i opłata za energię elektryczną. Minimalny okres najmu 1 rok z możliwością przedłużenia.
Obowiązuje kaucja.
Zapraszam do obejrzenia.
KUPUJEMY NIERUCHOMOŚCI ZA GOTÓWKĘ w Szczecinie oraz nad morzem, również zadłużone: mieszkania, domy, działki - płacimy natychmiast
Powyższe ogłoszenie ma wyłącznie charakter informacyjny. Nie stanowi ono oferty w myśl art. 66 i n. ustawy z dnia 23.04.1964r. Kodeks cywilny (Dz.U. 1964r. Nr 16, poz. 93, ze zm.).