Szczecin, Grabowo

Lokale na Wynajem
nr oferty 387322
powierzchnia 800 m2
piętro 2 / 2
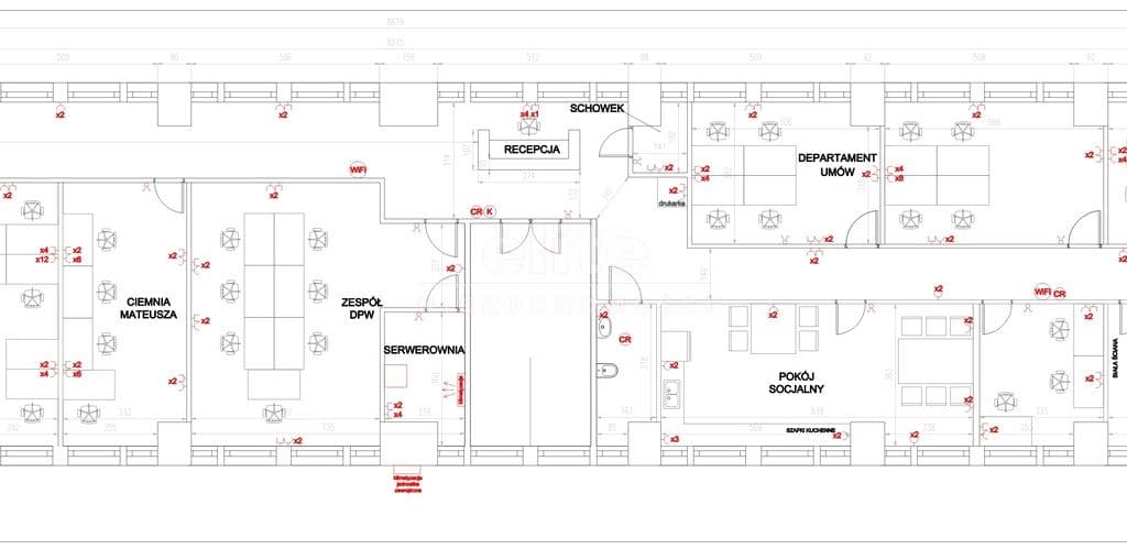
800m2 biur wykończonych pod klienta

W ofercie 800m2 powierzchni biurowej wykończonej pod klienta. Obiekt znajduje się w dzielnicy Grabowo. Powierzchnia znajduje się na 3 piętrze 3 kondygnacyjnego budynku z osobnym wejściem. Powierzchnia w całości będzie dostosowana do potrzeb najemcy. W cenie znajdują się wszystkie media oraz 6 miejsc parkingowych. Do ceny 40zł/m2 należy doliczyć jedynie podatek VAT. Zapraszam do zapoznania się z ofertą osobiście.

KUPUJEMY NIERUCHOMOŚCI ZA GOTÓWKĘ w Szczecinie oraz nad morzem, również zadłużone: mieszkania, domy, działki - płacimy natychmiast

 Powyższe ogłoszenie ma wyłącznie charakter informacyjny. Nie stanowi ono oferty w myśl art. 66 i n. ustawy z dnia 23.04.1964r. Kodeks cywilny (Dz.U. 1964r. Nr 16, poz. 93, ze zm.).

Cena
32 000 zł
Cena za m2
40 zł
Miejscowość
Szczecin, Grabowo
Rok budowy
1980
Powierzchnia
800 m2
Piętro
2
Wyświetleń
1370
32 000 PLN
40 PLN / m2

ELITE nieruchomości

tel. 91 817 17 17

zainteresowania@elite.nieruchomosci.pl

Wyrażam zgodę na przetwarzanie danych
32 000
Chcesz otrzymywać podobne oferty?

Skorzystaj z automatycznych powiadomień e-mail o nowych ogłoszeniach

© 2026 Elite Nieruchomości Szczecin - Mieszkania i domy na sprzedaż - Szczecin, Warszewo, Mierzyn, Bezrzecze, Gumieńce