Szczecin, Pomorzany

Lokale na Wynajem
Oferta specjalna
nr oferty 430789
powierzchnia 18 m2
ilość pokoi 1
piętro 3 / 4
Lokal na wynajem Pomorzany

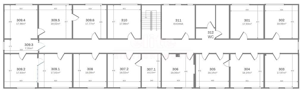
Na wynajem lokale mieszczące się na II i III piętrze w biurowcu znajdującym się przy pętli Pomorzany.
Dostępne są biura o zróżnicowanych powierzchniach od 10 m2 do ok. 300 m2 (całe piętro). Istnieje możliwość aranżacji pomieszczeń według własnych potrzeb.

Biura są po remoncie - gotowe do wynajęcia, na podłogach ułożono panele a ściany zostały odmalowane.
Na każdym piętrze znajduje się WC oraz pomieszczenie socjalne dostępne dla najemców.

Czynsz najmu wynosi od 45zł/m² + VAT. (w czynszu wliczone są opłaty za: wodę, ogrzewanie, śmieci). Dodatkowo płatny jest prąd według zużycia oraz Internet - 50 zł/mc (w budynku światłowód Orange).

Dla najemców dostępne są miejsca parkingowe na terenie obiektu w cenie 150 zł/mc   za miejsce postojowe.

Biura są przeznaczone do prowadzenia działalności biurowej oraz usługowej.

Zapraszam do kontaktu i na prezentację.
WYŁĄCZNOŚĆ

KUPUJEMY NIERUCHOMOŚCI ZA GOTÓWKĘ w Szczecinie oraz nad morzem, również zadłużone: mieszkania, domy, działki - płacimy natychmiast

 Powyższe ogłoszenie ma wyłącznie charakter informacyjny. Nie stanowi ono oferty w myśl art. 66 i n. ustawy z dnia 23.04.1964r. Kodeks cywilny (Dz.U. 1964r. Nr 16, poz. 93, ze zm.).

Cena
720 zł
Cena za m2
46 zł
Miejscowość
Szczecin, Pomorzany
Rodzaj budynku
Budynek biurowy
Stan prawny
Własność
Rok budowy
1964
Powierzchnia
18 m2
Piętro
3
Liczba pokoi
1
Wyświetleń
418
720 PLN
46 PLN / m2

Angelika Strzelecka

tel. +48 789 452 065

angelika@elite.nieruchomosci.pl

Wyrażam zgodę na przetwarzanie danych
720
Chcesz otrzymywać podobne oferty?

Skorzystaj z automatycznych powiadomień e-mail o nowych ogłoszeniach

© 2026 Elite Nieruchomości Szczecin - Mieszkania i domy na sprzedaż - Szczecin, Warszewo, Mierzyn, Bezrzecze, Gumieńce